Javea:
3043JAV Neubauvilla mit Meerblick zum Verkauf in Javea
Objekt-Nr.: FVH-3043JAV
















Preis:
1.525.000 €
Wohnfläche ca.:
308 m²
Grundstück ca.:
1.115 m²
Zimmeranzahl:
5
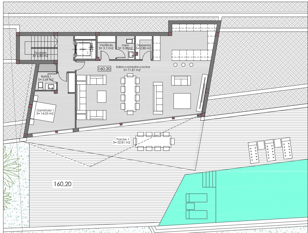
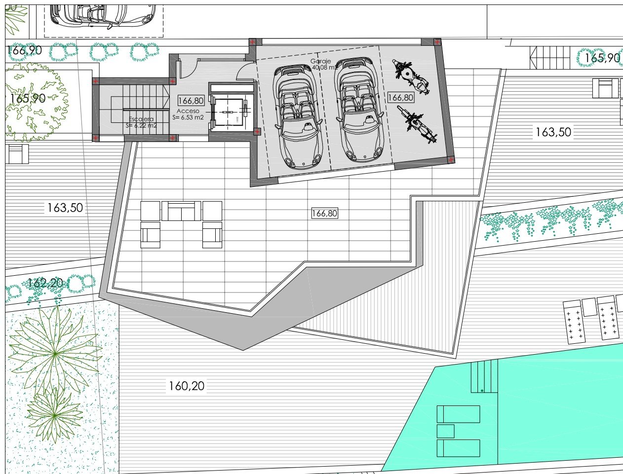
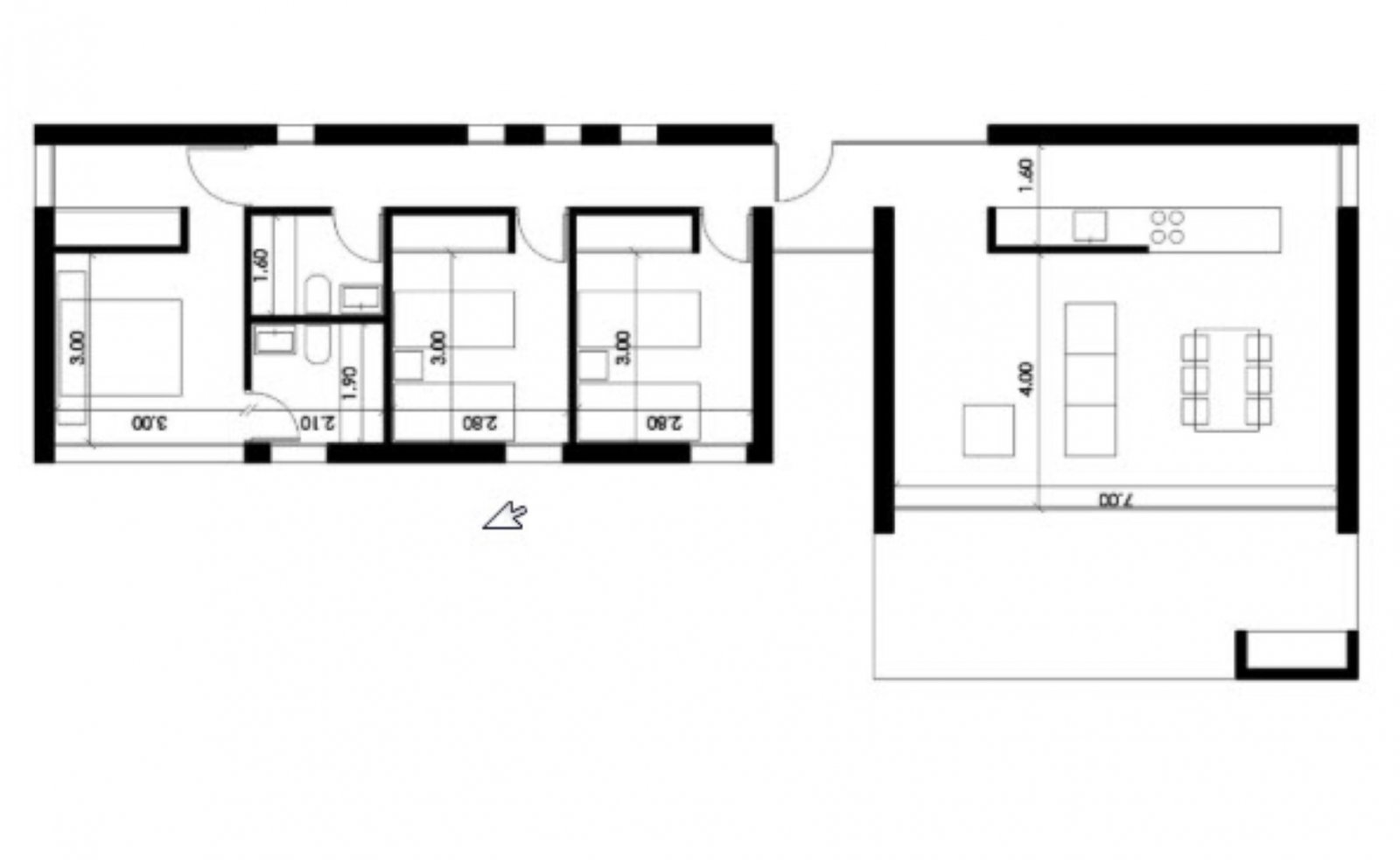
Dieses Projekt verfügt über eine Baugenehmigung und kann innerhalb von 12 Monaten geliefert werden!! Eine wunderschöne moderne Villa in einer Sackgasse in einer ruhigen Gegend, 2500 m vom Sandstrand von Arenal entfernt. Es gibt wunderschöne Ausblicke auf Cabo San Antonio und die Bucht von Javea. Das Erdgeschoss misst 191 m² und das Haus verfügt über eine Eingangshalle und ein geräumiges Wohnzimmer mit einer voll ausgestatteten offenen Küche. Auf der anderen Seite des Hauses befinden sich 3 Doppelzimmer mit eigenem Bad und Zugang zur Terrasse und zum Pool. Die erste Etage verfügt über ein Hauptschlafzimmer mit eigenem Bad und begehbarem Kleiderschrank. Diese Etage ist 45 m² groß. Außerdem gibt es einen Keller mit Fenster, in dem sich der Technikraum befindet, und einen Lagerraum, der auch von außen zugänglich ist, sowie einen Multifunktionsraum von 39 m². Draußen gibt es eine lange Auffahrt, einen pflegeleichten Garten und einen Swimmingpool.
Haustyp: Villa
Etagenanzahl: 3
Anzahl Schlafzimmer: 4
Anzahl Badezimmer: 4
Pool: ja
Das könnte Ihnen auch gefallen





























