Javea:
6303JAV Wunderschönes Neubauprojekt mit Meerblick zum Verkauf in Javea
Objekt-Nr.: FVH-6303JAV














Preis:
3.589.000 €
Wohnfläche ca.:
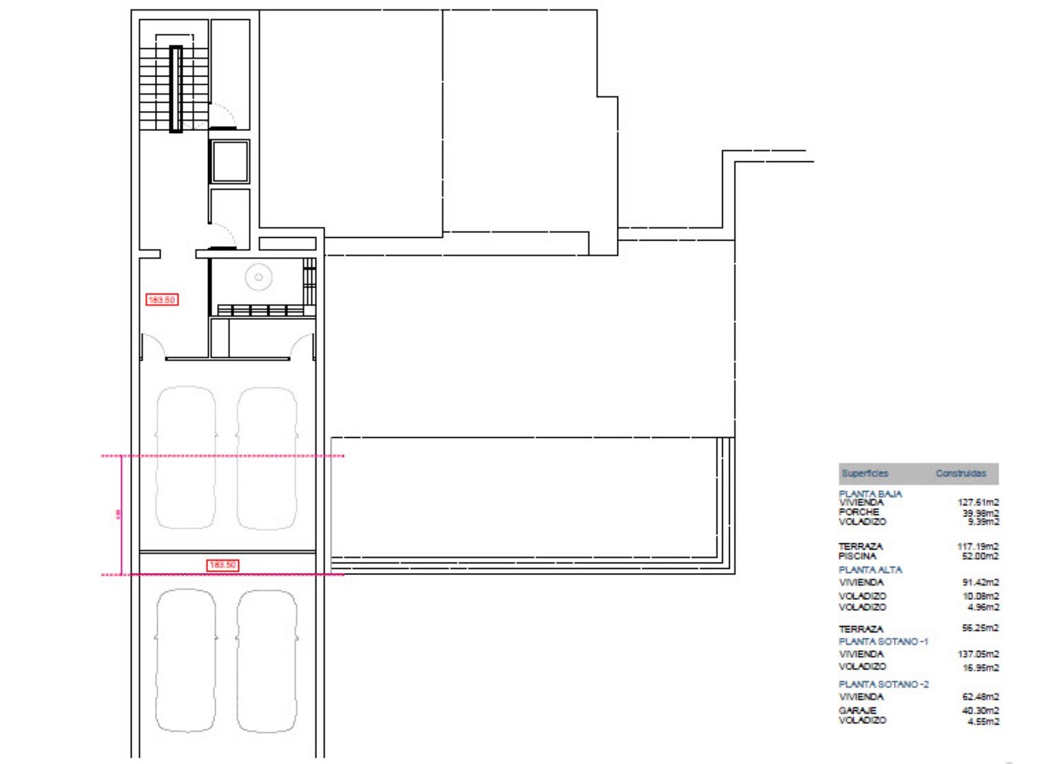
739 m²
Grundstück ca.:
908 m²
Zimmeranzahl:
6
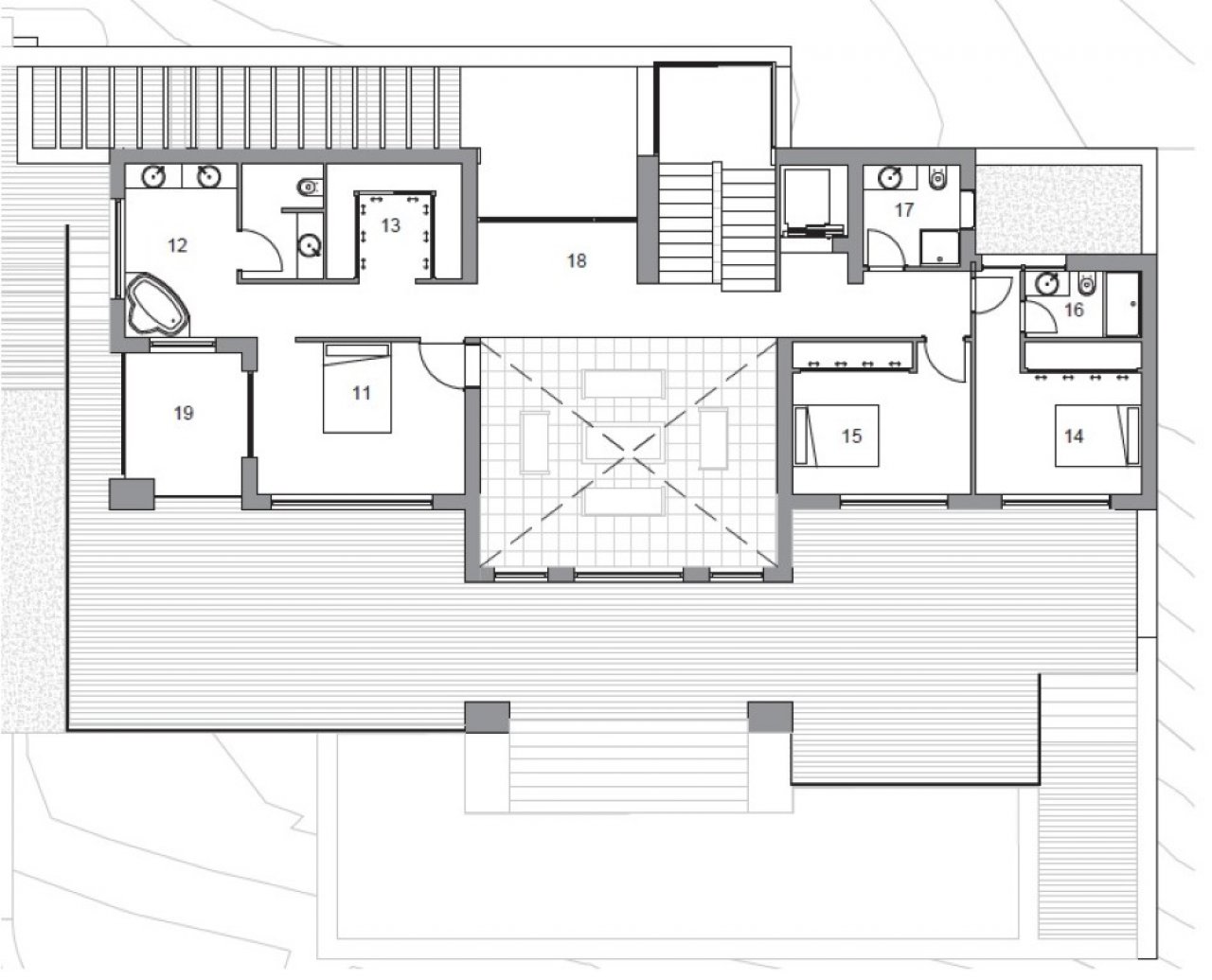
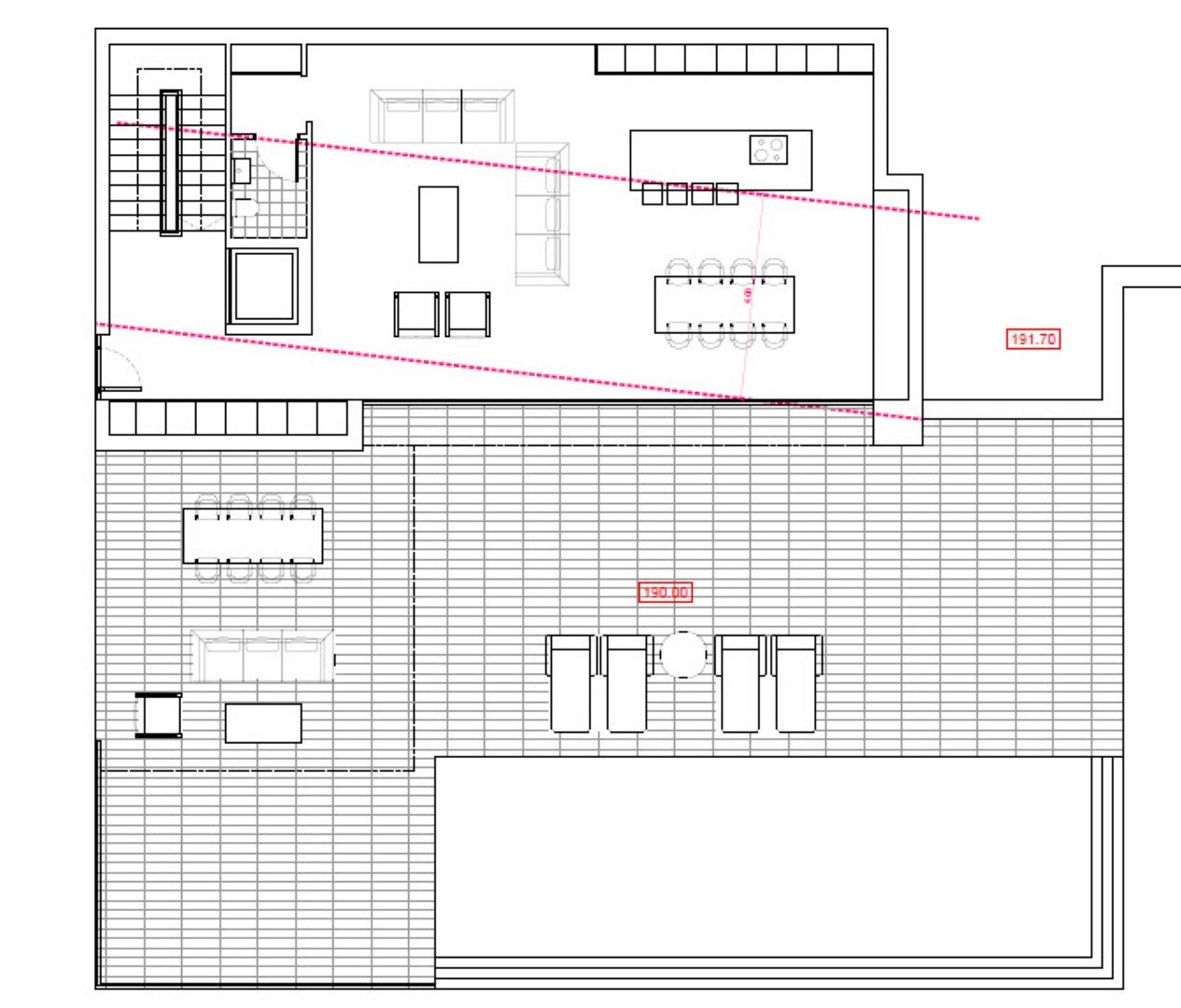
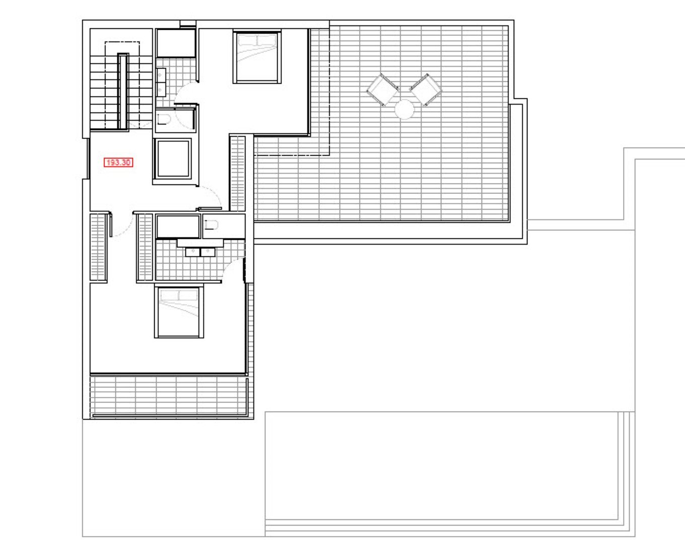
Diese sehr geräumige Villa erstreckt sich über 3 Etagen. Im allgemeinen Wohnbereich befinden sich das geräumige Wohnzimmer mit Essbereich, eine voll ausgestattete moderne Küche, ein Gäste-WC und 2 Doppelschlafzimmer mit Badezimmer en suite. Auf der obersten Etage befinden sich 2 geräumige Doppelschlafzimmer mit Badezimmer en suite und das Hauptschlafzimmer mit Ankleidebereich und Badezimmer en suite. Auf der unteren Etage, neben der Garage, gibt es einen großen Abstellraum, eine Waschküche, ein Heimkino und ein Fitnessstudio mit Jacuzzi. Neben der großzügigen, teilweise überdachten Terrasse mit Swimmingpool gibt es rund um das Haus verschiedene weitere Sitzgelegenheiten, von denen aus Sie die schöne Aussicht genießen können, die diese Villa zu bieten hat.
Haustyp: Villa
Etagenanzahl: 3
Anzahl Schlafzimmer: 5
Anzahl Badezimmer: 5
Pool: ja
Klimaanlage: ja
Anzahl der Parkflächen: 1 x Garage
Baujahr: 2022
Das könnte Ihnen auch gefallen



















































































