Denia:
3493DEN Moderne Neubauvilla in Denia zu verkaufen
Objekt-Nr.: FVH-3493DEN


Preis:
955.000 €
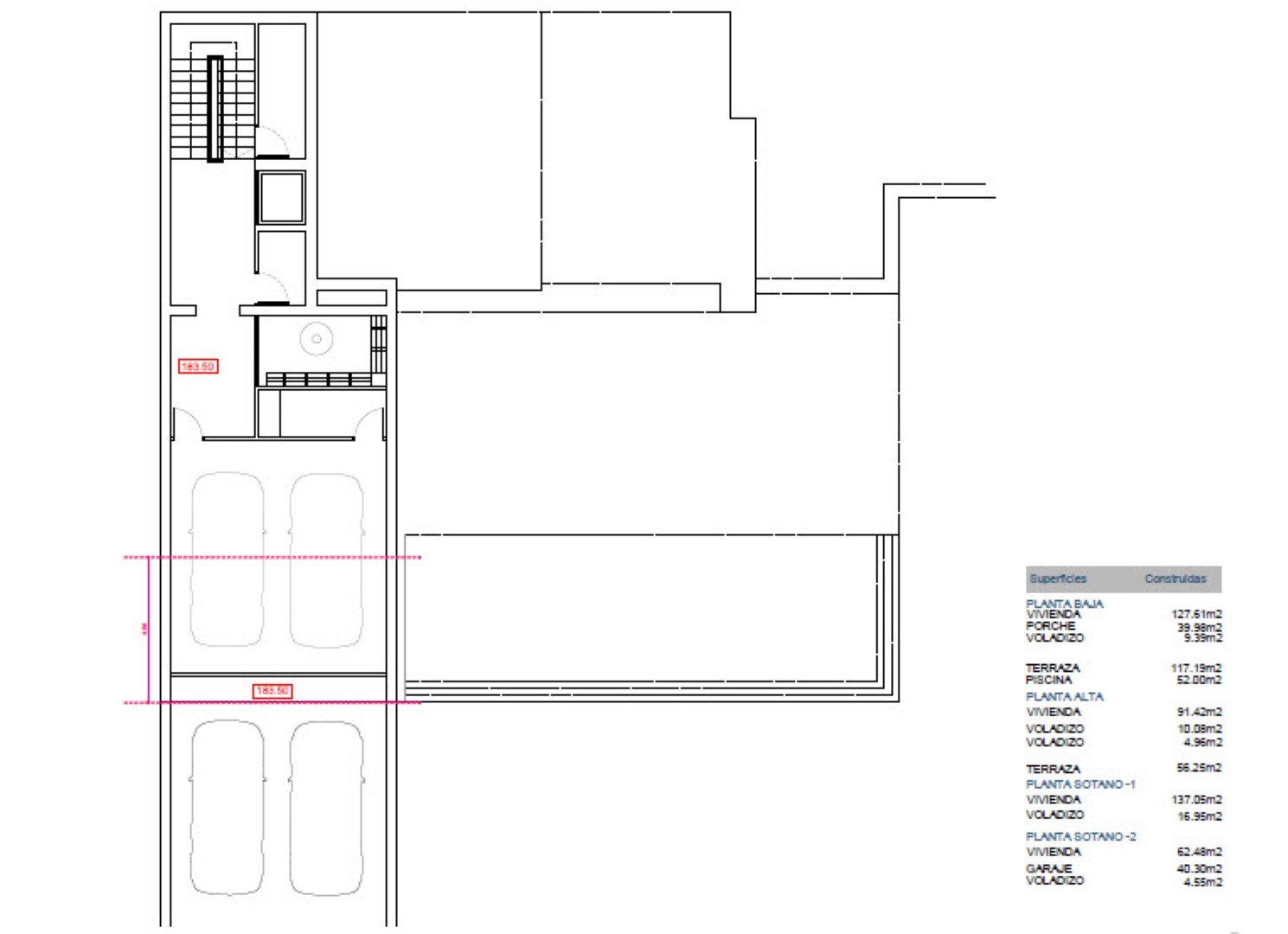
Wohnfläche ca.:
165 m²
Grundstück ca.:
1.167 m²
Zimmeranzahl:
4
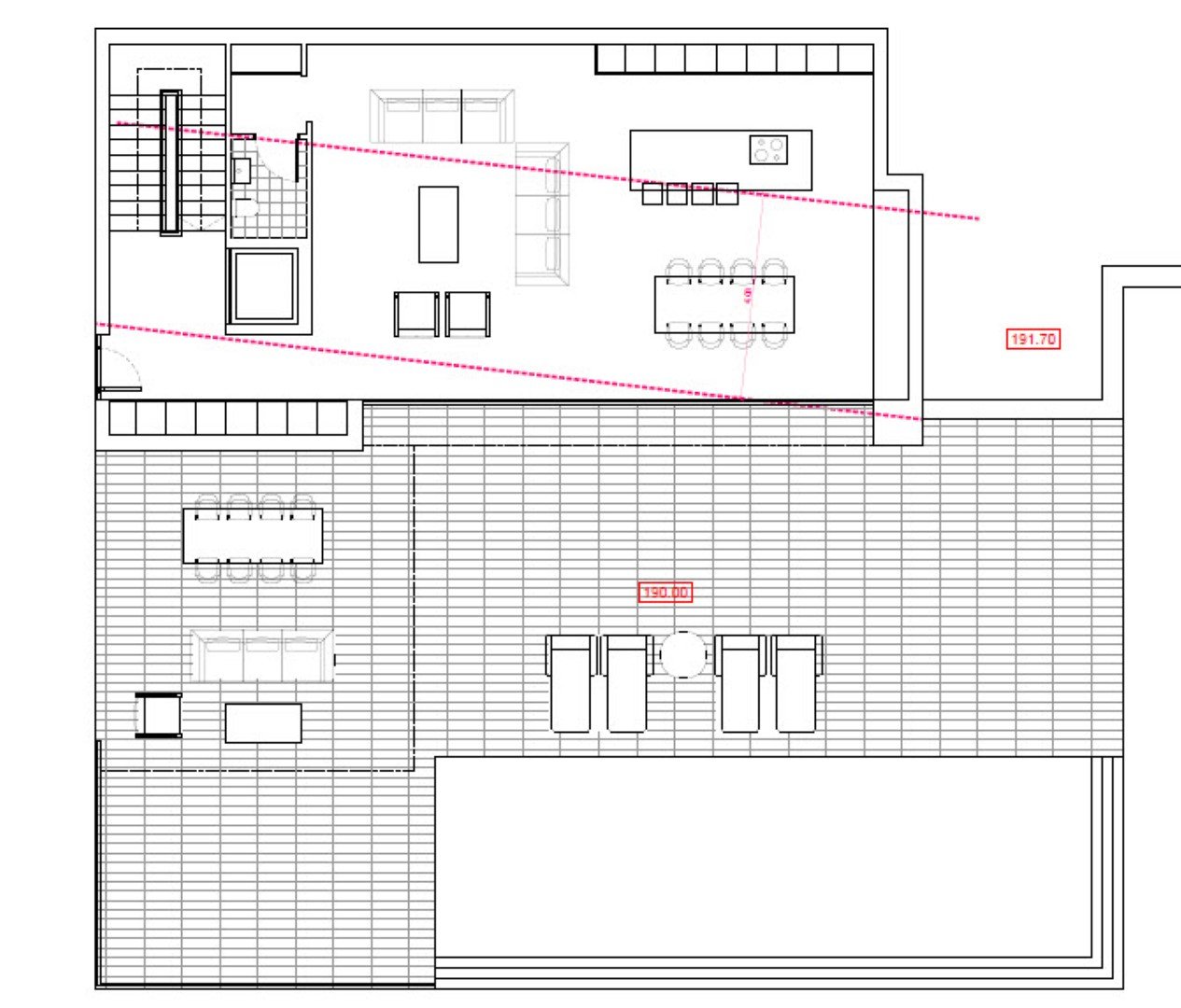
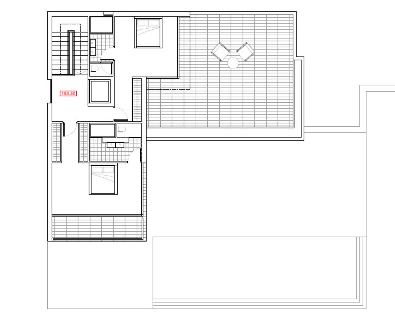
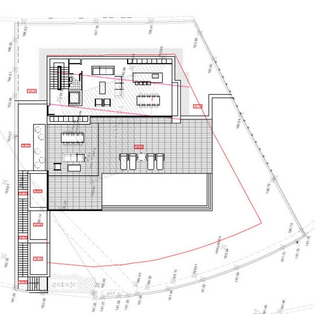
Moderne, neu gebaute Villa zum Verkauf in Denia, nur wenige Schritte vom Strand, der Promenade und dem historischen Stadtzentrum entfernt. Es gibt eine Eingangshalle, ein Wohnzimmer mit offener Küche, einen Hauswirtschaftsraum, ein Hauptschlafzimmer mit eigenem Bad und 2 weitere Doppelschlafzimmer, die sich ein Bad teilen. Von jedem Zimmer aus haben Sie Zugang zur Terrasse. Draußen gibt es eine überdachte Terrasse, eine Sonnenterrasse und einen Swimmingpool. Das Projekt verfügt noch nicht über eine Baugenehmigung, die Fertigstellung nach Vertragsunterzeichnung ist in mindestens 2 Jahren. Weitere Informationen auf Anfrage.
- Doppelverglasung
Haustyp: Villa
Etagenanzahl: 1
Anzahl Schlafzimmer: 3
Anzahl Badezimmer: 2
Pool: ja
Das könnte Ihnen auch gefallen



























































