Benissa:
3502BEN Moderne Neubauvilla mit Meerblick zu verkaufen in Benissa
Objekt-Nr.: FVH-3502BEN




















Preis:
2.595.000 €
Wohnfläche ca.:
770 m²
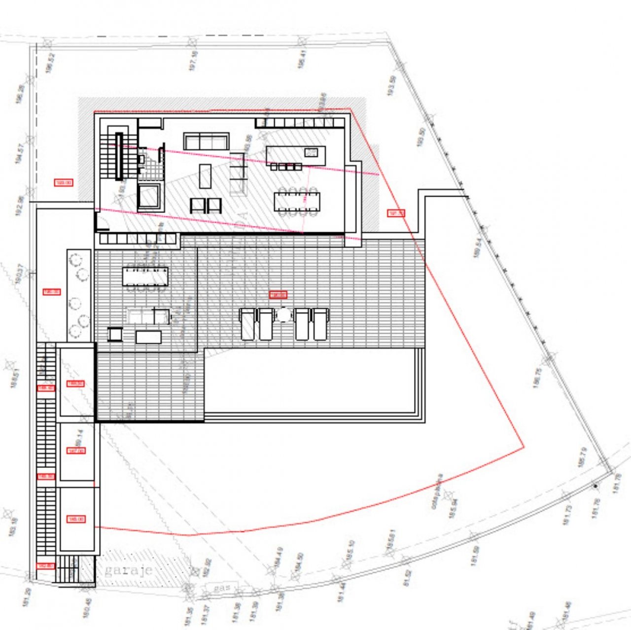
Grundstück ca.:
718 m²
Zimmeranzahl:
5
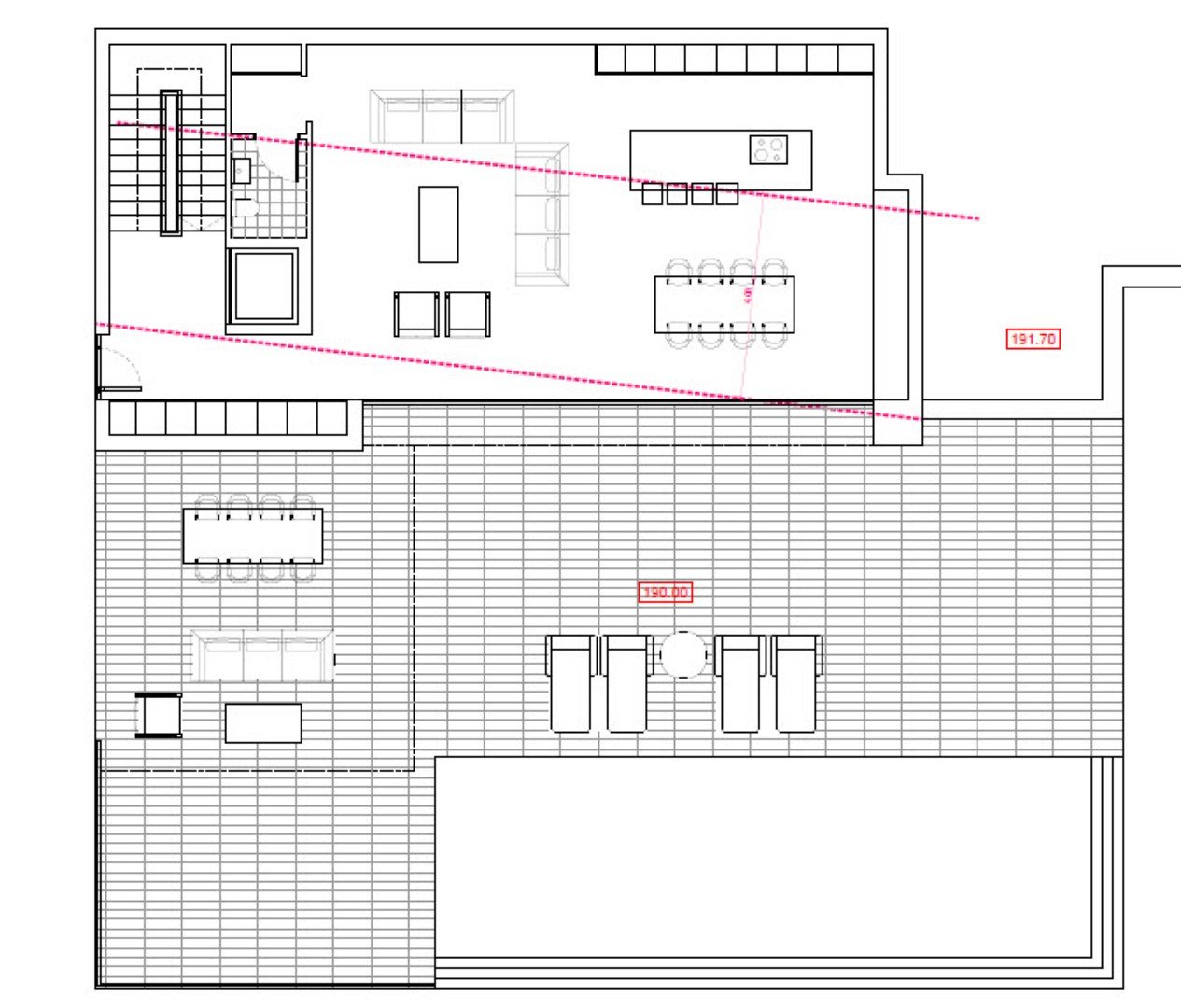
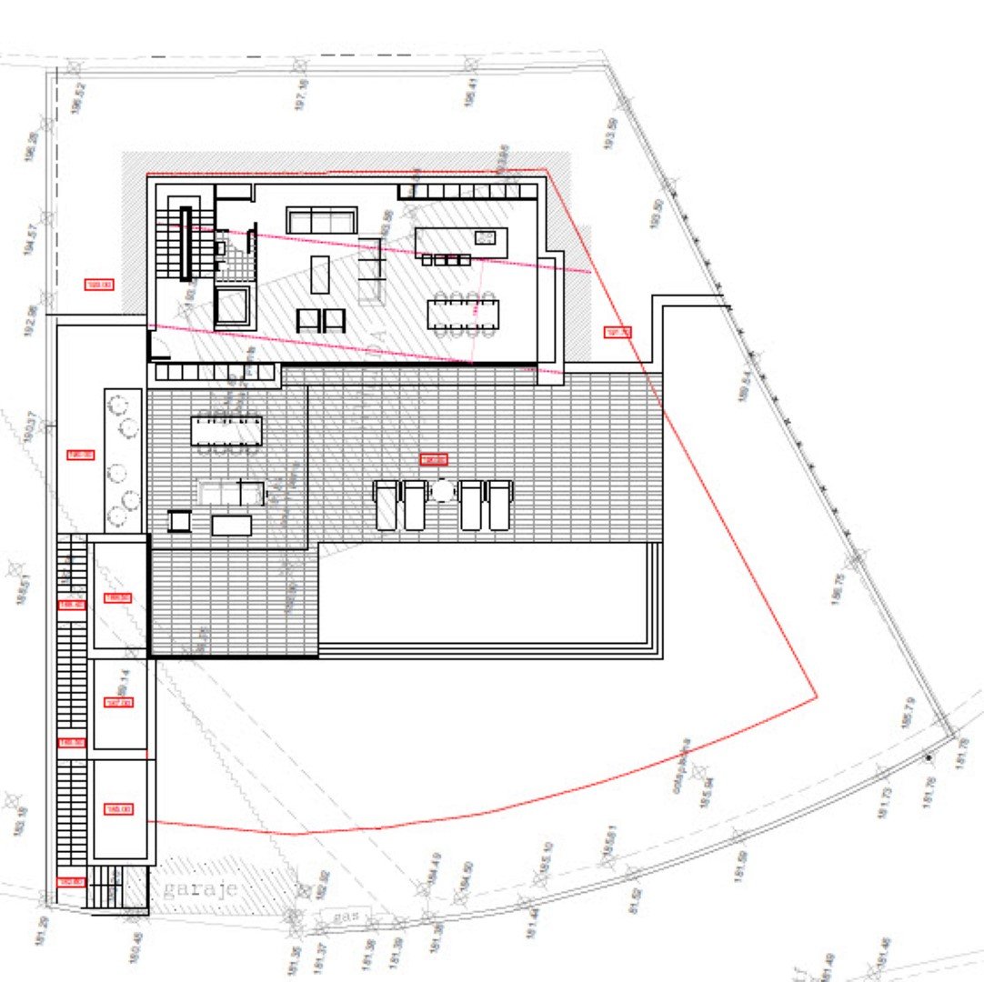
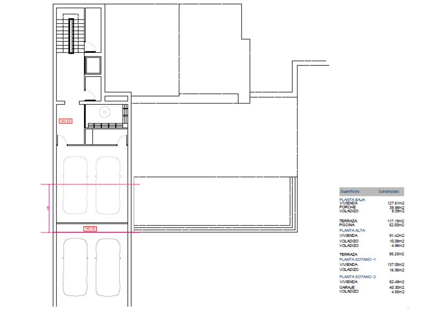
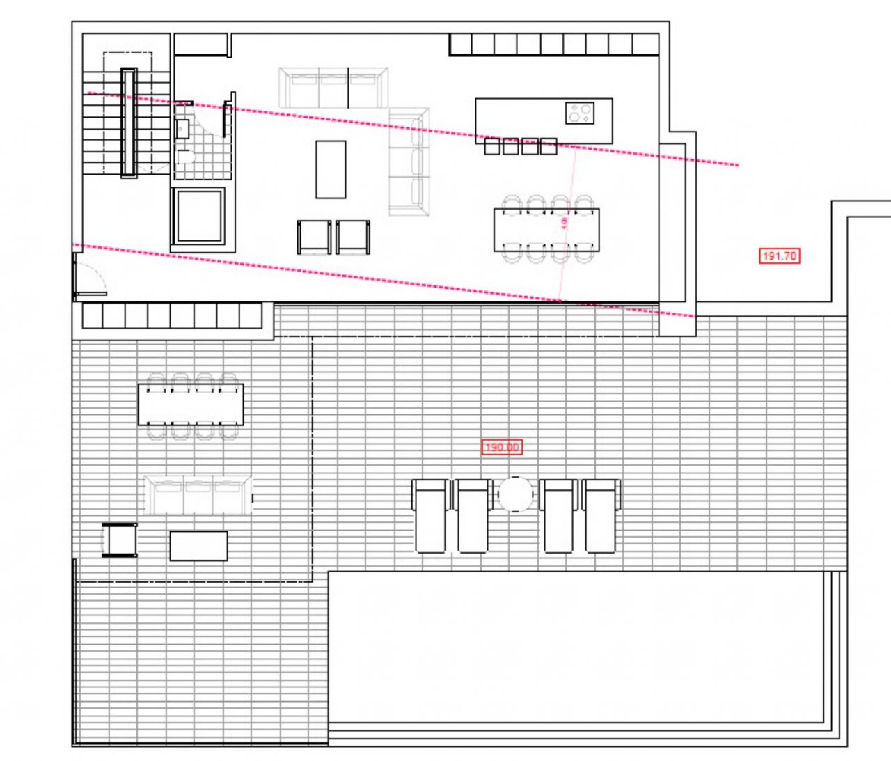
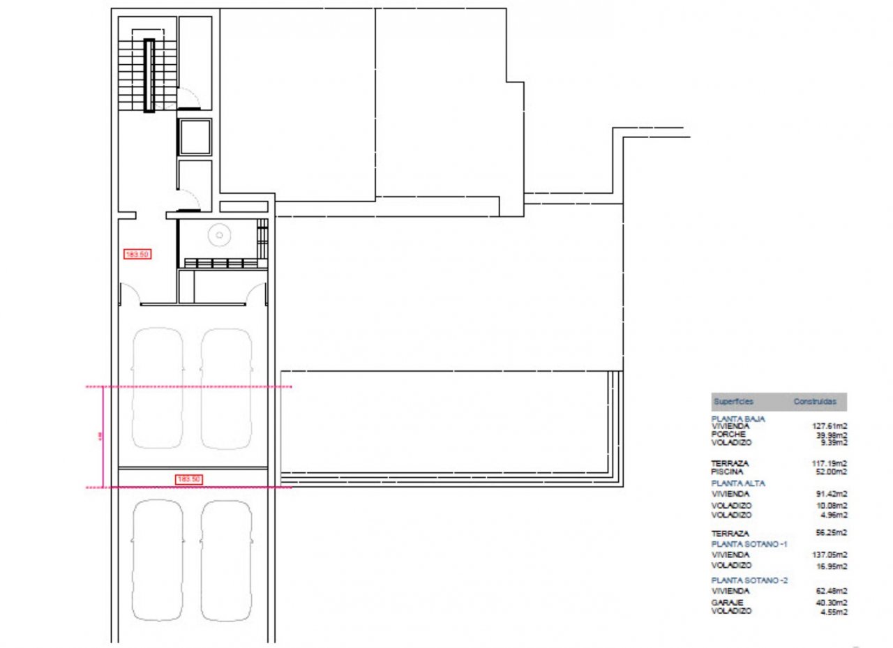
Dieses Projekt verfügt über eine Baugenehmigung, der Bau kann sofort nach Unterzeichnung des Bauvertrags beginnen. Moderne Neubauvilla mit Meerblick in Benissa zu verkaufen. Diese sehr große Luxusvilla besteht aus 4 Etagen, die durch einen Aufzug, eine Innentreppe und eine Außentreppe verbunden sind. Im Erdgeschoss gibt es eine Eingangshalle mit einer Gästetoilette und ein sehr geräumiges Wohnzimmer mit einer offenen Küche. Durch große Schiebefenster gelangen Sie nach draußen, wo Sie von der überdachten Terrasse, vom Infinity-Pool und von der Sonnenterrasse aus einen spektakulären Blick auf das Meer haben.
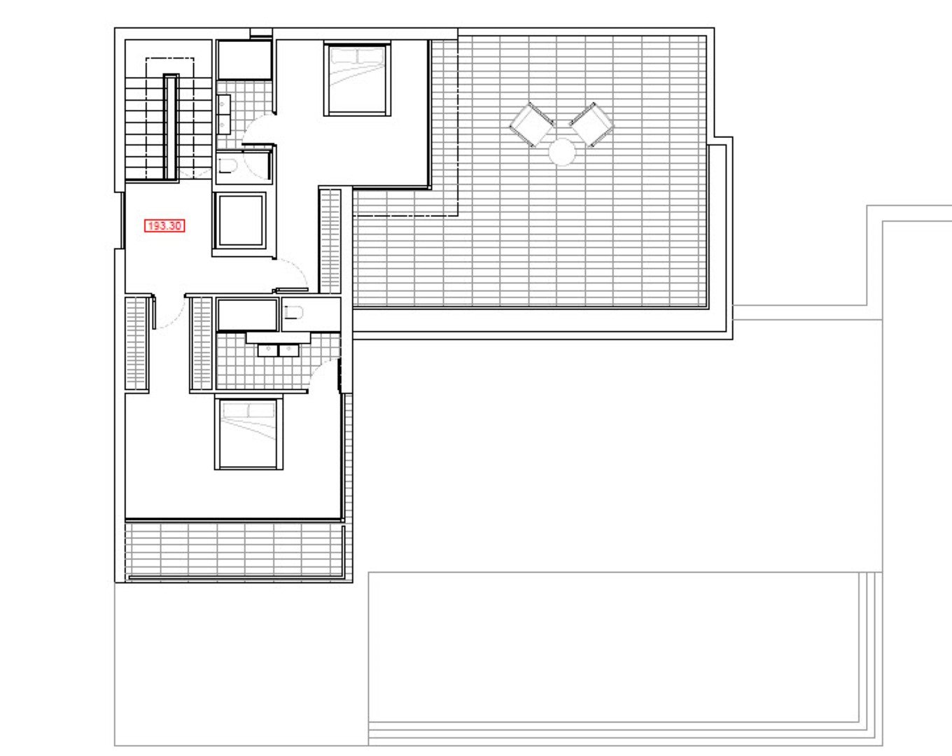
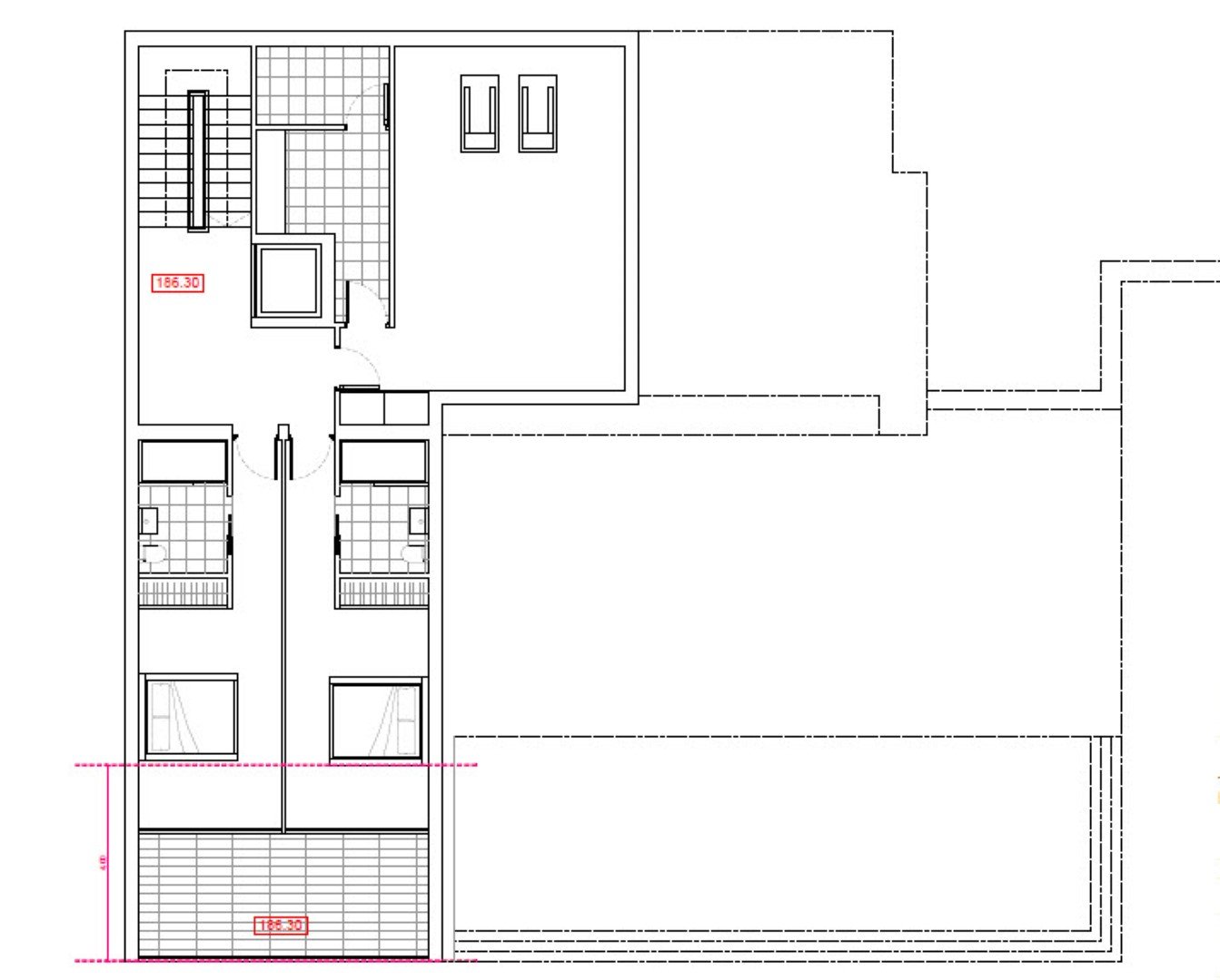
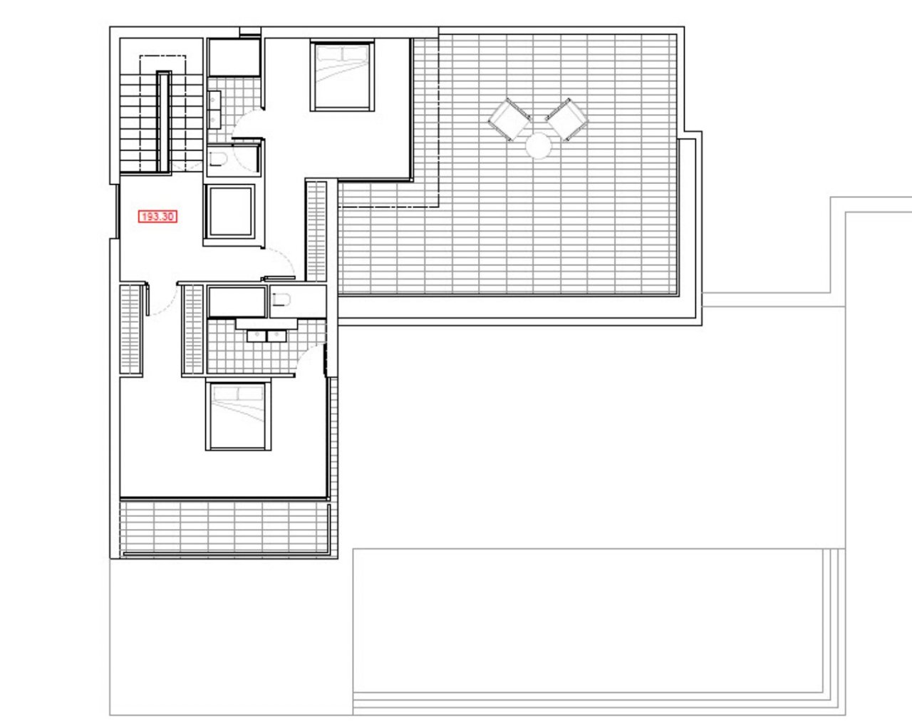
Im ersten Stock befinden sich 2 Doppelschlafzimmer, beide mit eigenem Bad und einer privaten Terrasse. Im ersten Untergeschoss befinden sich 2 weitere Doppelschlafzimmer, beide mit eigenem Bad und Zugang zu einer Terrasse. Außerdem gibt es auf dieser Ebene einen weiteren Mehrzweckraum und Stauraum. Ganz unten befinden sich dann eine Garage für 2 Autos und der Technikraum. Draußen im mediterranen Garten gibt es weitere Parkplätze für 2 Autos. Es wurden nur erstklassige Materialien verwendet und das Haus ist mit allen modernen technischen Geräten ausgestattet. Weitere Informationen auf Anfrage.
- Doppelverglasung
Haustyp: Villa
Etagenanzahl: 4
Anzahl Schlafzimmer: 4
Anzahl Badezimmer: 4
Pool: ja
Alarmanlage: ja
Anzahl der Parkflächen: 1 x Garage
Baujahr: 2022
Das könnte Ihnen auch gefallen
