Javea:
4105JAV - Grundstück mit Meerblick zu verkaufen in Javea
Objekt-Nr.: FVH-4105JAV








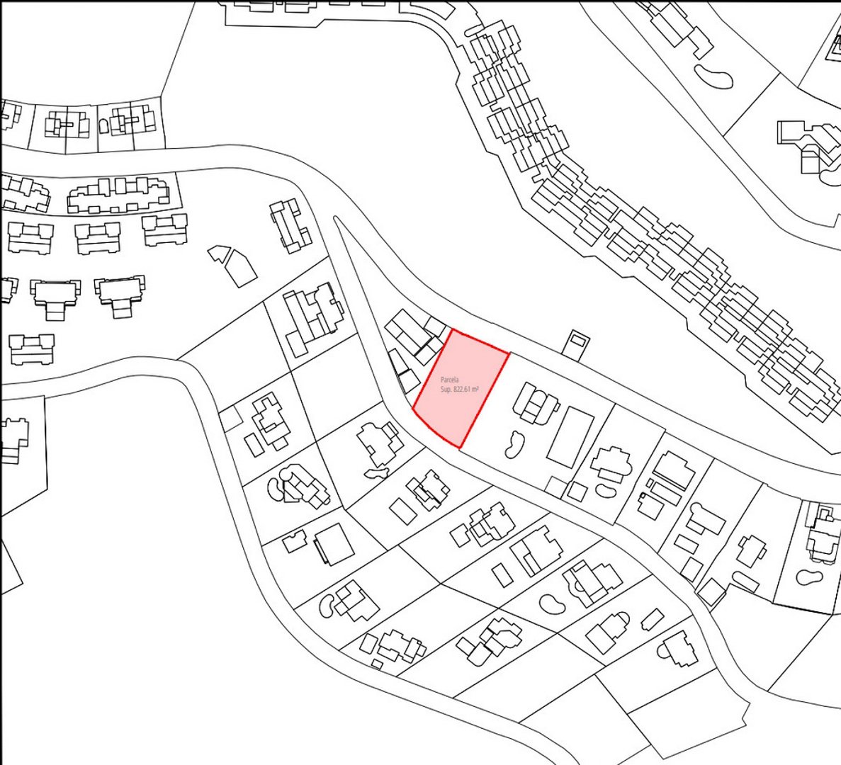
Grundstück ca.:
1.500 m²
Preis:
375.000 €
Objektbeschreibung
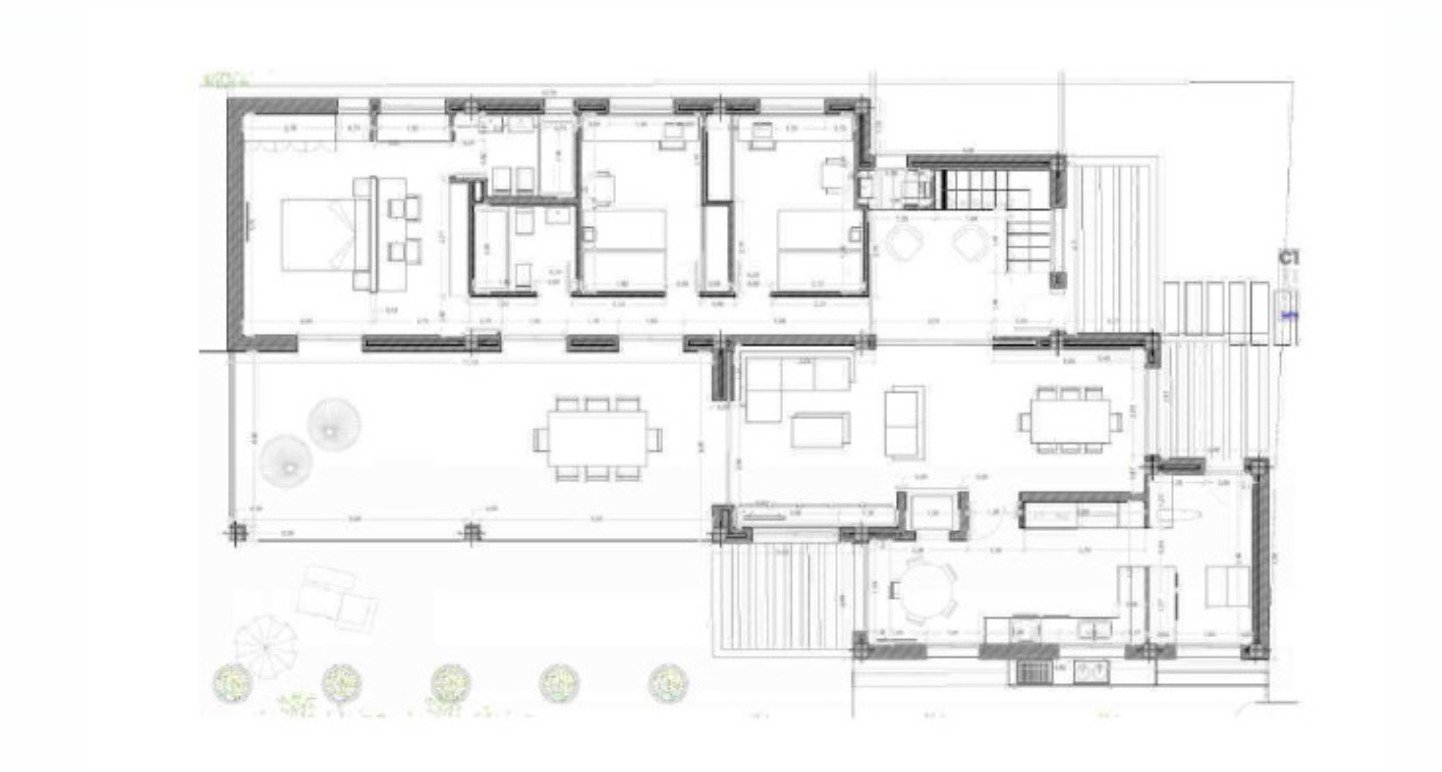
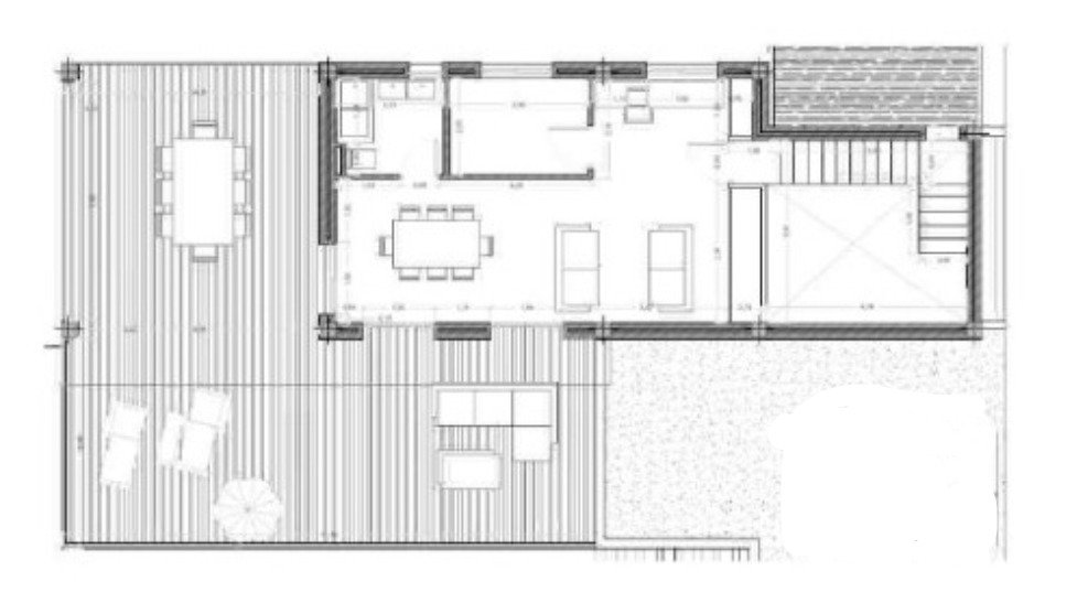
Dieses Grundstück befindet sich am Kap von San Antonio. Damit ist es in der Nähe des Hafens, des Strandes und des historischen Zentrums von Jávea! Das Grundstück ist 1500 m2 groß und es können bis zu 2 Etagen gebaut werden. Wenn ein Haus gebaut wird, haben Sie von der ersten Etage aus einen schönen Blick auf die Bucht von Javea. Im hinteren Teil grenzt das Grundstück an ein Naturschutzgebiet, wo Sie Ruhe und Privatsphäre genießen können. Hinweis: Auf dem Grundstück befindet sich ein Antennenmast. Die Renderings sind rein informativ, um eine Vorstellung davon zu vermitteln, wie das Grundstück bebaut werden kann.
Weitere Informationen
Nutzungsart: Wohnen
Das könnte Ihnen auch gefallen
Objekt weiterempfehlen





























