Benitachell:
4178JAV Einzigartige Neubauvilla zum Verkauf mit Meerblick in Cumbre del Sol
Objekt-Nr.: FVH-4178BELL
























Preis:
2.073.000 €
Wohnfläche ca.:
615 m²
Grundstück ca.:
951 m²
Zimmeranzahl:
4
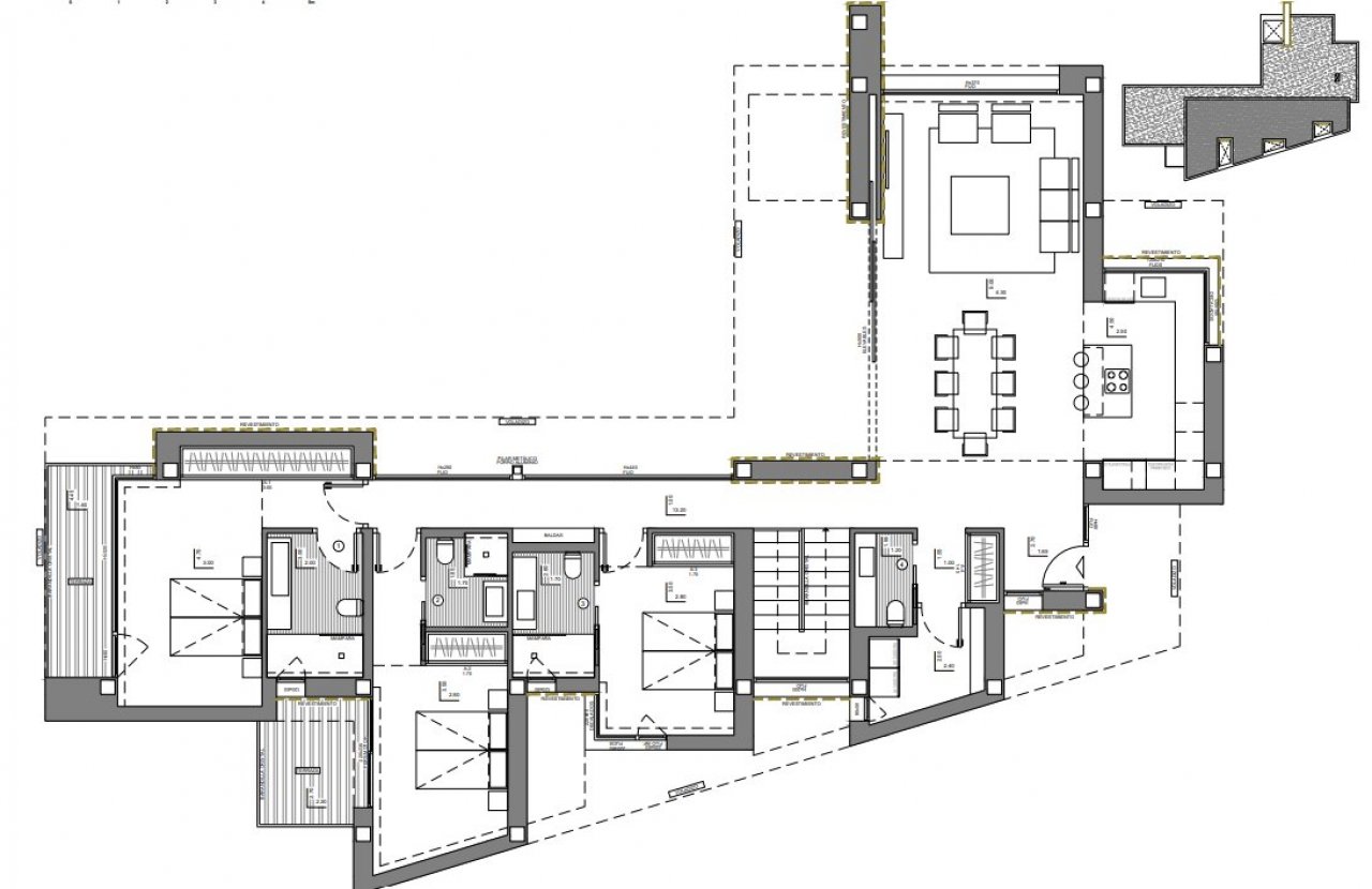
Diese wunderschöne, einzigartige Villa befindet sich in Cumbre del Sol und bietet einen atemberaubenden Blick auf das azurblaue Mittelmeer und die Klippen von Benitachell. Idyllische Strände sind weniger als einen Kilometer entfernt, das touristische Fischerdorf Moraira nur 10 Autominuten und der Sandstrand von Jávea knapp 20 Autominuten. Eine internationale Schule, ein Supermarkt und eine Apotheke sind nur 5 Autominuten entfernt. Der gesamte Wohn- und Schlafbereich erstreckt sich über eine Etage, die bündig mit der Terrasse und dem Poolbereich abschließt, was die Villa äußerst komfortabel macht. Der Wohnbereich besteht aus einem geräumigen Wohn-Esszimmer mit offener Küche, einer Waschküche und einem Gäste-WC. Vom Wohnzimmer aus hat man durch die Schiebefenster direkten Zugang zur Terrasse, die teilweise überdacht ist. Der Schlafbereich besteht aus drei Doppelschlafzimmern mit jeweils einem eigenen Bad. Zwei Schlafzimmer haben auch eine private Terrasse. Das Erdgeschoss besteht aus einer Garage, einem großen zusätzlichen Raum, der als zusätzliches Schlafzimmer, Fitnessraum, Büro usw. genutzt werden kann, und zwei überdachten Terrassen. Von fast allen Zimmern aus hat man Meerblick. Außerdem gibt es mehr als 70 m2 Terrasse, einen Infinity-Pool und eine Außendusche.
Haustyp: Villa
Etagenanzahl: 2
Anzahl Schlafzimmer: 3
Anzahl Badezimmer: 4
Pool: ja
Alarmanlage: ja
Anzahl der Parkflächen: 1 x Garage
Baujahr: 2023
Das könnte Ihnen auch gefallen
Benitachell






















































































