Benitachell:
3581BELL Moderne Villa im Bau zum Verkauf in Benitachell
Objekt-Nr.: FVH-3581BELL






























Preis:
625.000 €
Wohnfläche ca.:
153 m²
Grundstück ca.:
707 m²
Zimmeranzahl:
4
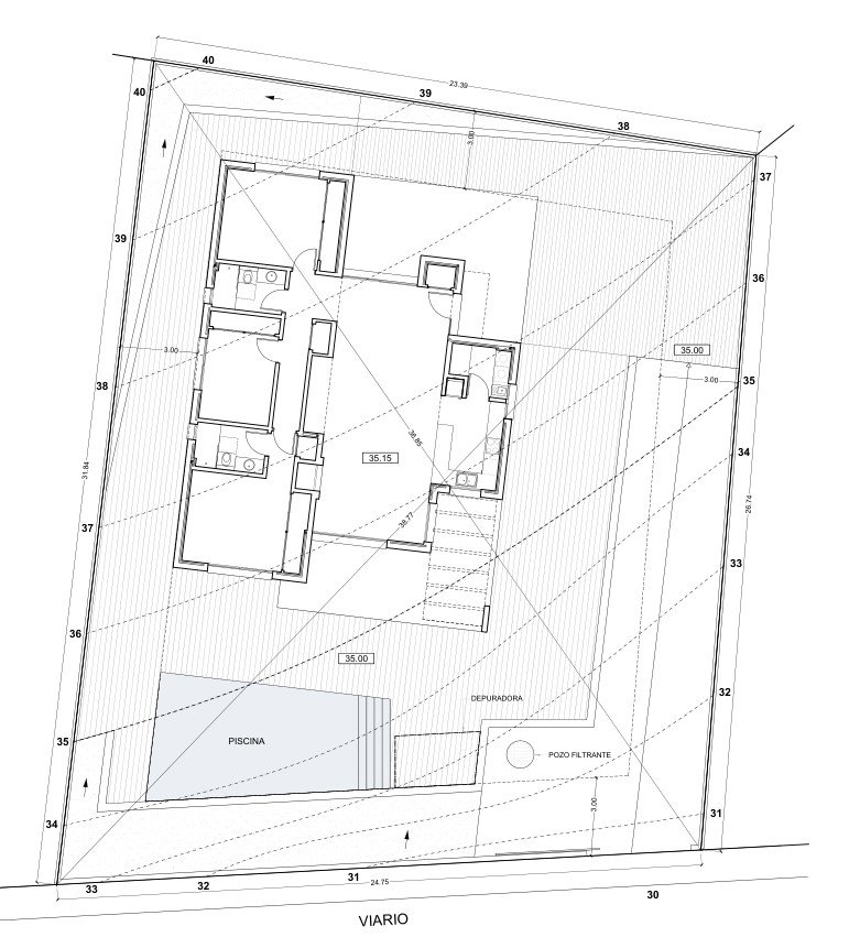
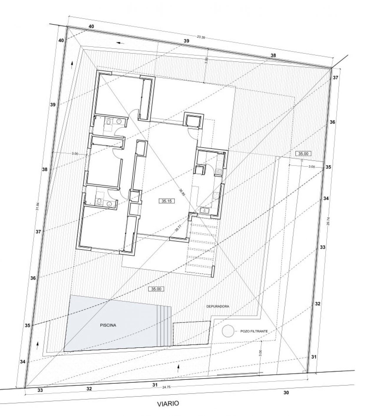
Diese moderne Villa befindet sich in der ruhigen Urbanisation Raco de Nadal und bietet einen wunderschönen Blick über das Tal von Benitachell bis zur Cumbre del Sol. Das gesamte Anwesen befindet sich auf einer Etage, die ein Höchstmaß an Komfort gewährleistet. Es gibt ein geräumiges Wohn-Esszimmer mit einer voll ausgestatteten offenen Küche, einen Hauswirtschaftsraum und drei Doppelschlafzimmer. Davon hat ein Schlafzimmer ein eigenes Bad, während sich die beiden anderen Schlafzimmer ein Bad teilen. Außerdem gibt es eine Pergola, eine große Terrasse am Pool und einen Parkplatz. Das Anwesen liegt am Fuße des Naturparks Tossal Gros, wo es mehrere Wander- und Mountainbike-Routen gibt. Sowohl das Zentrum von Jávea als auch das von Moraira sind in 15 Minuten zu erreichen. Auch mehrere schöne Strände sowohl in Jávea als auch in Moraira sind in 15 Minuten zu erreichen. Das Zentrum von Benitachell ist in etwas mehr als 5 Minuten zu erreichen. Die Villa befindet sich derzeit im Bau. Weitere Informationen auf Anfrage.
- Pergola
Haustyp: Villa
Etagenanzahl: 1
Anzahl Schlafzimmer: 3
Anzahl Badezimmer: 2
Pool: ja
Baujahr: 2023
Das könnte Ihnen auch gefallen
8150PED Villa zum Verkauf in Pedreguer
