Benissa:
3615BEN moderne Neubauvilla mit Meerblick zum Verkauf in Benissa
Objekt-Nr.: FVH-3615BEN


























Preis:
2.200.000 €
Wohnfläche ca.:
560 m²
Grundstück ca.:
1.500 m²
Zimmeranzahl:
5
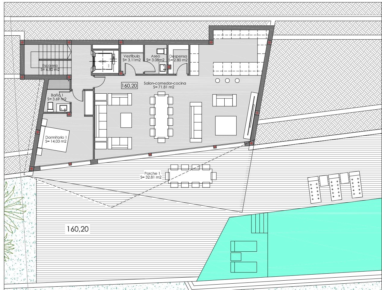
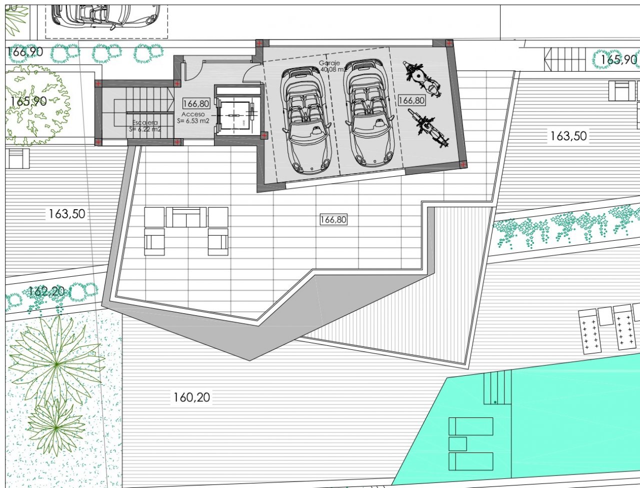
Moderne Neubauvilla mit Meerblick zum Verkauf in Raco de Galeno, ausgestattet mit allem Luxus, es gibt 4 Etagen, die durch einen Aufzug und eine Innentreppe miteinander verbunden sind. Im Erdgeschoss gibt es eine Eingangshalle mit Garderobe und Gäste-WC, ein Wohnzimmer mit voll ausgestatteter offener Küche mit Speisekammer, eine Lounge und eine zweite Sitzecke zum Fernsehen. Von diesem Raum aus können Sie nach draußen auf die 160 m² große Terrasse gehen, von der ein Teil überdacht ist. Hier finden Sie auch den Infinity-Pool mit einer flachen Zone zum Entspannen. Es gibt auch ein Schlafzimmer mit eigenem Bad. Im ersten Stock befindet sich das Hauptschlafzimmer von 40 m² mit eigenem Bad und begehbarem Kleiderschrank, außerdem gibt es zwei weitere Schlafzimmer mit eigenem Bad. Sie können das Haus im obersten Stockwerk betreten, es gibt eine Garage für 2 Autos und etwas Stauraum, die Eingangshalle mit Aufzug und Treppe und es gibt auch eine große Dachterrasse. Im Untergeschoss befindet sich ein SPA mit Innenpool, Sauna, Fitnessraum und Dusche. Außerdem gibt es ein Heimkino, einen Hauswirtschaftsraum, eine Toilette und einen großen Raum zum Entspannen. Draußen gibt es einen wunderschönen mediterranen Garten mit vielen Natursteinmauern.
Haustyp: Villa
Etagenanzahl: 4
Anzahl Schlafzimmer: 4
Anzahl Badezimmer: 4
Pool: ja
Klimaanlage: ja
Alarmanlage: ja
Anzahl der Parkflächen: 1 x Garage
Baujahr: 2024
Das könnte Ihnen auch gefallen
