Benissa:
4299BEN Luxuriöse Neubauvilla mit fantastischem Meerblick in Benissa zu verkaufen
Objekt-Nr.: FVH-4299BEN






















































Preis:
3.017.000 €
Wohnfläche ca.:
383 m²
Grundstück ca.:
921 m²
Zimmeranzahl:
5
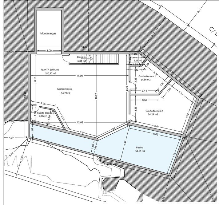
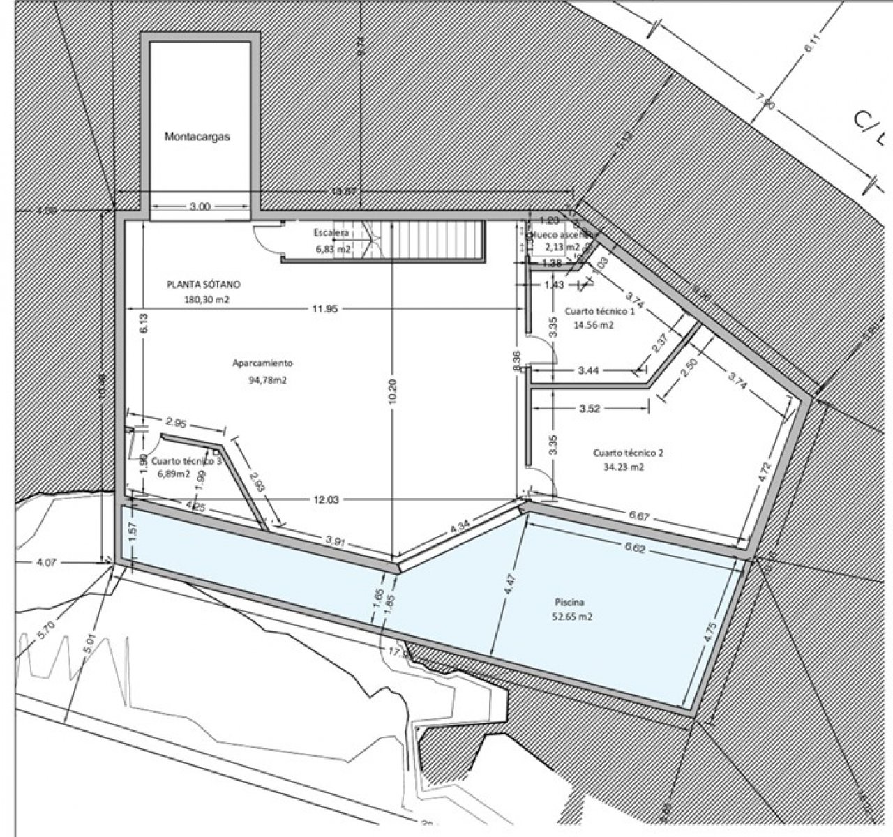
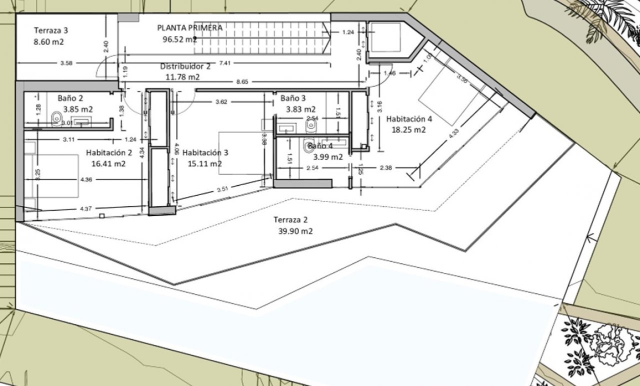
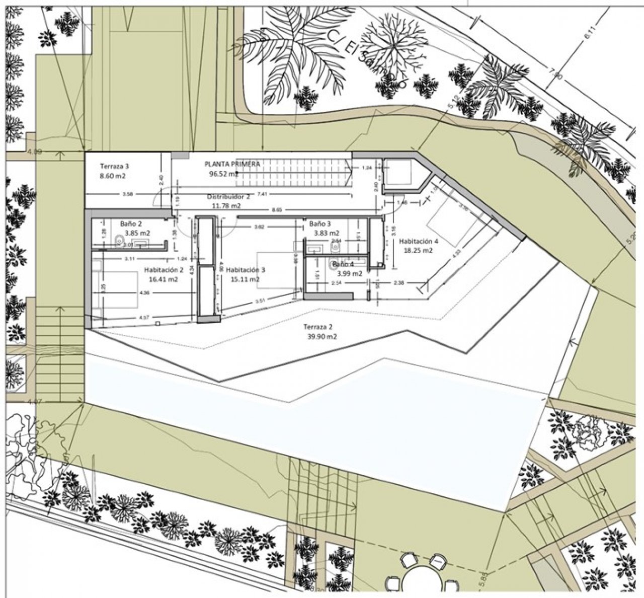
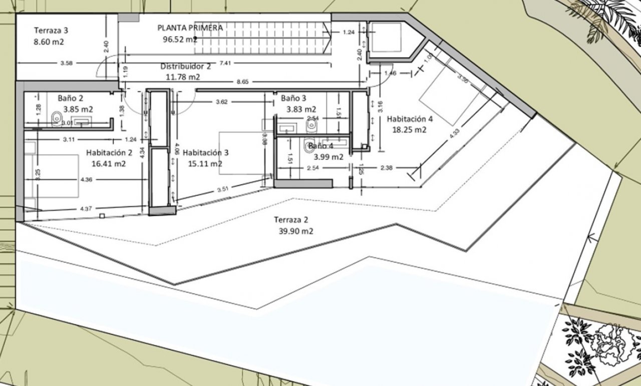
Diese luxuriöse Villa wird auf einem Grundstück an der wunderschönen Küste von Benissa gebaut. Sie bietet einen weiten Blick über das Meer, entlang der Klippen bis hin zum Peñon de Ifach in Calpe. Die Villa erstreckt sich über zwei Etagen und verfügt außerdem über ein Untergeschoss. Das Erdgeschoss besteht aus einem geräumigen Wohn-Esszimmer mit offener Küche, einem Schlafzimmer mit Doppelbett und eigenem Bad und einer Gästetoilette. Sowohl das Wohnzimmer als auch das Schlafzimmer haben durch die großen Schiebefenster Zugang zur überdachten Terrasse.…
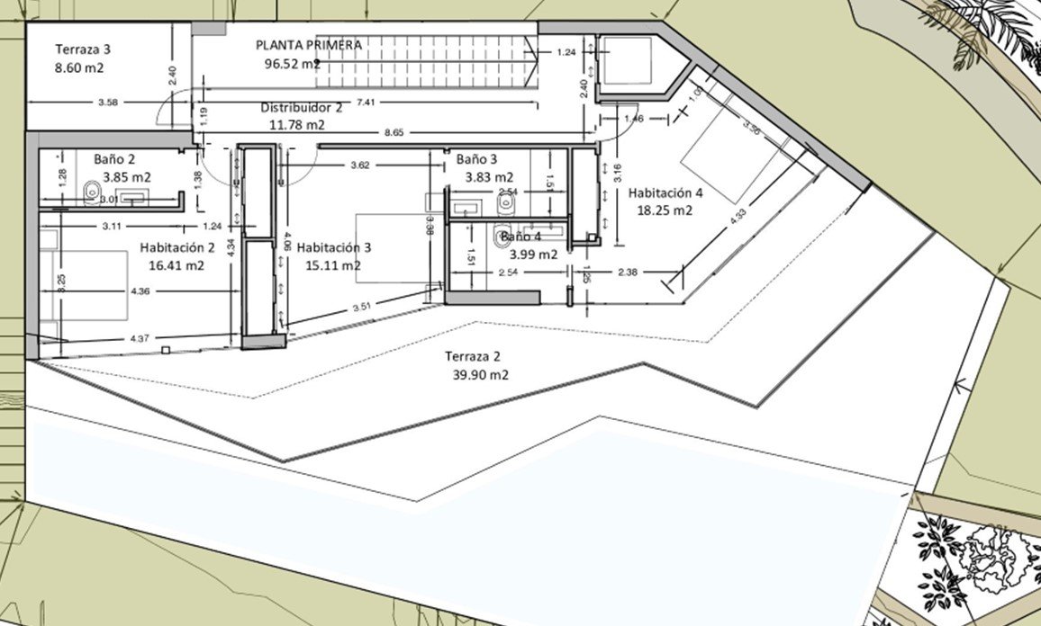
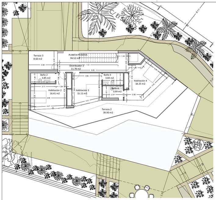
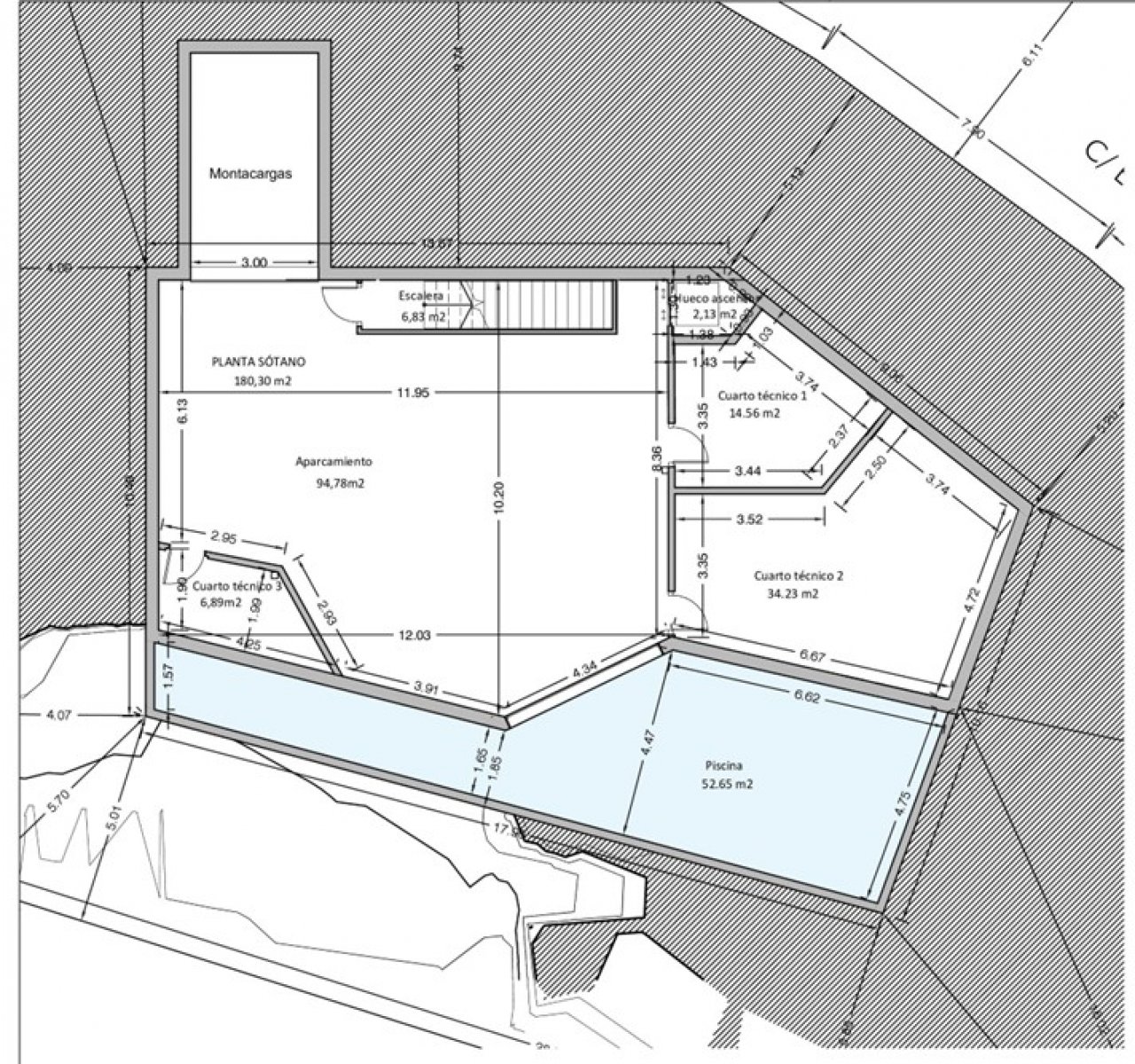
Das Obergeschoss besteht aus drei Doppelschlafzimmern, jedes mit eigenem Bad, einer großen Terrasse auf der Westseite und einer zweiten, kleineren Terrasse auf der Ostseite. Im Untergeschoss befinden sich eine große Garage und drei Technikräume. Draußen auf der Terrasse befindet sich ein großer Swimmingpool, von dem aus Sie die fantastische Aussicht genießen können. Die Villa ist auch mit einem Aufzug ausgestattet. Die Villa wird von einem minimalistischen, pflegeleichten Garten umgeben, der mit Beleuchtung und automatischer Bewässerung ausgestattet ist. Beeindruckende Aussichten, nur einen Steinwurf von mehreren idyllischen Stränden entfernt, umgeben von mehreren luxuriösen Villen und nur 10 Minuten sowohl vom touristischen Küstenort Moraira als auch von der lebhaften Küstenstadt Calpe entfernt, zögern Sie nicht länger und besuchen Sie diese fantastische Lage! Das angrenzende niedrigere Grundstück ist ebenfalls zu verkaufen, einschließlich eines Projekts.
Haustyp: Villa
Etagenanzahl: 2
Anzahl Schlafzimmer: 4
Anzahl Badezimmer: 4
Pool: ja
Baujahr: 2024
Das könnte Ihnen auch gefallen
