Benissa:
4309BEN Luxuriöse Neubauvilla mit Panoramablick auf das Meer in Benissa zu verkaufen
Objekt-Nr.: FVH-4309BEN






























































Preis:
2.200.000 €
Wohnfläche ca.:
357 m²
Grundstück ca.:
1.058 m²
Zimmeranzahl:
5
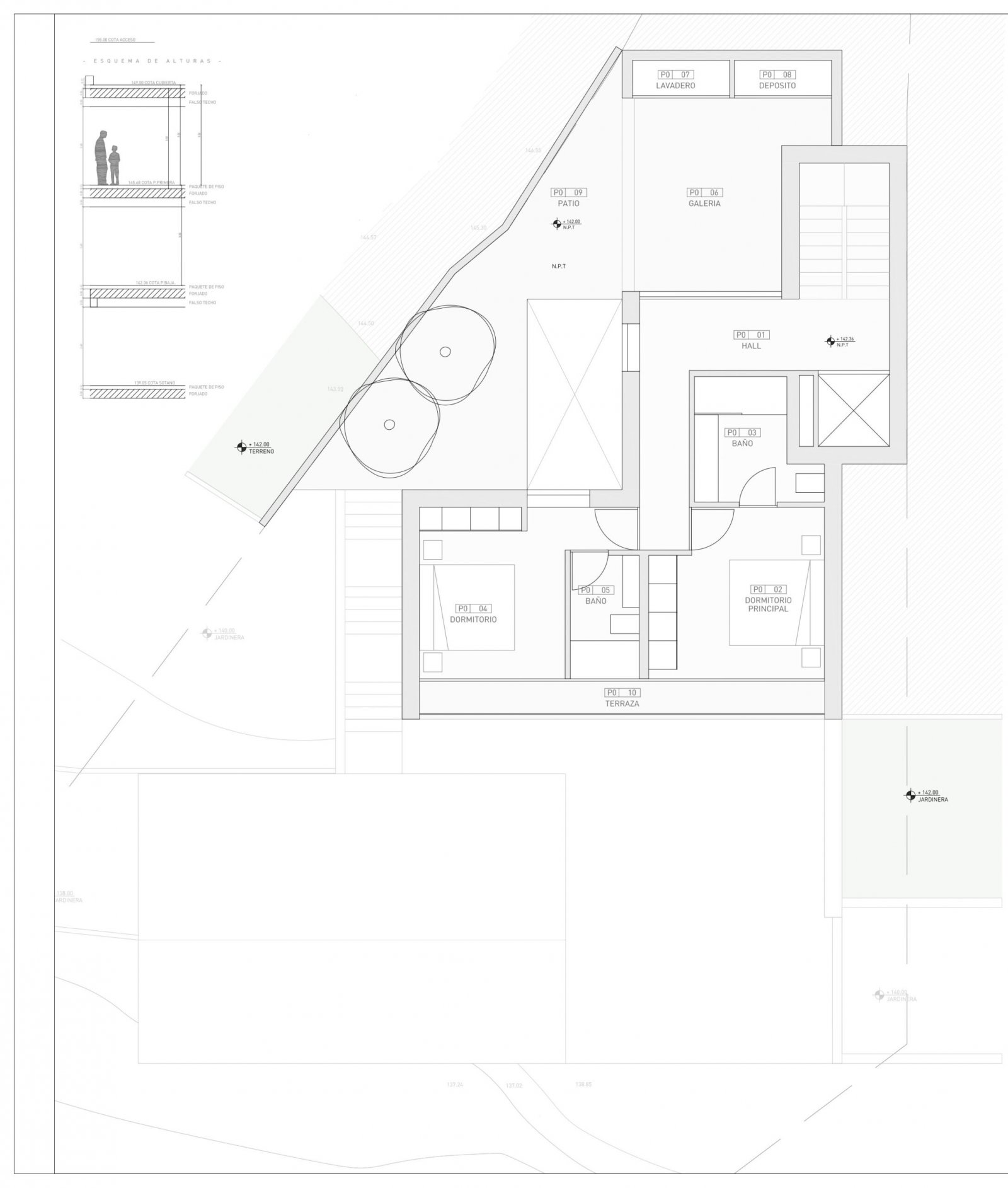
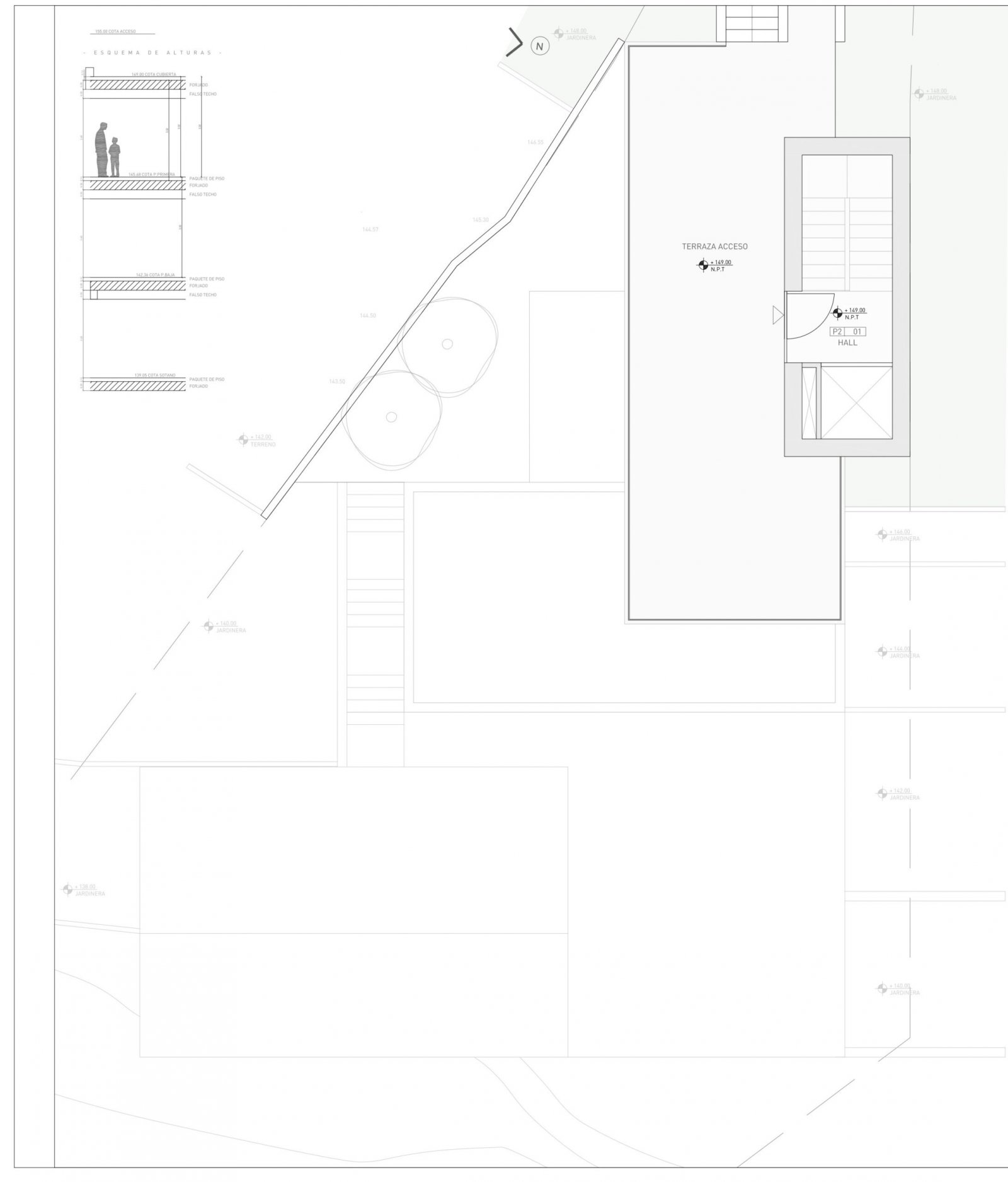
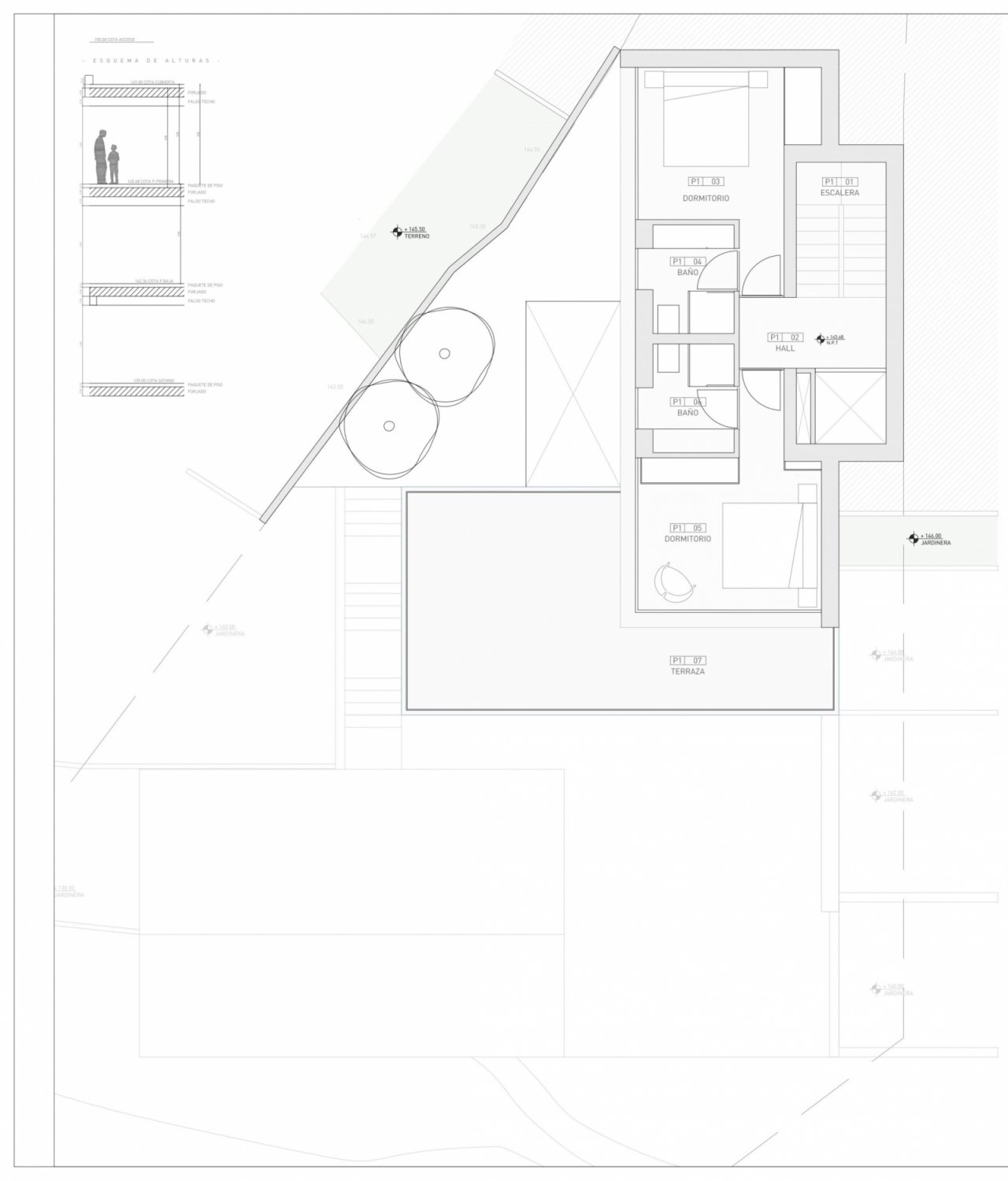
Diese moderne Villa befindet sich in Benissa und bietet einen atemberaubenden Blick über die Küste vom Cap Dor in Moraira bis zum Peñon de Ifach in Calpe. Die Villa erstreckt sich über vier Etagen, die durch einen Aufzug verbunden sind. Auf Straßenebene gibt es einen Parkplatz für zwei Autos. Über eine Treppe gelangen Sie in die oberste Etage, wo sich eine Halle und die Treppe und der Aufzug zu den anderen Etagen befinden. Es besteht die Möglichkeit, auch einen Aufzug vom Parkplatz zur Halle einzubauen, um maximalen Komfort zu schaffen. Eine Etage tiefer befinden sich zwei Doppelschlafzimmer. Jedes Schlafzimmer hat ein eigenes Badezimmer und eines der Schlafzimmer hat eine große Terrasse. Eine Etage tiefer befinden sich zwei weitere Doppelschlafzimmer, beide mit eigenem Bad und mit Zugang zu einem gemeinsamen Balkon. Auf dieser Etage gibt es auch eine überdachte Terrasse, einen kleinen Garten, eine Waschküche und einen Technikraum.…
Das Erdgeschoss besteht aus einem sehr geräumigen Wohnzimmer mit einer offenen Küche mit einer großen Kochinsel und einer Gästetoilette. Draußen gibt es einen 3,5 x 10 m großen Swimmingpool, der von einer großen Terrasse mit Grill umgeben ist. An der Westseite der Villa befindet sich eine weitere Terrasse, so dass diese Etage nicht nur von Südosten, sondern auch von Westen her natürliches Licht erhält. Durch die großen Fenster können Sie außerdem von allen Etagen aus die schöne Aussicht genießen. Die Villa verfügt über eine Fußbodenheizung und eine Klimaanlage. Die schöne Küste von Benissa ist nur 2 km entfernt und bietet mehrere idyllische Strände, die zum Sonnenbaden, Schnorcheln usw. einladen. Außerdem ist die Villa sehr zentral gelegen, was die umliegenden Dörfer und Städte betrifft. In nur 10 Minuten erreichen Sie die großen Sandstrände von Calpe sowie das historische Zentrum von Benissa. Und in knapp 20 Minuten sind Sie in dem touristischen Hafenort Moraira.
Haustyp: Villa
Etagenanzahl: 4
Anzahl Schlafzimmer: 4
Anzahl Badezimmer: 4
Terrasse: 1
Pool: ja
Baujahr: 2024
Das könnte Ihnen auch gefallen


















































































