Benissa:
4310BEN Moderne Villa mit atemberaubendem Meerblick in Benissa zu verkaufen
Objekt-Nr.: FVH-4310BEN




























































































Preis:
2.300.000 €
Wohnfläche ca.:
330 m²
Grundstück ca.:
1.448 m²
Zimmeranzahl:
5
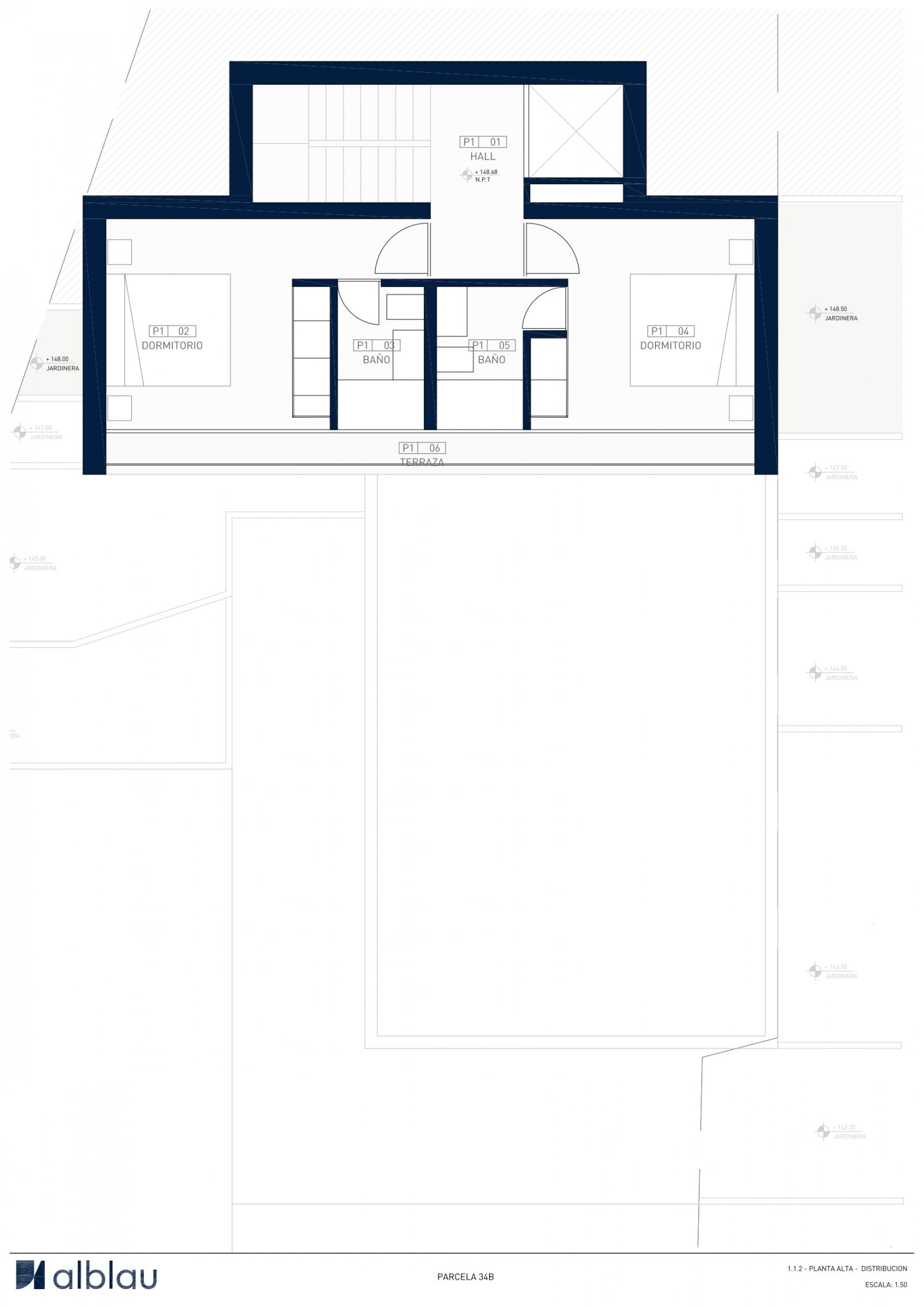
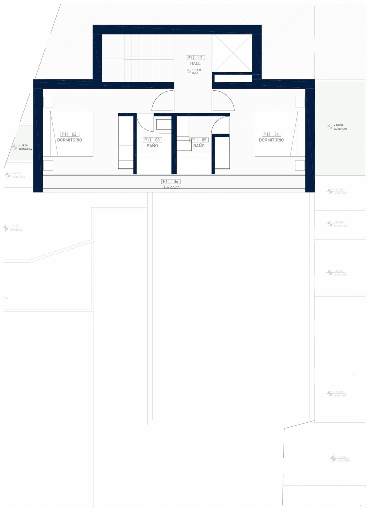
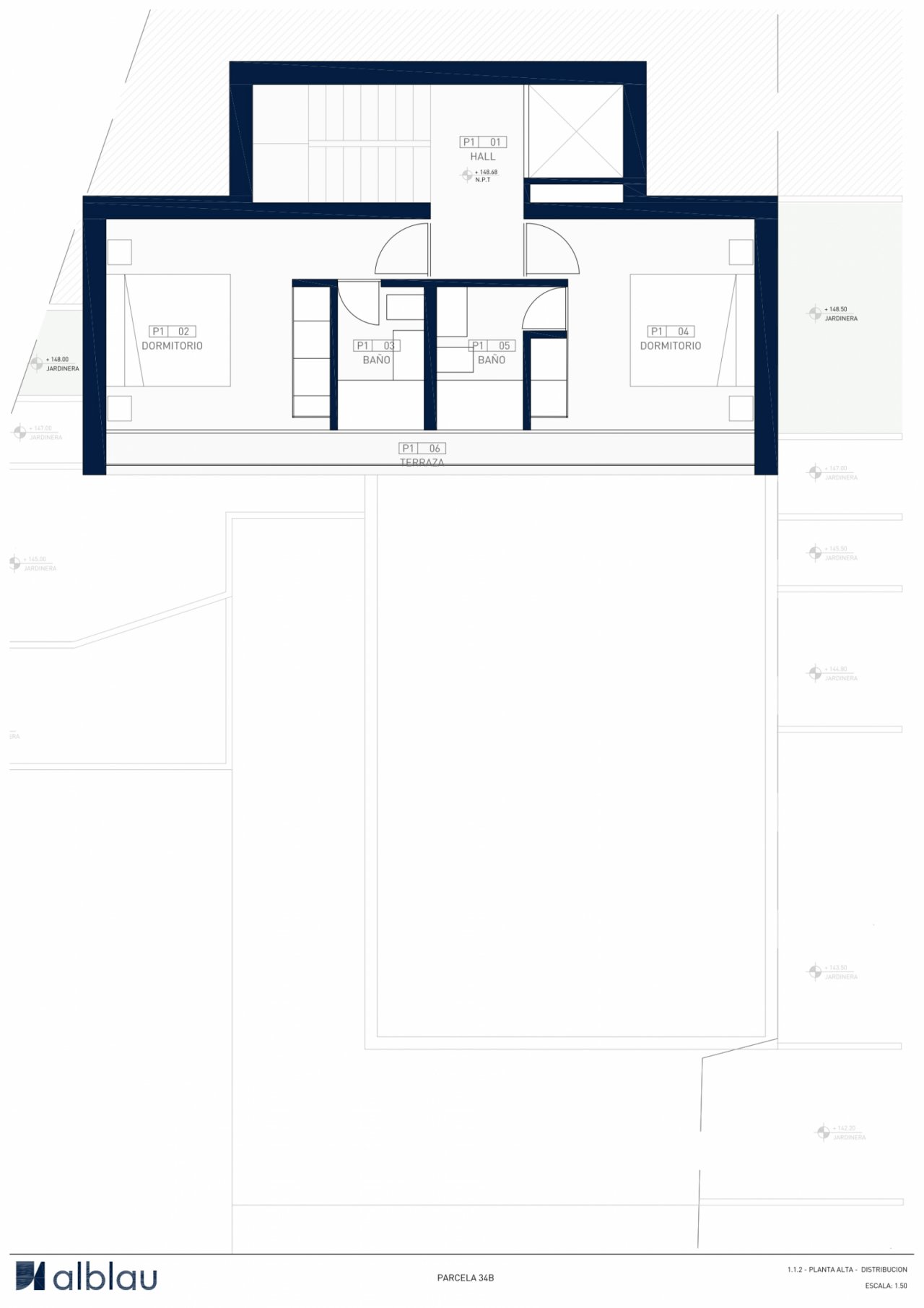
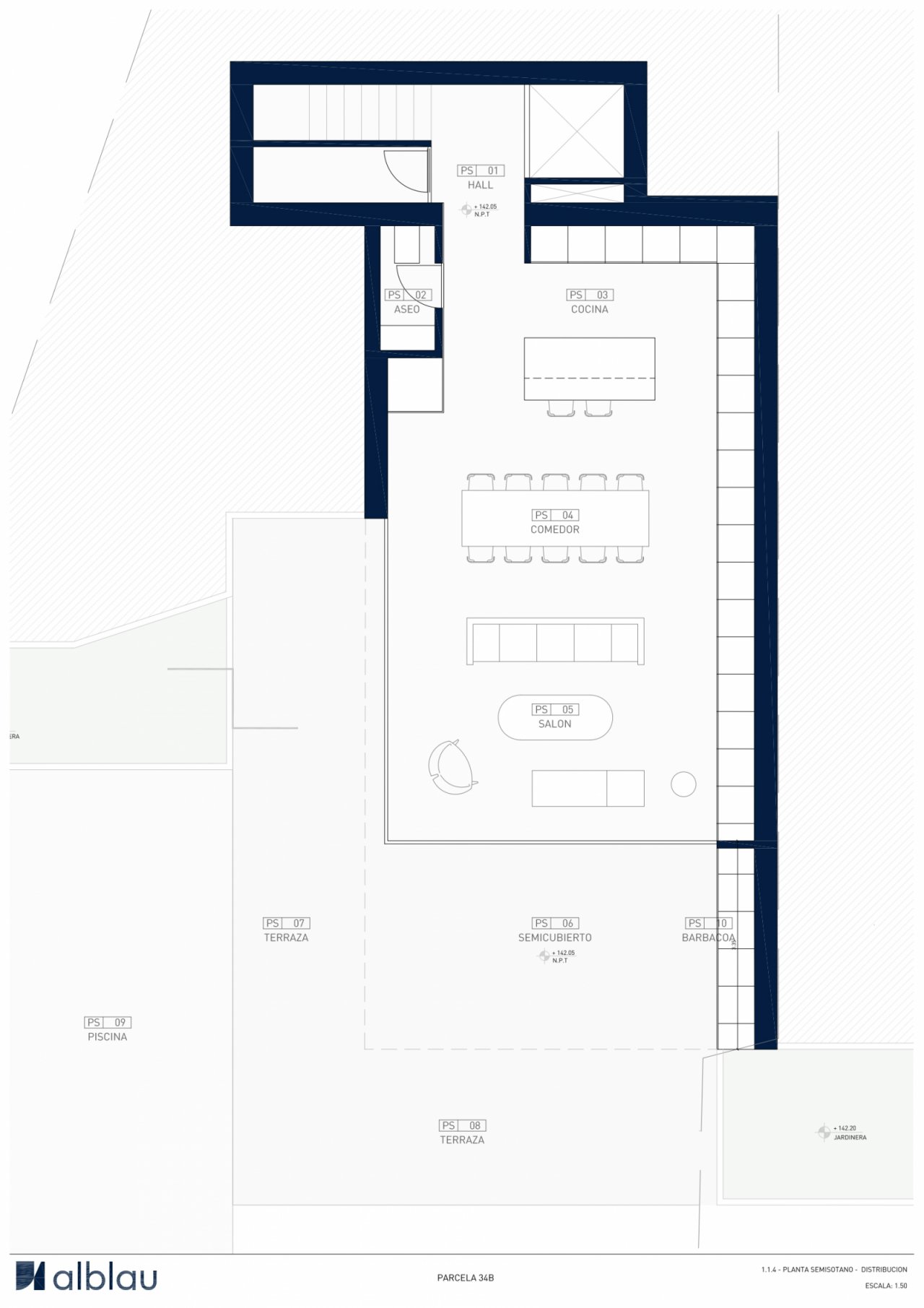
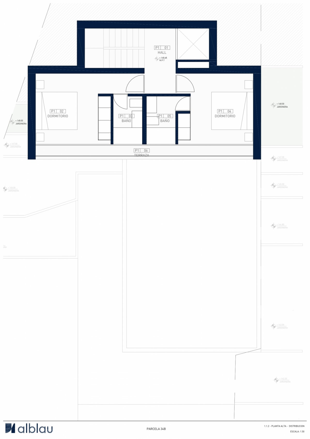
Diese moderne Villa befindet sich auf einem ruhigen 1448 m2 großen Grundstück in Benissa und bietet einen atemberaubenden Blick auf die Küste vom Cap Dor in Moraira bis zum Peñon de Ifach in Calpe. Die Villa befindet sich auf einem steilen Grundstück und besteht aus mehreren Kuben, die sich über 4 Etagen verteilen und sich mit Terrassen und Grünflächen abwechseln. Durch diese Aufteilung haben Sie von jedem Zimmer aus einen wunderschönen Meerblick. Auf Straßenebene gibt es einen Parkplatz für zwei Autos. Über eine Treppe gelangen Sie in die oberste Etage, wo sich eine Halle und die Treppe und der Aufzug zu den anderen Etagen befinden. Es besteht die Möglichkeit, auch einen Aufzug vom Parkplatz zur Halle einzubauen, um maximalen Komfort zu schaffen. Eine Etage tiefer befinden sich zwei Doppelschlafzimmer mit jeweils einem eigenen Bad und Zugang zu einem gemeinsamen Balkon.…
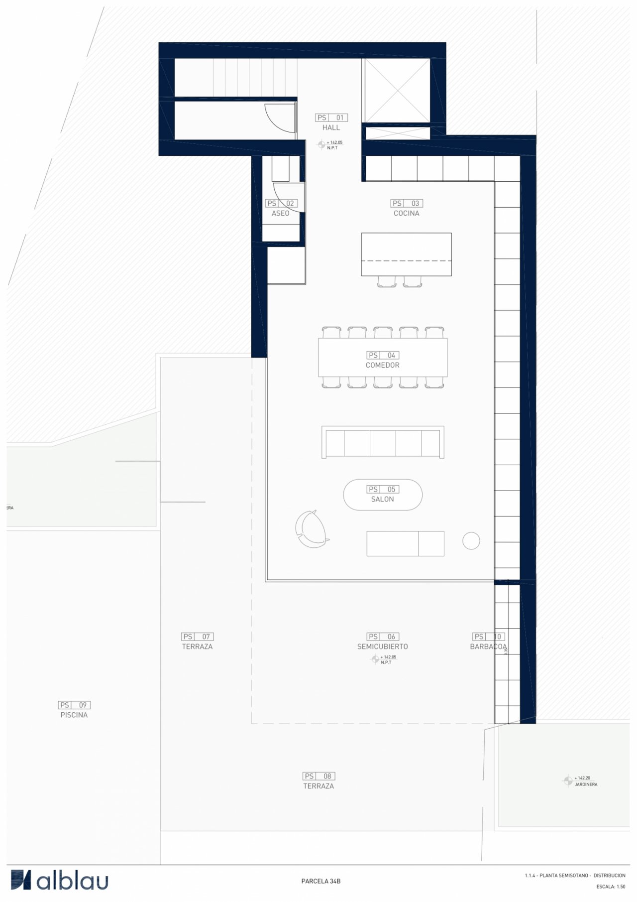
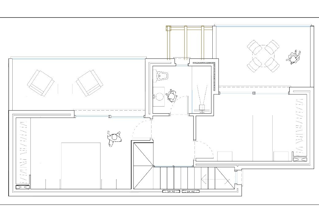
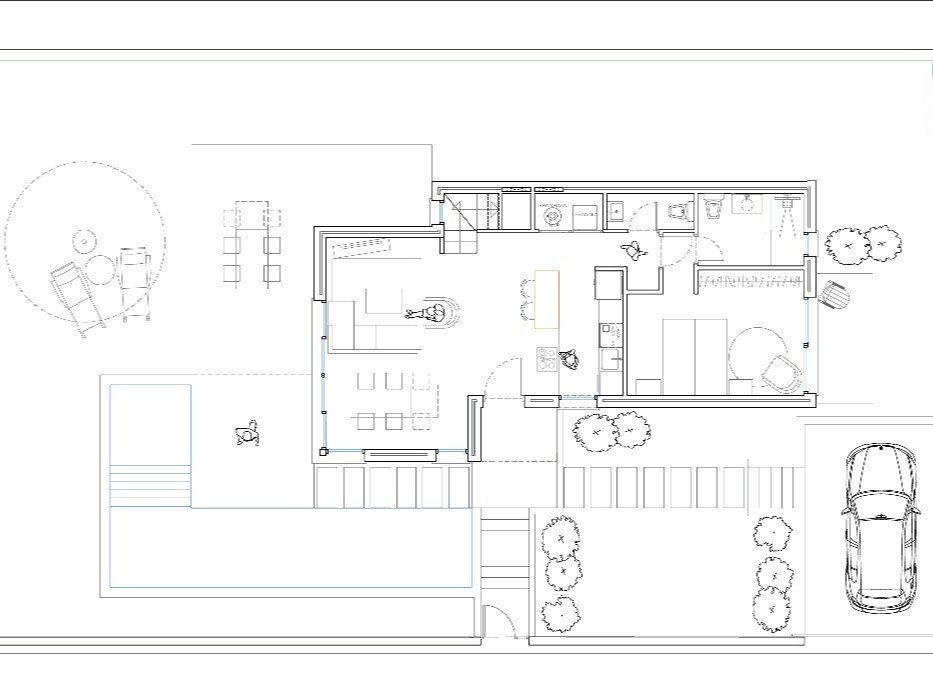
Eine Etage tiefer befinden sich zwei weitere Doppelschlafzimmer mit jeweils eigenem Bad und Zugang zu einer großen gemeinsamen Terrasse. Außerdem gibt es auf dieser Etage eine Waschküche und zwei Grünflächen. Das Erdgeschoss besteht aus einem großen Wohn-Esszimmer mit Kaminofen, einer geräumigen offenen Küche mit einer großen Kochinsel, einem Gäste-WC und einem Abstellraum. Große Schiebefenster ermöglichen vom Wohnzimmer aus den Zugang zur Terrasse am Pool. Es gibt auch einen Grill und der Pool ist von Grünflächen umgeben. Die Villa verfügt über eine Fußbodenheizung und eine Klimaanlage. Die schöne Küste von Benissa ist nur 2 km entfernt und bietet mehrere idyllische Strände, die zum Sonnenbaden, Schnorcheln usw. einladen. Außerdem ist die Villa sehr zentral gelegen, was die umliegenden Dörfer und Städte betrifft. In nur 10 Minuten erreichen Sie die großen Sandstrände von Calpe sowie das historische Zentrum von Benissa. Und in knapp 20 Minuten sind Sie in dem touristischen Hafenort Moraira.
Haustyp: Villa
Etagenanzahl: 4
Anzahl Schlafzimmer: 4
Anzahl Badezimmer: 5
Terrasse: 1
Pool: ja
Baujahr: 2024
Das könnte Ihnen auch gefallen

























































































































