Benitachell:
4341BELL Moderne Villa im Bau zu verkaufen in Cumbre del Sol
Objekt-Nr.: FVH-4341GLOCKE






































































Preis:
1.175.000 €
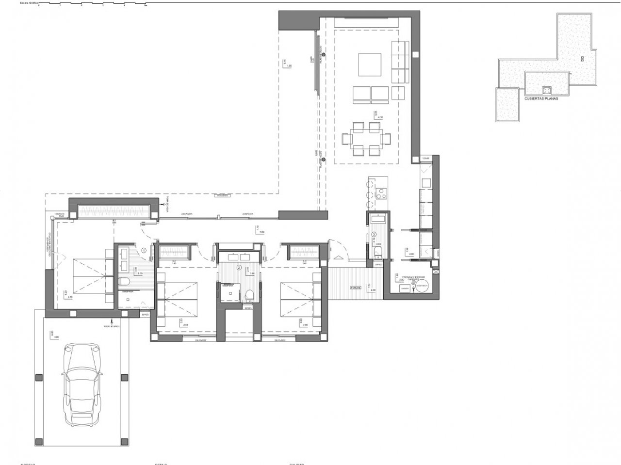
Wohnfläche ca.:
193 m²
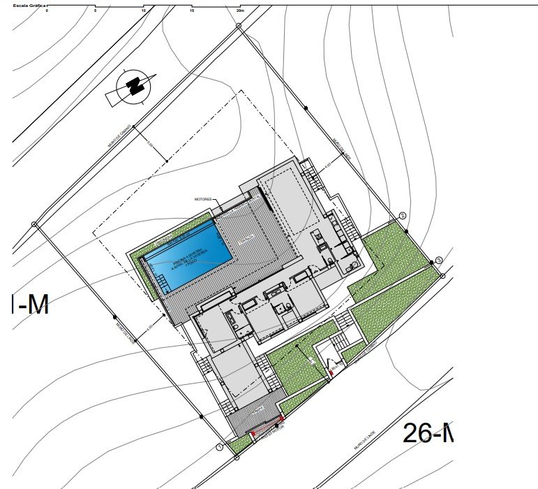
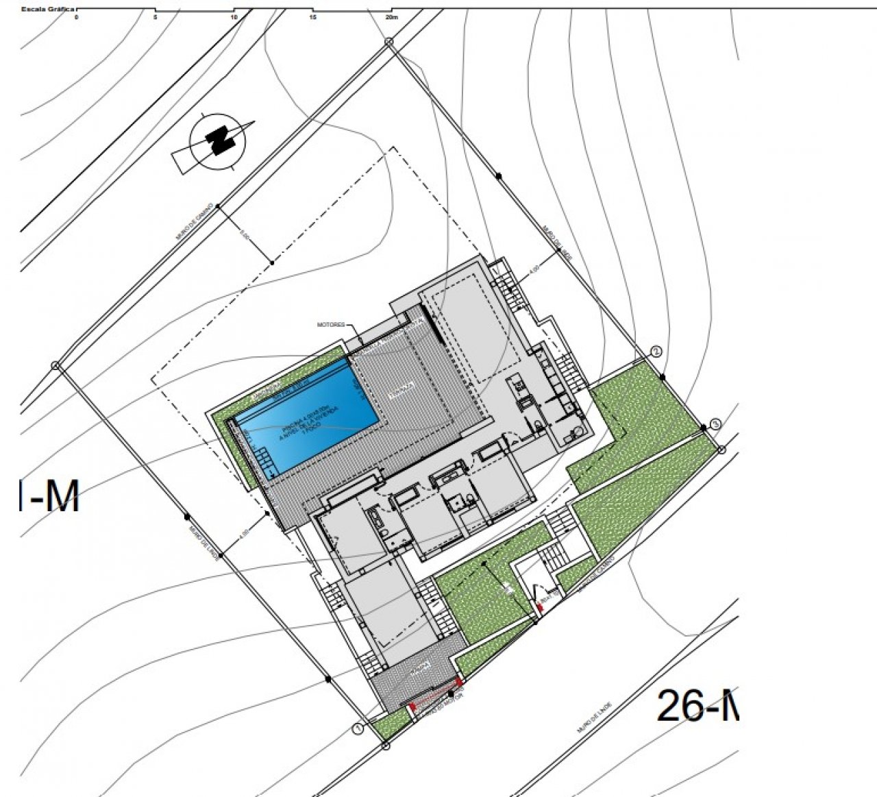
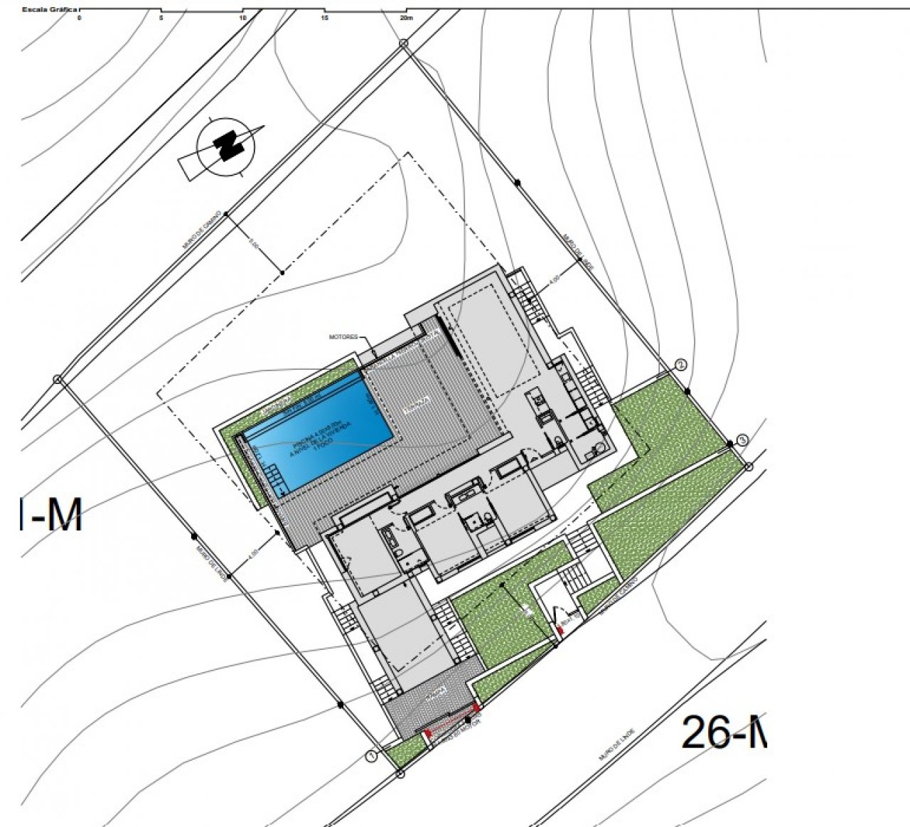
Grundstück ca.:
956 m²
Zimmeranzahl:
4
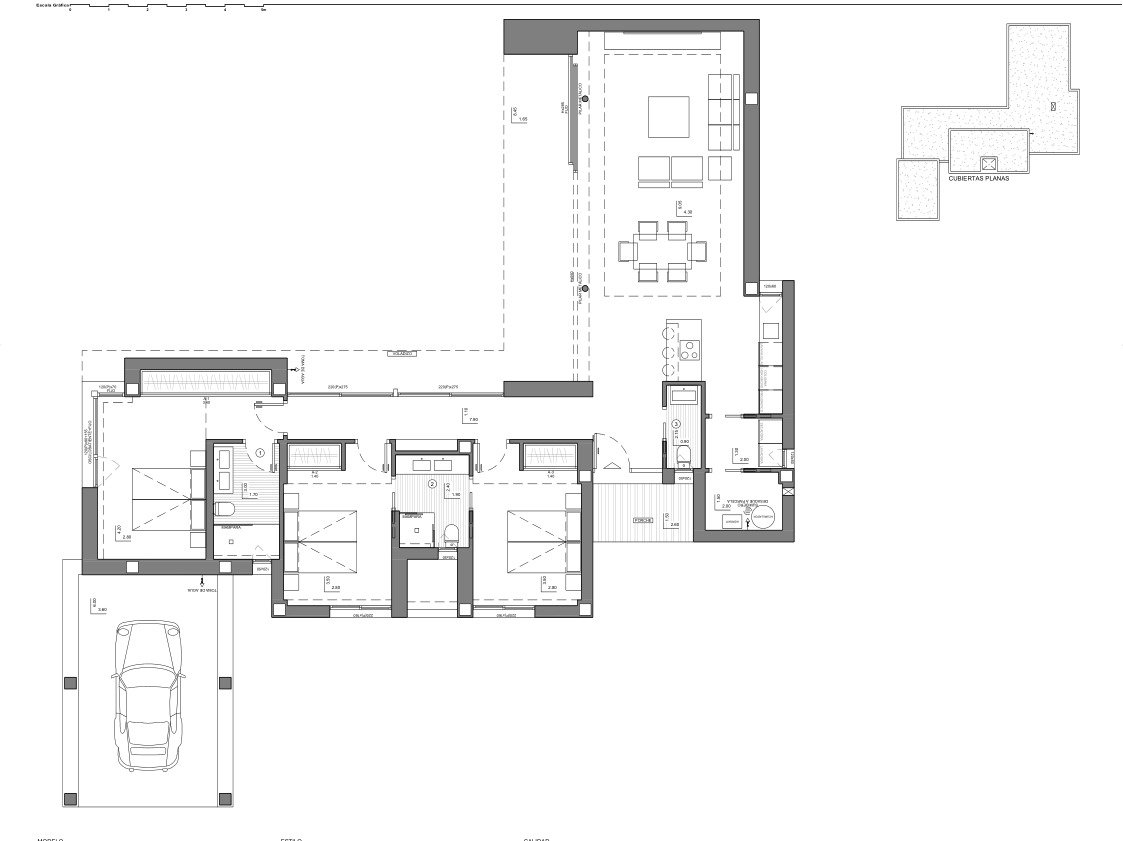
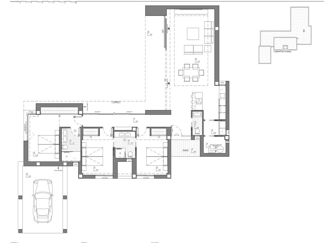
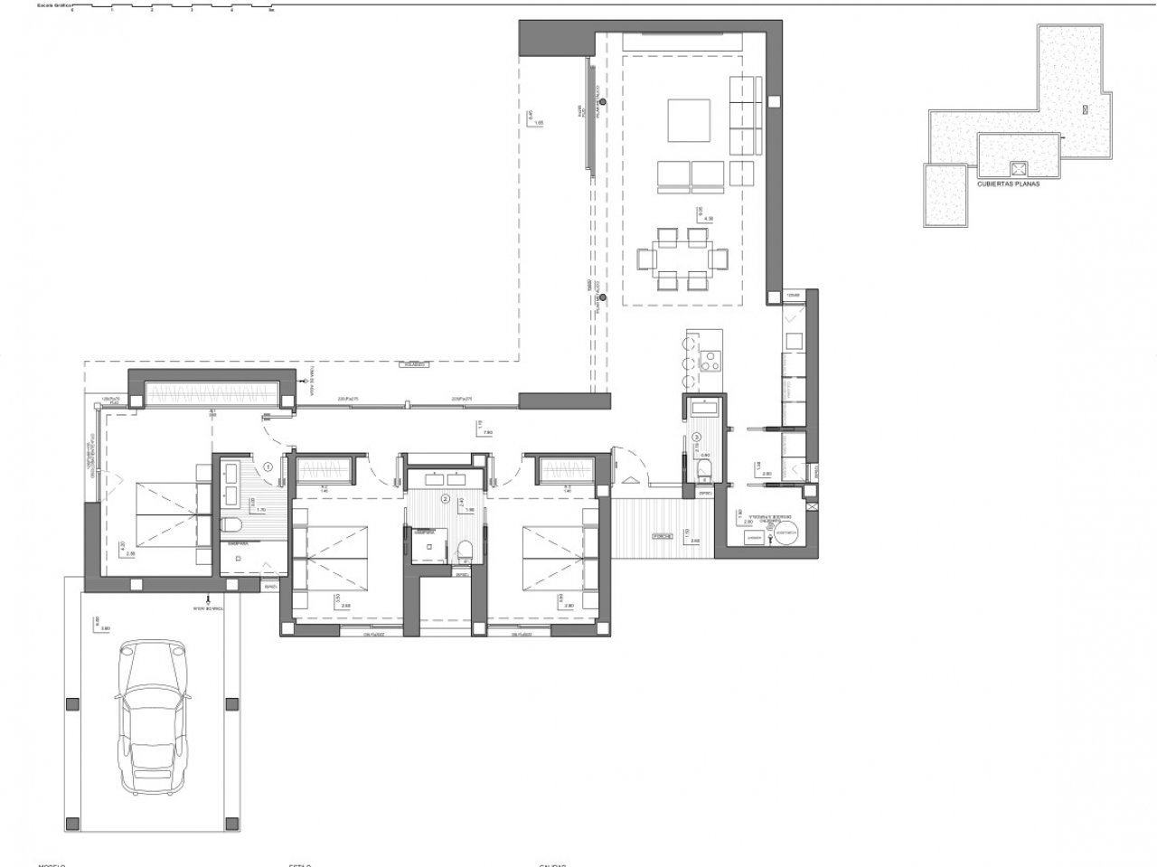
Diese wunderschöne, einzigartige Villa befindet sich in Cumbre del Sol und bietet einen atemberaubenden Blick auf das azurblaue Mittelmeer und die Klippen von Benitachell. Idyllische Strände sind weniger als einen Kilometer entfernt, das touristische Fischerdorf Moraira nur 10 Autominuten und der Sandstrand von Jávea knapp 20 Autominuten. Die Villa ist nach Südwesten ausgerichtet und besteht aus einer Etage, die für höchsten Komfort sorgt. Es gibt ein geräumiges Wohn-Esszimmer, eine offene Küche mit angrenzender Waschküche, ein Doppelschlafzimmer mit eigenem Bad und zwei Doppelschlafzimmer, die sich ein Bad teilen. Vom Wohnzimmer aus haben Sie über große Schiebefenster direkten Zugang zur Terrasse am Infinity-Pool. Die Villa befindet sich derzeit im Bau.
Haustyp: Villa
Etagenanzahl: 1
Anzahl Schlafzimmer: 3
Anzahl Badezimmer: 3
Pool: ja
Baujahr: 2024
Das könnte Ihnen auch gefallen
Benitachell
