Alcalali:
4357ALC Moderne Neubauvilla zum Verkauf in Alcalali
Objekt-Nr.: FVH-4357ALC




























Preis:
495.000 €
Wohnfläche ca.:
239 m²
Grundstück ca.:
300 m²
Zimmeranzahl:
4
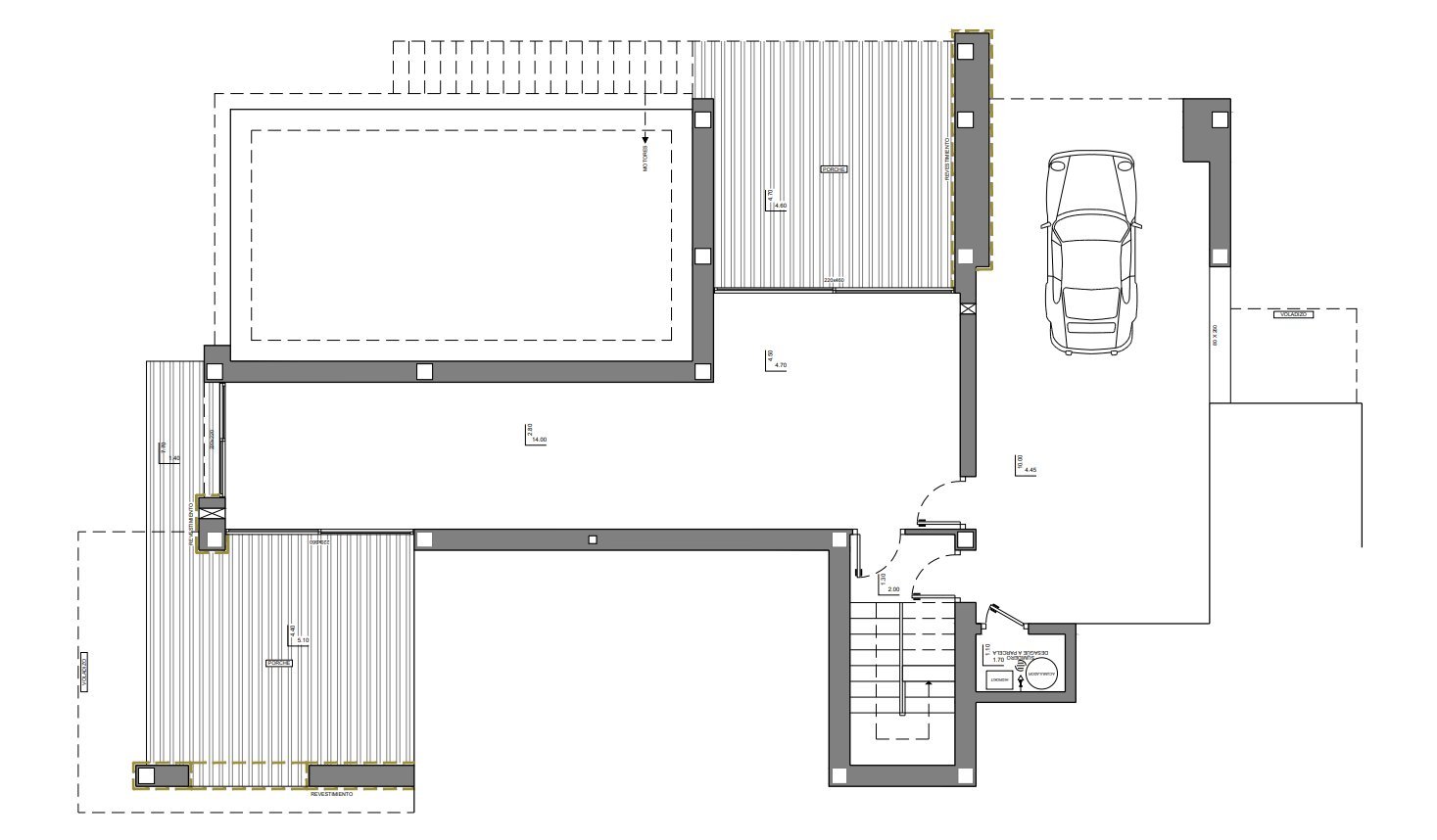
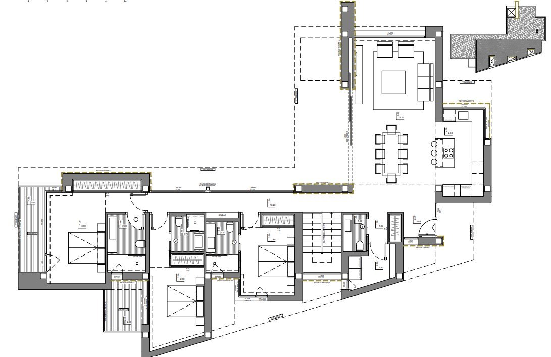
Diese Villa befindet sich in der ruhigen Gegend von La Solana Gardens, nur wenige Gehminuten von dem gemütlichen Dorf Alcalalí entfernt. Bitte beachten Sie, die ersten beiden Fotos sind von einer Villa bereits verkauft, sondern zeigen das Endergebnis. Die Villa befindet sich derzeit im Rohbau, der gemeinsam mit dem Käufer fertiggestellt wird, so dass sie nach dessen Vorstellungen gestaltet werden kann. Das Projekt besteht aus zwei Etagen mit einer weiteren Garage im Untergeschoss. Dieses Projekt kann nach den Wünschen des Kunden gestaltet werden. Der erste Stock besteht aus einem geräumigen Wohn-Esszimmer mit einer voll ausgestatteten offenen Küche. Angrenzend an die Küche befinden sich ein Hauswirtschaftsraum, ein Badezimmer und ein Abstellraum. Im Obergeschoss befindet sich das Hauptschlafzimmer mit eigenem Bad, einem Ankleidezimmer und einem Balkon mit Blick auf die wunderschönen Weinberge von Alcalalí.…
Außerdem gibt es zwei weitere Doppelschlafzimmer mit einem gemeinsamen Badezimmer. Im Untergeschoss befindet sich eine Garage mit einem Technikraum. Die Garage ist groß genug für einen möglichen Fitnessraum und zwei Autos, die von der Straße aus leicht zugänglich sind. An der Vorderseite der Villa wurde eine schöne Veranda gebaut, um den Außenbereich auch an den heißesten Tagen genießen zu können. Wenn die Veranda nicht genug Abkühlung bietet, können Sie jederzeit ein Bad im privaten Pool nehmen, der direkt mit der Terrasse verbunden ist. Diese neu gebaute Villa wurde speziell entworfen, um ein Maximum an Platz, Licht und Komfort zu bieten. Die moderne Architektur in Kombination mit der schönen Lage in einem authentischen spanischen Dorf macht diese Villa zu einem einzigartigen Projekt, das ganz nach Ihrem Geschmack gestaltet werden kann. Alcalalí ist ein kleines, ruhiges Dorf im Jalontal. Dieses schöne grüne Tal ist ein Gebiet mit Weinbergen, Oliven-, Zitrus- und Mandelbäumen und liegt zwischen mehreren beeindruckenden Bergketten. Es ist sehr zentral gelegen und in nur 25 Minuten erreichen Sie die Strände von Calpe im Süden und Els Poblets im Norden. Die Küstenstadt Denia, der beliebte Badeort Jávea und das touristische Fischerdorf Moraira sind ebenfalls nur eine halbe Stunde mit dem Auto entfernt.
Haustyp: Villa
Etagenanzahl: 2
Anzahl Schlafzimmer: 3
Anzahl Badezimmer: 2
Pool: ja
Klimaanlage: ja
Anzahl der Parkflächen: 1 x Garage
Baujahr: 2024
Das könnte Ihnen auch gefallen































