Pego:
8152PEG Villa mit Meerblick zum Verkauf in Monte Pego
Objekt-Nr.: FVH-8152PEG












































































































































Preis:
765.000 €
Wohnfläche ca.:
256 m²
Grundstück ca.:
1.026 m²
Zimmeranzahl:
6
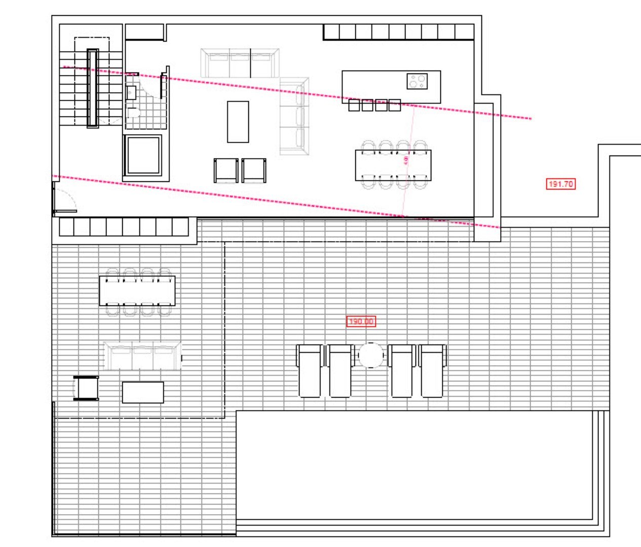
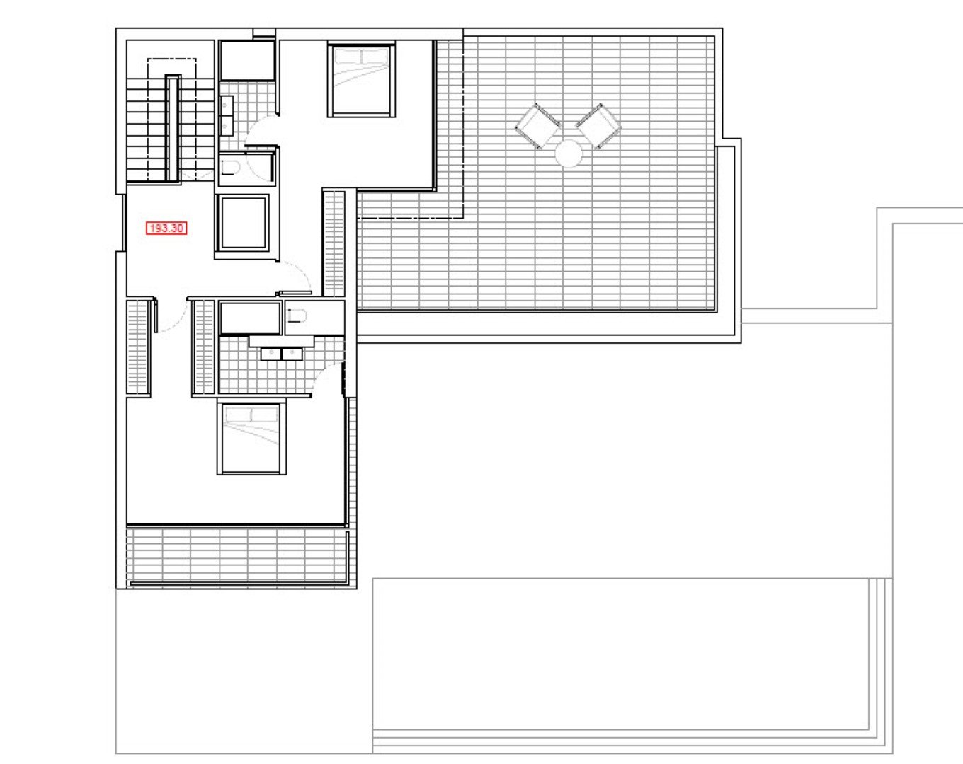
Diese wunderschöne Villa bietet einen atemberaubenden Blick auf das Mittelmeer und die Berge. Verteilt auf drei Etagen, das Erdgeschoss, auf Straßenniveau, beherbergt den Hauptwohnbereich, der ein geräumiges Wohnzimmer, eine voll ausgestattete Küche mit Insel, 3 Schlafzimmer und ein komplettes Bad en suite hat. Über eine Außentreppe gelangt man in das Obergeschoss, wo sich ein geräumiges Schlafzimmer mit eigenem Bad und eine Terrasse mit Panoramablick befinden, was diesen Raum zu einem idealen Ort für Unterhaltung, Entspannung oder auch als Arbeitsbereich macht.…
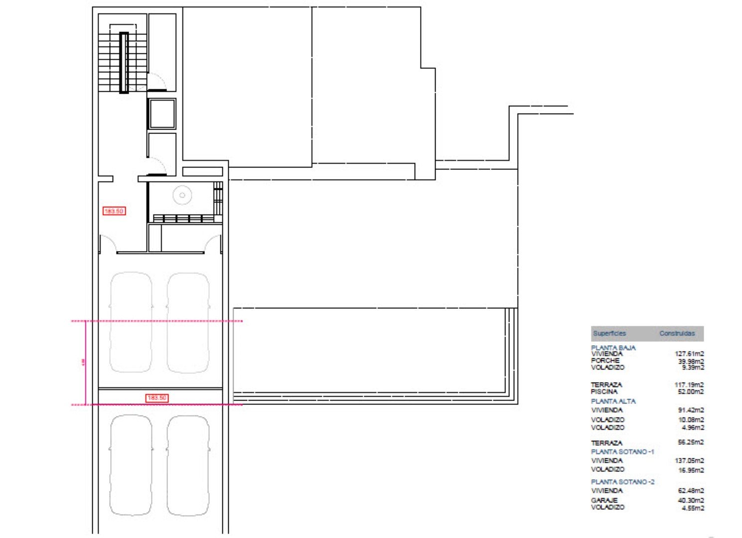
Über dieselbe Treppe gelangt man auch in die untere Etage, wo sich der Swimmingpool und der Chill-out-Bereich befinden. Hier gibt es eine Waschküche neben einem Schlafzimmer, das derzeit leer steht und zahlreiche Möglichkeiten als Fitnessraum, Weinkeller, Lagerraum oder was auch immer Sie benötigen, bietet.
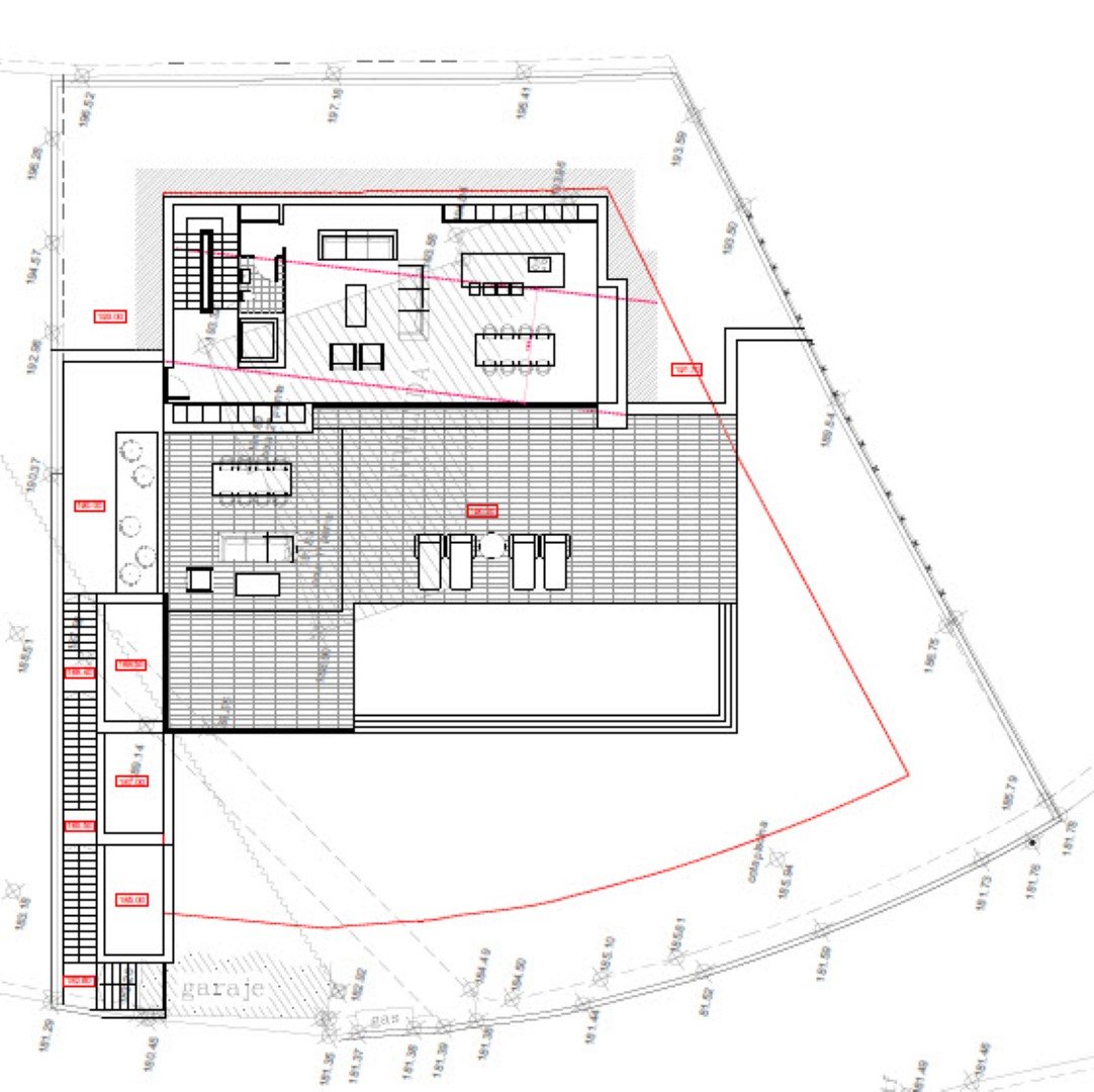
Angrenzend an diesen Raum befindet sich eine separate Unterkunft mit zwei geräumigen Schlafzimmern, einem Badezimmer mit Dusche, einem Wohn-/Esszimmer und einer voll ausgestatteten Küche. Im Außenbereich gibt es mehrere nach Osten ausgerichtete Terrassen, die ideal sind, um schöne Sonnenaufgänge zu genießen, sowie nach Westen ausgerichtete Terrassen, die sonnige und schattige Bereiche bieten. Zur Immobilie gehören eine Garage, ein Carport und ein Stellplatz für bis zu zwei Fahrzeuge, je nach Größe.
Auf dem Grundstück befindet sich außerdem ein separates Studio-Apartment mit Küche und Bad sowie ein Abstellraum. Nahezu jeder Raum der Immobilie bietet einen spektakulären Ausblick, der, wie auf den beigefügten Bildern zu sehen ist, wirklich atemberaubend ist.
Diese Villa befindet sich in der prestigeträchtigen Urbanisation Monte Pego und bietet ruhiges und exklusives Wohnen in einer unvergleichlichen natürlichen Umgebung. Umgeben von natürlicher Schönheit und mit Zugang zu ausgezeichneten Annehmlichkeiten wie einem Social Club, Tennis- und Paddle-Tennisplätzen sowie nur wenige Autominuten von unberührten Stränden und malerischen Küstendörfern entfernt, ist Monte Pego der perfekte Ort für diejenigen, die Luxus, Komfort und Naturverbundenheit miteinander verbinden möchten. Diese Immobilie bietet eine einmalige Gelegenheit, das Leben an der Costa Blanca in vollen Zügen zu genießen.
Haustyp: Villa
Etagenanzahl: 3
Anzahl Schlafzimmer: 5
Anzahl Badezimmer: 4
Terrasse: 1
Pool: ja
Klimaanlage: ja
Alarmanlage: ja
Baujahr: 2004
Das könnte Ihnen auch gefallen




































































































