Moraira:
C4XY8166MOR Projekt zum Verkauf einer modernen Villa 1 km von El Portet und dem Zentrum von Moraira, Teulada.
Objekt-Nr.: FVH-C4XY8166MOR
































Preis:
2.264.000 €
Wohnfläche ca.:
340 m²
Grundstück ca.:
1.070 m²
Zimmeranzahl:
5
Entdecken Sie Luxus und Eleganz in dieser atemberaubenden modernen Villa in Moraira.
Mit einem Layout über drei Etagen bietet dieses luxuriöse Anwesen einen außergewöhnlichen Raum zum Leben und genießen. Mit vier Schlafzimmern, vier Bädern und zwei Toiletten wurde jedes Detail sorgfältig für Komfort und Stil entworfen.
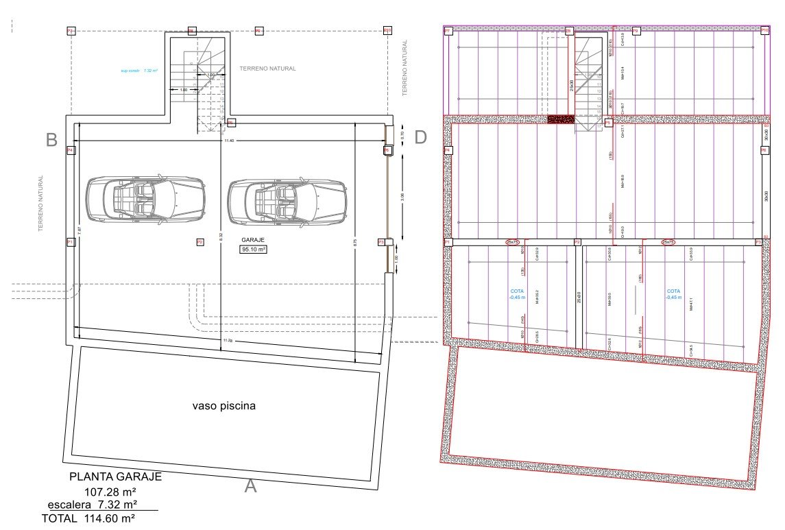
Das Souterrain ist ein wahres Unterhaltungsparadies mit einer Garage, die mit einem Mehrzweckraum verbunden ist, ideal für Familienfeiern oder Partys mit Freunden. Außerdem finden Sie hier einen Kinoraum, in dem Sie Ihre Lieblingsfilme genießen können, einen voll ausgestatteten Fitnessraum und einen großen Waschraum.…
Wenn Sie das Erdgeschoss betreten, werden Sie von einer eleganten Halle begrüßt, die zu einem geräumigen Flur führt. Hier finden Sie zwei Schlafzimmer, jedes mit eigenem Bad und Ankleidezimmer, perfekt, um Ihren Gästen Privatsphäre zu bieten. Der beeindruckende offene Wohnbereich umfasst eine offene Küche, die zum hellen Wohn-Esszimmer hin offen ist, mit einer separaten Speisekammer. Von hier aus haben Sie Zugang zu einer großen Terrasse mit Veranda, wo Sie den Infinity-Pool und den üppigen Privatgarten genießen können.
Im ersten Stock befinden sich zwei weitere Schlafzimmer, jeweils mit eigenem Bad und Zugang zu einer großen Terrasse mit Panoramablick. Darüber hinaus finden Sie einen zusätzlichen Raum, der als Büro oder Wohnzimmer genutzt werden kann.
In einer privilegierten Lage in Küstennähe, nur 1,2 km vom malerischen Strand von Portet und 1 km von der Einkaufszone und dem Zentrum von Moraira entfernt, bietet diese Villa das Beste des mediterranen Lebensstils. Verpassen Sie nicht die Gelegenheit, in diesem Küstenparadies zu leben, kontaktieren Sie uns noch heute für weitere Informationen!
Haustyp: Villa
Etagenanzahl: 3
Anzahl Schlafzimmer: 4
Anzahl Badezimmer: 6
Terrasse: 1
Pool: ja
Klimaanlage: ja
Anzahl der Parkflächen: 1 x Garage
Baujahr: 2024
Das könnte Ihnen auch gefallen



















































































































