Gata de Gorgos:
C3XY4109JAV- Grundstück zu verkaufen in Gata de Gorgos
Objekt-Nr.: FVH-C3XY4109JAV






















Grundstück ca.:
1.000 m²
Preis:
259.999 €
Objektbeschreibung
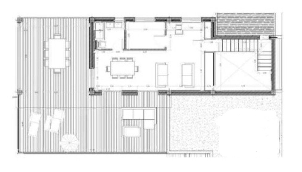
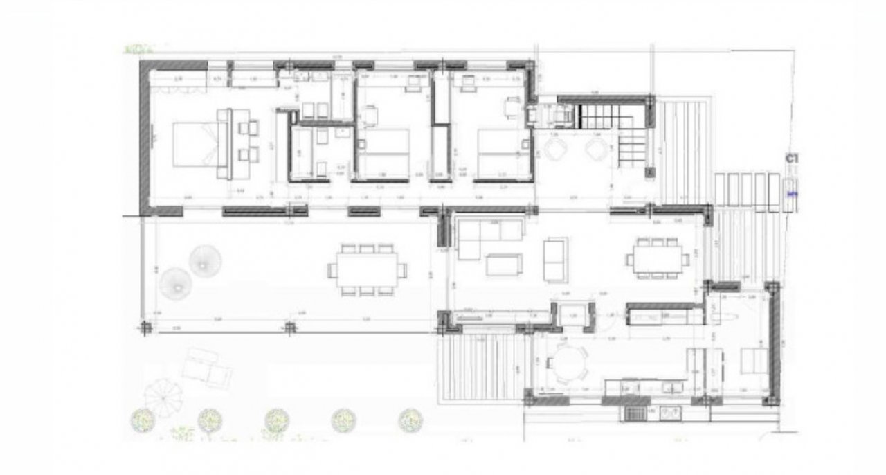
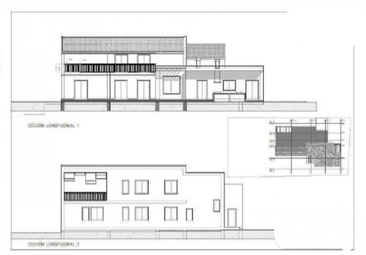
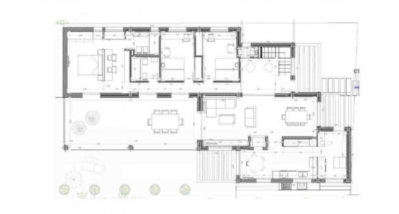
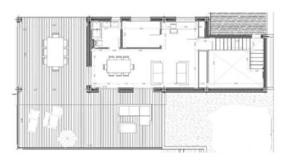
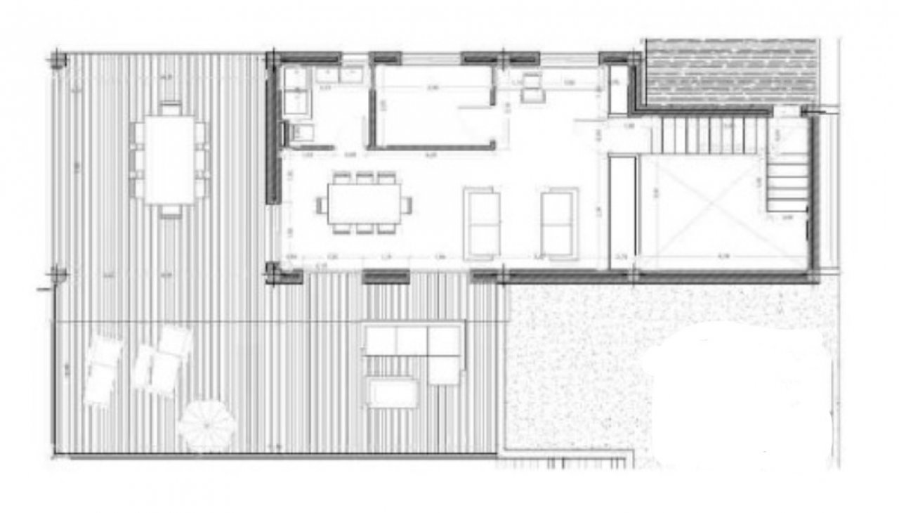
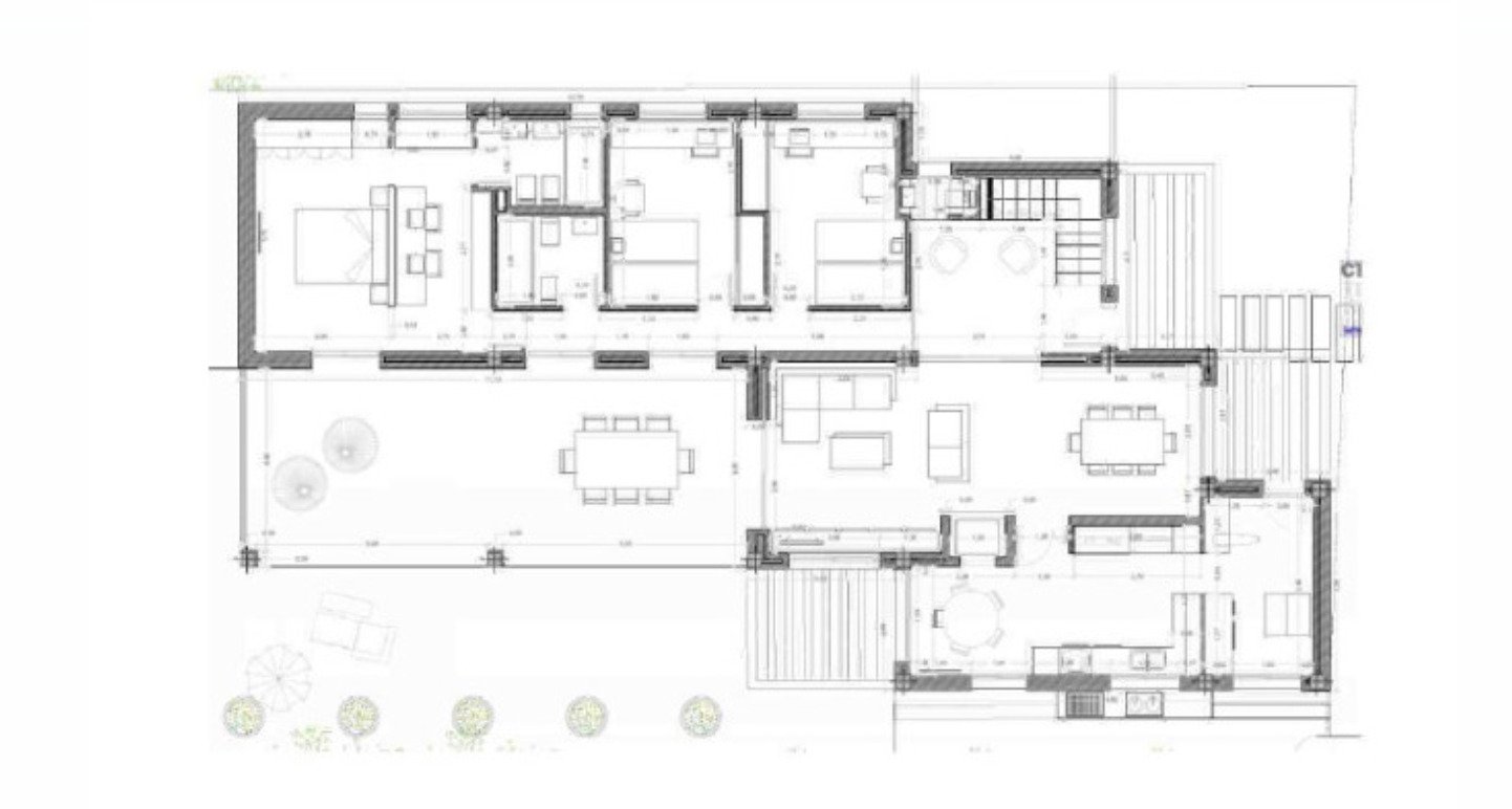
Dieses Grundstück befindet sich in der Nähe des Zentrums des ruhigen Dorfes Gata de Gorgos. Es bietet einen schönen Blick auf den Montgó und die grünen Hügel des Naturschutzgebietes, das sich direkt hinter dem Dorf befindet und wo Sie zahlreiche Wanderwege finden. Es ist 1000m2 groß. Das Grundstück umfasst ein Projekt für eine moderne Villa mit 2 Etagen und einem Keller. Es besteht auch die Möglichkeit, das Grundstück ohne das Projekt zu kaufen.
Weitere Informationen
Nutzungsart: Wohnen
Das könnte Ihnen auch gefallen
Objekt weiterempfehlen

































