Moraira:
C3XY6376MOR Schöne spanische Villa mit Panoramablick auf das Meer zum Verkauf in Moraira
Objekt-Nr.: FVH-C3XY6376MOR








































Preis:
1.450.000 €
Wohnfläche ca.:
370 m²
Grundstück ca.:
785 m²
Zimmeranzahl:
5
In der begehrten Gegend von Benimeit in Moraira gelegen, bietet diese schöne Villa im spanischen Stil einen spektakulären Blick auf die Landschaft und das Mittelmeer. Verteilt auf zwei Etagen, kombiniert das Anwesen Geräumigkeit, Komfort und Privatsphäre, perfekt sowohl als ständigen Wohnsitz und für Traumreisen.
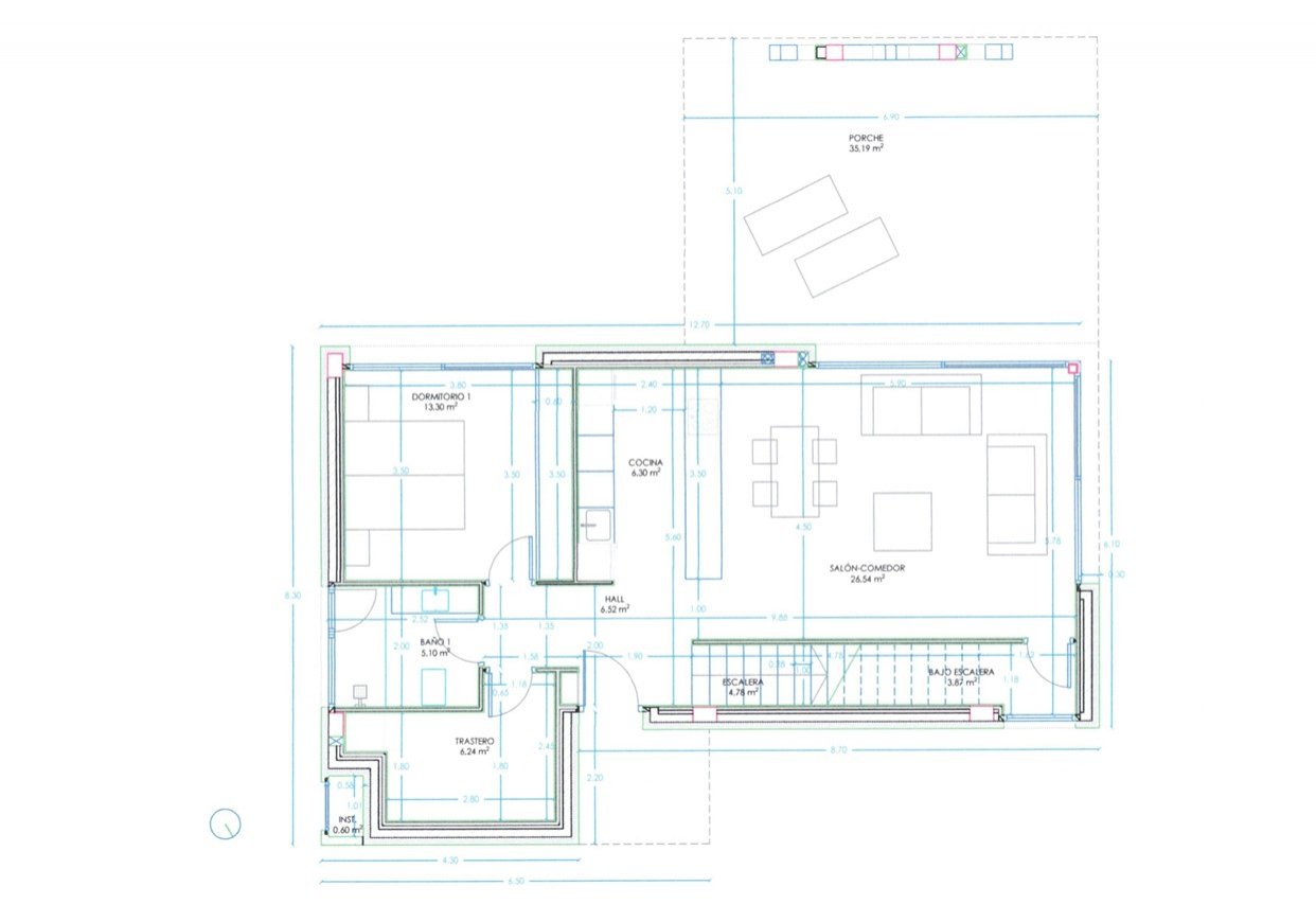
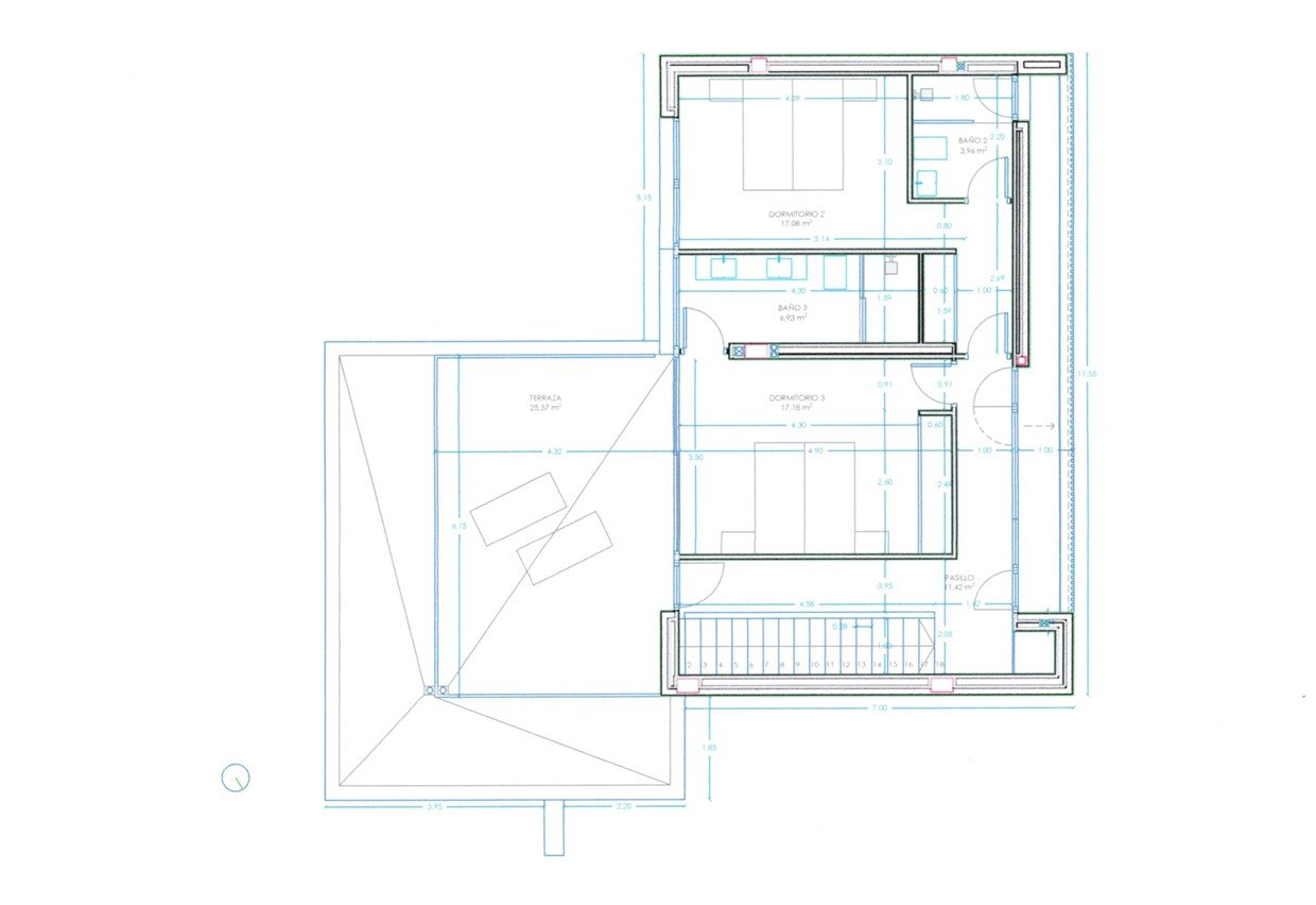
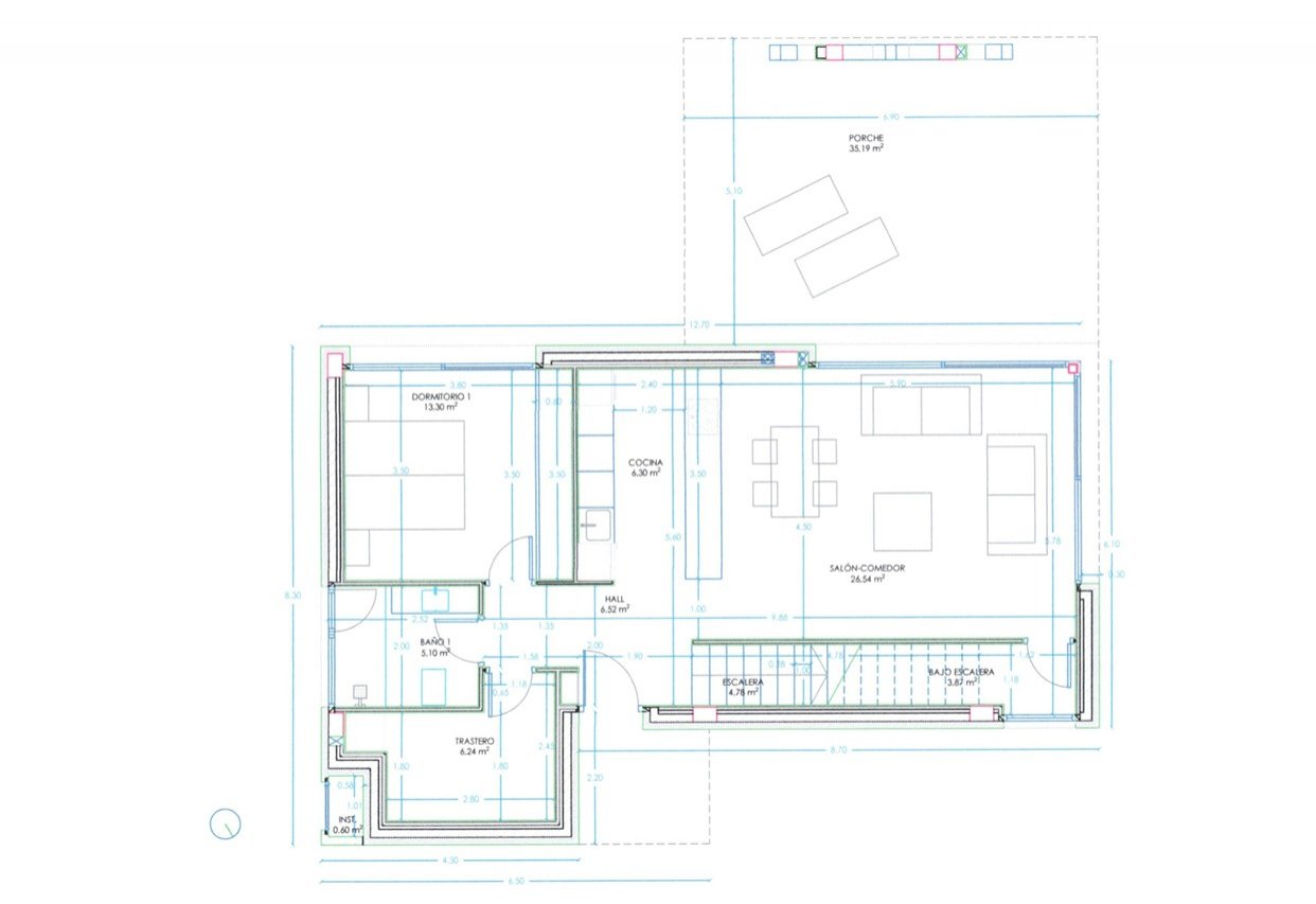
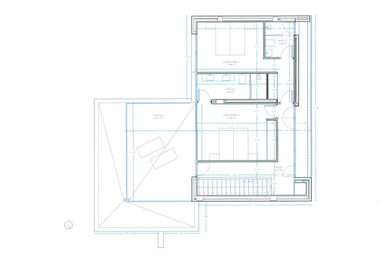
Auf der Hauptebene befinden sich ein helles Wohnzimmer mit einem großzügigen Esszimmer, eine voll ausgestattete Küche, zwei große Doppelschlafzimmer, ein elegantes Bad und die Master-Suite, die über ein Ankleidezimmer, ein eigenes Bad und einen direkten Zugang zu einer sonnigen Terrasse mit herrlichem Blick verfügt.
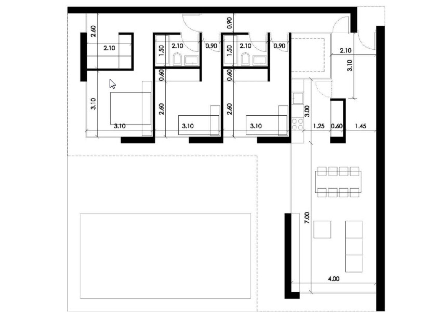
Auf der unteren Ebene befindet sich eine geräumige Garage mit Abstellraum sowie eine gemütliche und völlig unabhängige Gästewohnung. Diese verfügt über ein Wohnzimmer, eine Küche, ein Schlafzimmer mit Doppelbett und ein eigenes Bad, ideal, um Familie oder Freunde in aller Ruhe zu empfangen.
Die Villa ist von verschiedenen Terrassen und Außenwohnbereichen umgeben, die zum Entspannen und Genießen des herrlichen Meerblicks und der goldenen Sonnenuntergänge der Costa Blanca einladen.
- Doppelverglasung
Haustyp: Villa
Etagenanzahl: 2
Anzahl Schlafzimmer: 4
Anzahl Badezimmer: 3
Pool: ja
Anzahl der Parkflächen: 1 x Garage
Baujahr: 2004
Das könnte Ihnen auch gefallen






























































































































