Pedreguer:
3311PED Neugebaute Villa in Pedreguer zu verkaufen
Objekt-Nr.: FVH-3311PED








Preis:
635.000 €
Wohnfläche ca.:
130 m²
Grundstück ca.:
900 m²
Zimmeranzahl:
4
Objektbeschreibung
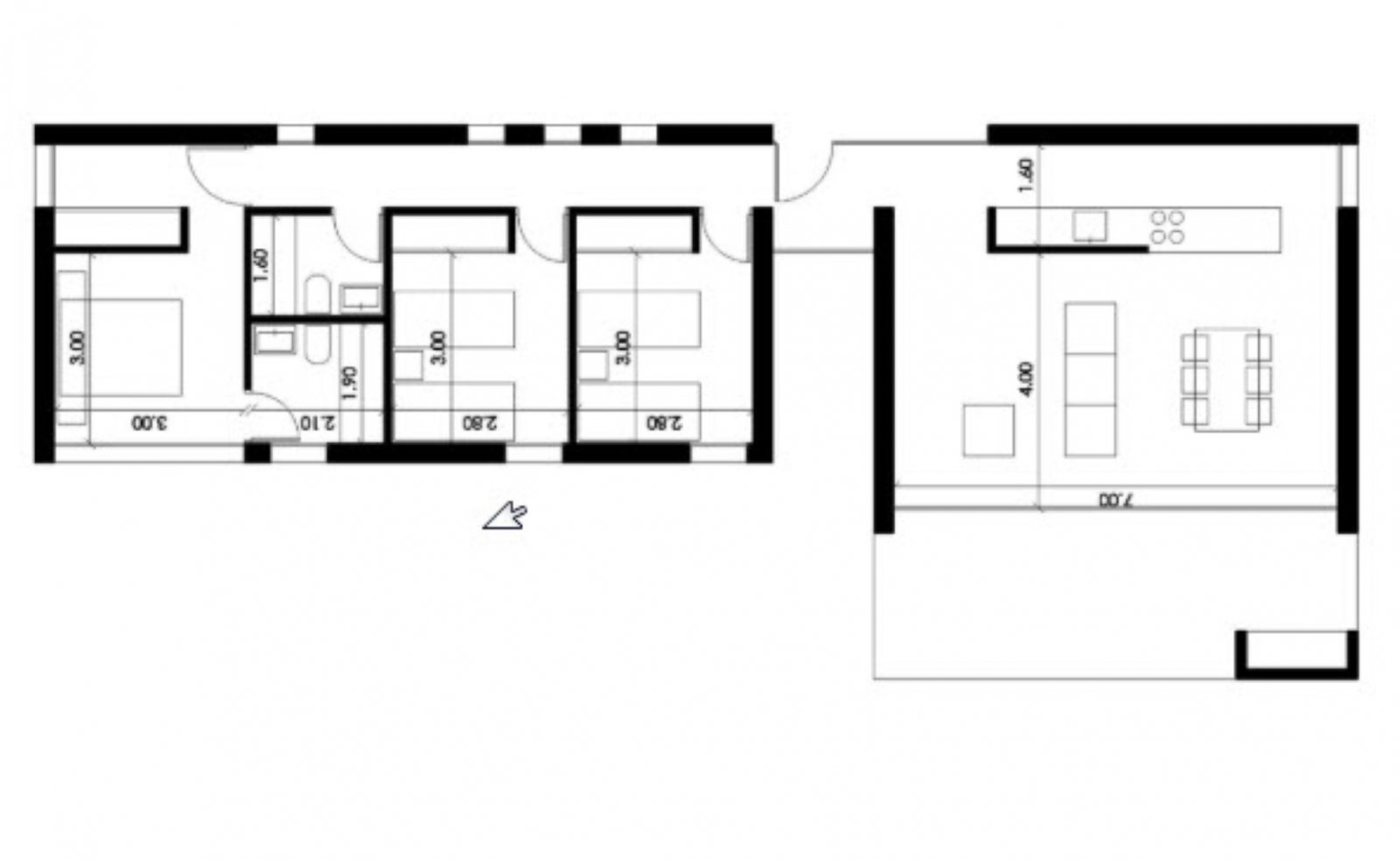
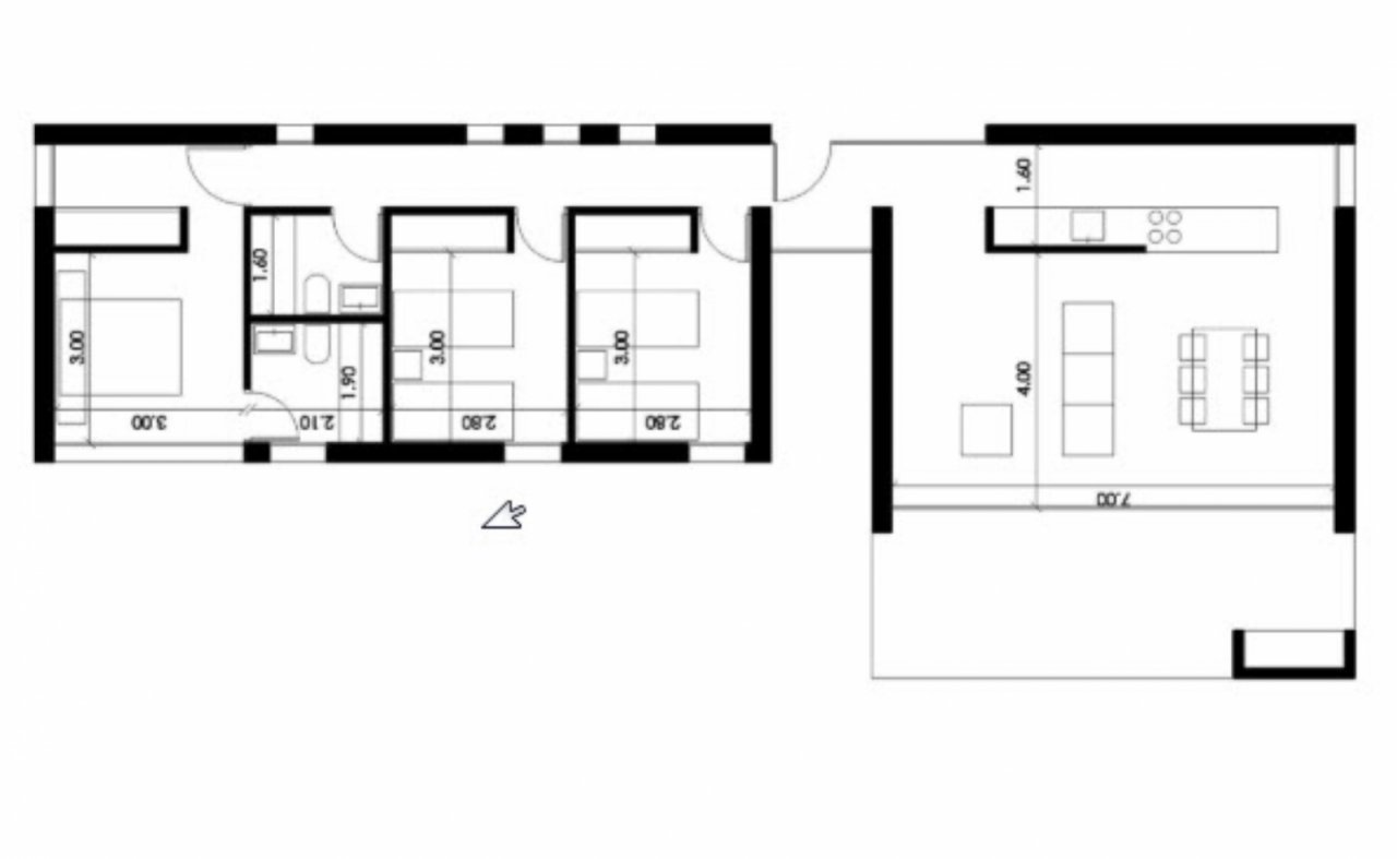
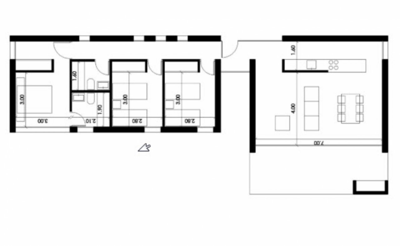
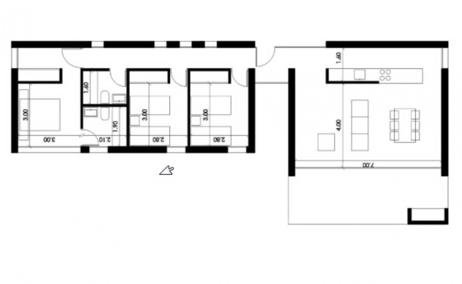
Moderne Neubauvilla zum Verkauf in Pedreguer, gelegen in der ruhigen Urbanisation Monte Solana mit Panoramablick. Diese Villa kann auf verschiedenen Grundstücken gebaut werden, darunter eines mit Meerblick. Das Projekt kann nach Ihren Wünschen gestaltet werden und kann innerhalb von 14 Monaten fertiggestellt werden. Es gibt ein Wohn-/Esszimmer, von dem aus Sie die überdachte Terrasse betreten können, eine offene Küche, ein Hauptschlafzimmer mit Ankleidezimmer und Bad en-suite, 2 Doppelschlafzimmer und ein Familienbad.
Ausstattung
- Doppelverglasung
Weitere Informationen
Haustyp: Villa
Etagenanzahl: 1
Anzahl Schlafzimmer: 3
Anzahl Badezimmer: 2
Pool: ja
Das könnte Ihnen auch gefallen
Objekt weiterempfehlen
