Javea:
2091JAV Moderne Villa mit 4 Schlafzimmern und Meerblick in Javea
Objekt-Nr.: FVH-2091JAV




























Preis:
1.575.000 €
Wohnfläche ca.:
230 m²
Grundstück ca.:
1.500 m²
Zimmeranzahl:
5
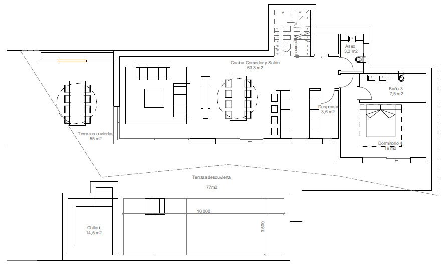
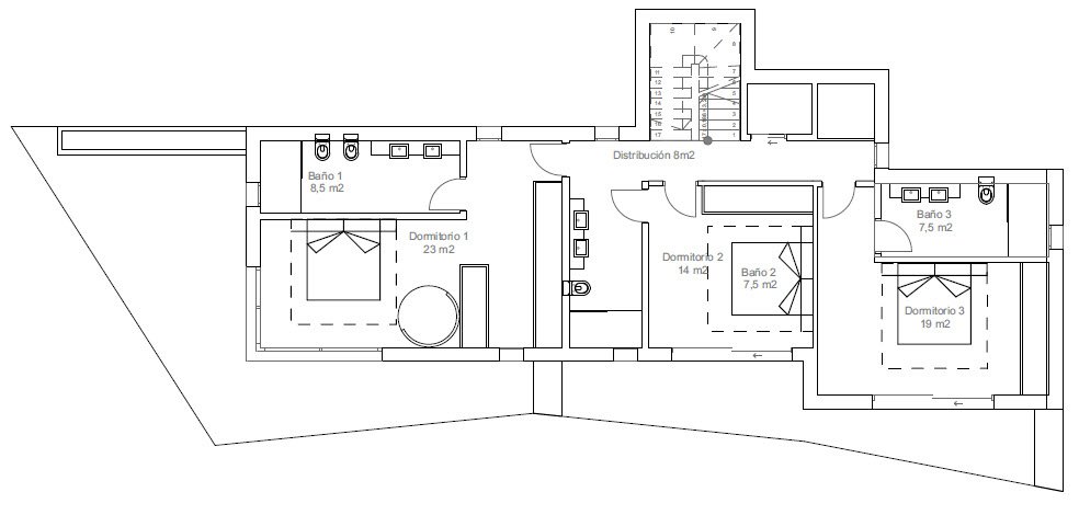
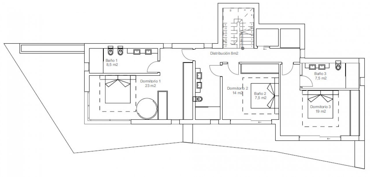
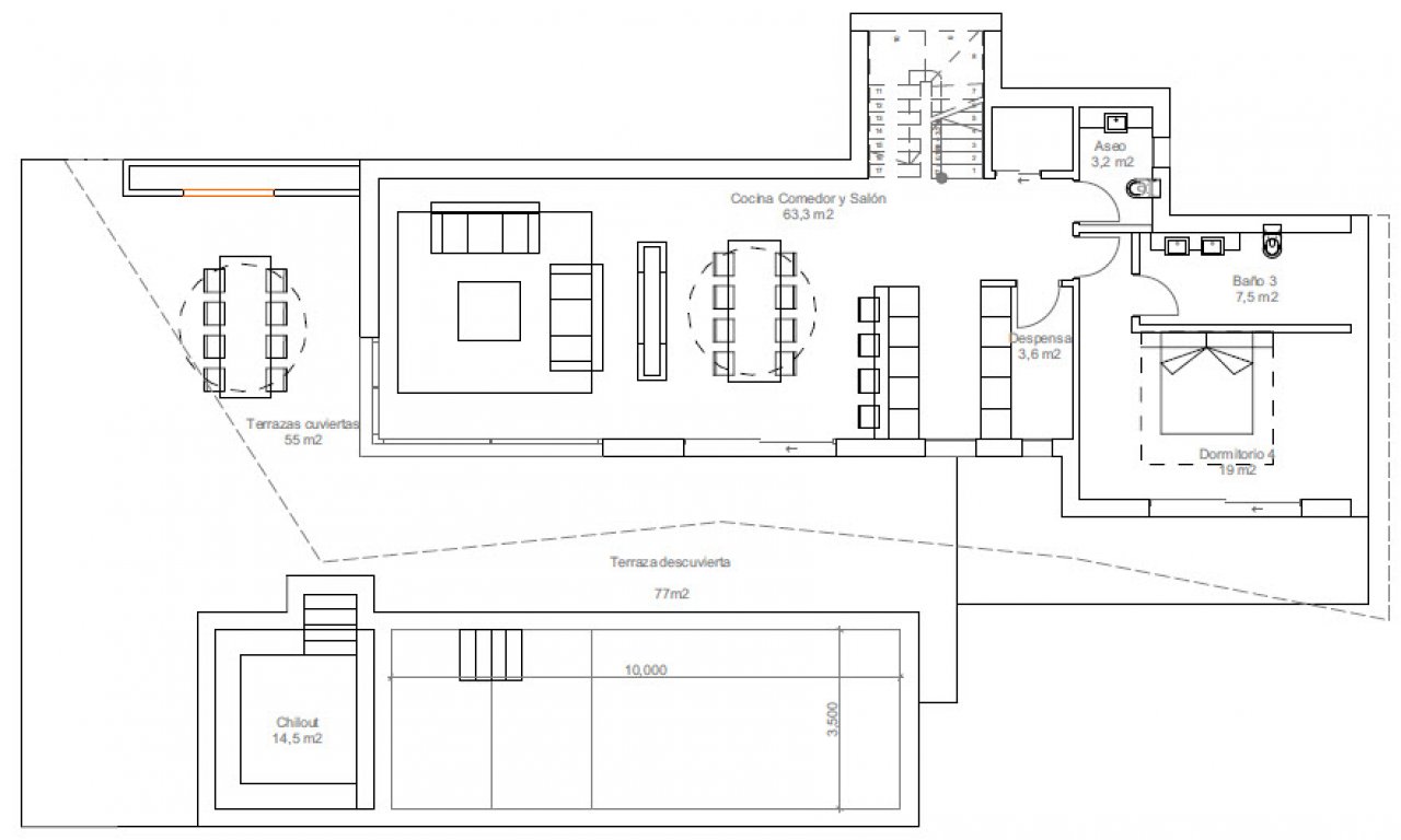
Schöne moderne Luxusvilla mit Meerblick in Javea zu verkaufen. Die Immobilie ist nach Süden ausgerichtet und liegt in einer ruhigen Straße mit freiem Blick auf das Meer und das Tal. Im Erdgeschoss gibt es ein geräumiges Wohnzimmer mit einer voll ausgestatteten offenen Küche mit Hauswirtschaftsraum, ein Gäste-WC und ein Doppelschlafzimmer mit eigenem Bad. Alle Zimmer haben Zugang zu einer Terrasse und sind nach Süden ausgerichtet. Draußen gibt es eine große Terrasse, eine überdachte Terrasse und einen Swimmingpool. In der ersten Etage befinden sich 3 weitere Doppelschlafzimmer, alle mit eigenem Bad und Terrasse.
- Doppelverglasung
Haustyp: Villa
Etagenanzahl: 2
Anzahl Schlafzimmer: 4
Anzahl Badezimmer: 4
Pool: ja
Das könnte Ihnen auch gefallen
3066JAV Moderne Villa zu verkaufen in Javea
