Pedreguer:
8215PED Lizensiertes modernes Villenprojekt mit Bergblick in Pedreguer zu verkaufen.
Objekt-Nr.: FVH-8215PED




































Preis:
755.000 €
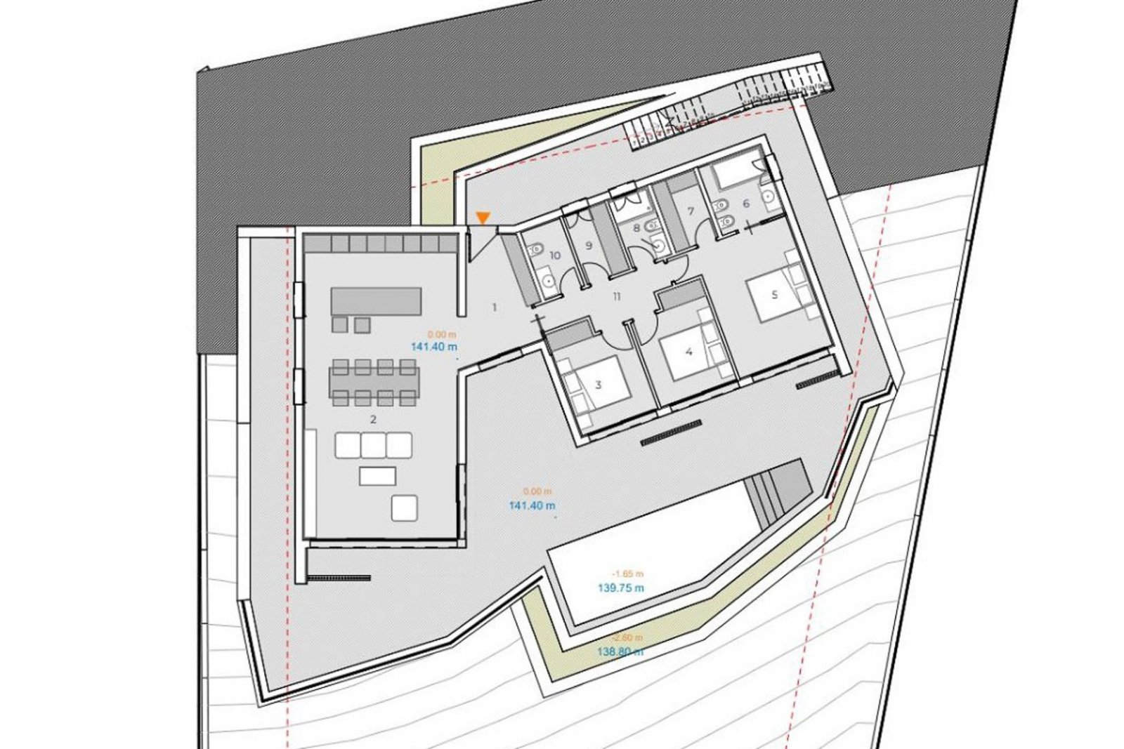
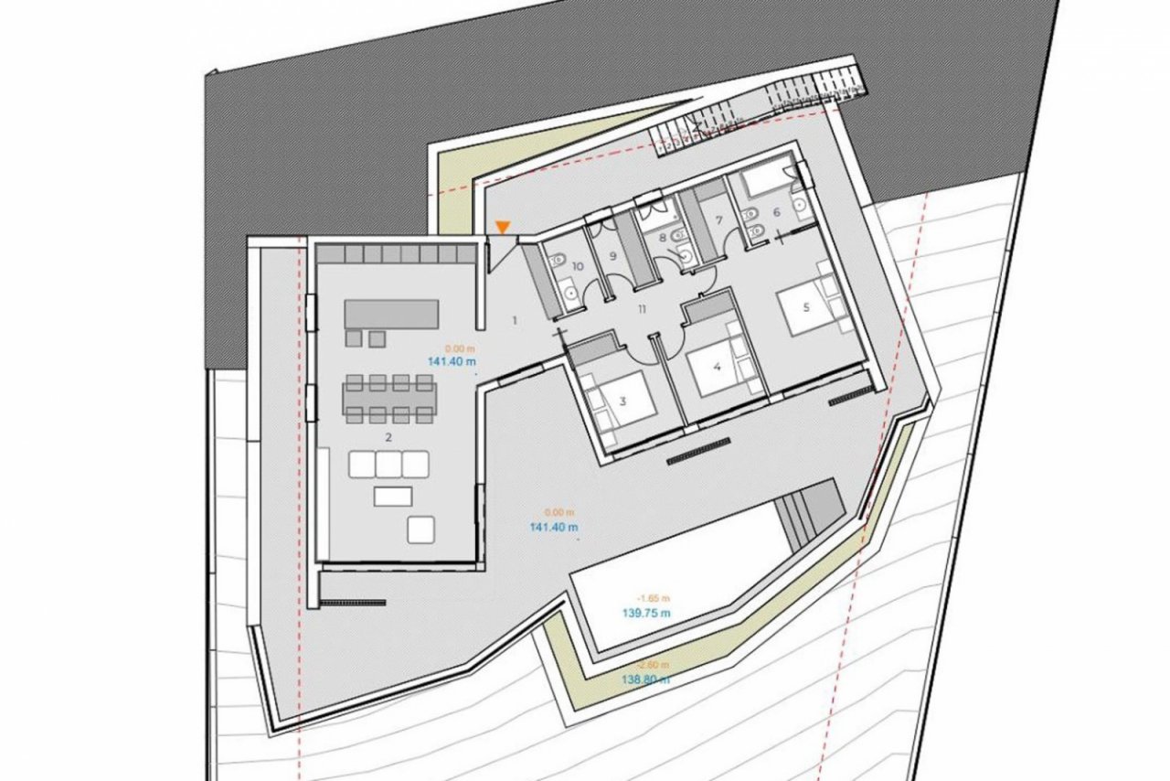
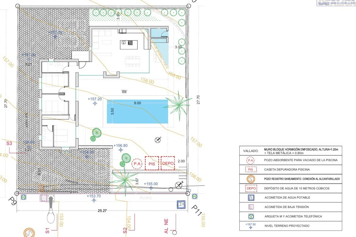
Wohnfläche ca.:
160 m²
Grundstück ca.:
1.000 m²
Zimmeranzahl:
4
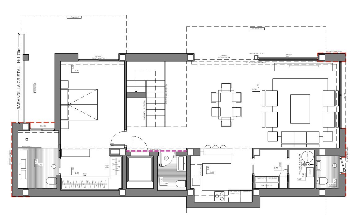
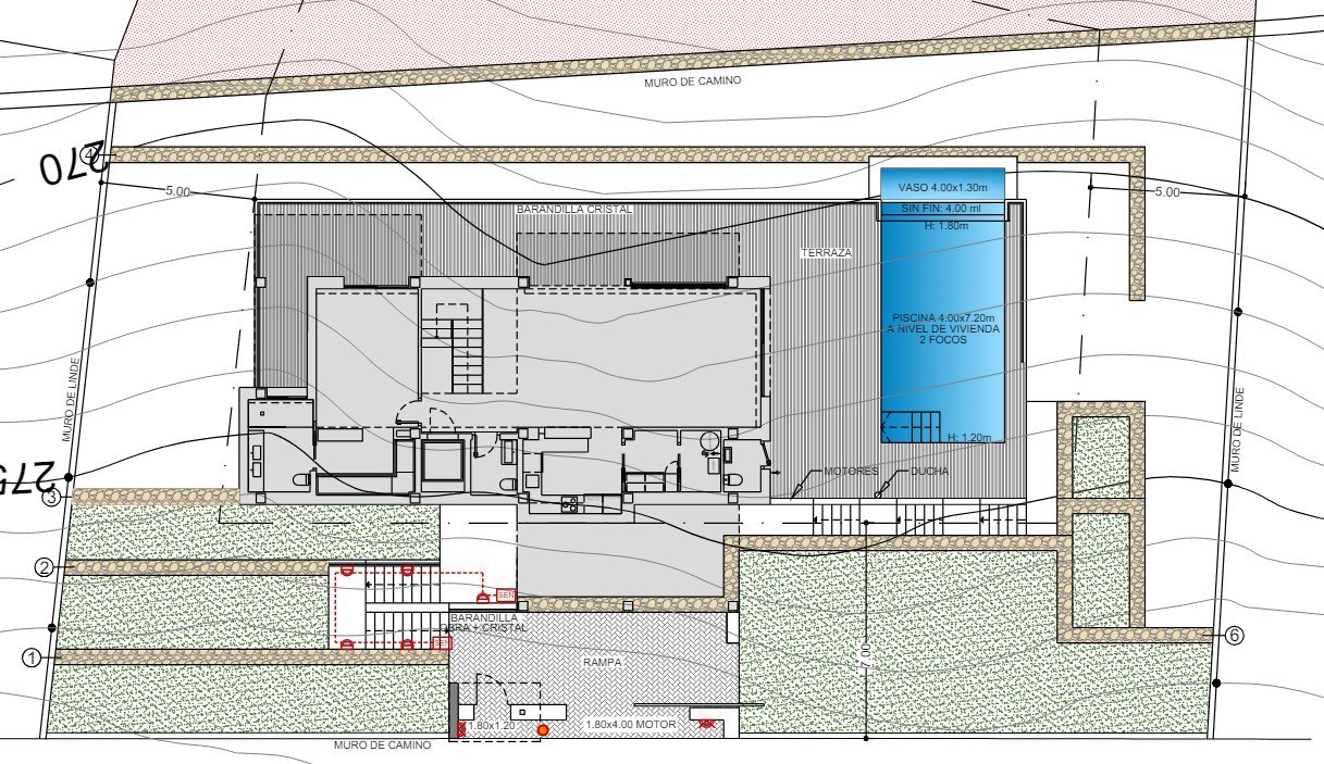
Entdecken Sie diese spektakuläre moderne Villa in Pedreguer. Sie ist nach Süden ausgerichtet und so konzipiert, dass sie den Panoramablick auf das Tal und die majestätischen Berge, die es umgeben, optimal ausnutzt. Mit einer Wohnfläche von 160 m² bietet diese moderne Villa großzügige und helle Räume, perfekt für diejenigen, die ein komfortables und elegantes Leben suchen. Die Immobilie verfügt über drei Schlafzimmer und zwei Badezimmer sowie eine praktische Waschküche. Die offene Raumaufteilung wird durch eine große Terrasse ergänzt, die direkt mit dem Pool verbunden ist und sich ideal zum Entspannen oder für gemeinsame Unternehmungen mit Freunden und Familie eignet. Die moderne Ausstattung verleiht jedem Winkel dieser Villa einen Hauch von Raffinesse. Zu den zusätzlichen Annehmlichkeiten dieser Immobilie gehört eine Vorinstallation für eine Klimaanlage mit Wärmepumpe, die Ihnen das ganze Jahr über ein optimales Raumklima garantiert. Verpassen Sie nicht die Chance, an einem Ort zu leben, wo Luxus und Ruhe in perfekter Harmonie sind!
- Doppelverglasung
Haustyp: Villa
Anzahl Schlafzimmer: 3
Anzahl Badezimmer: 2
Terrasse: 1
Pool: ja
Baujahr: 2024
Das könnte Ihnen auch gefallen
Pedreguer






























































































