Pedreguer:
Exklusive, im Bau befindliche elegante Luxus-Neubauvilla
Objekt-Nr.: BGP-OFFC3XY4453PED






























Preis:
2.195.000 €
Wohnfläche ca.:
450 m²
Grundstück ca.:
14.900 m²
Zimmeranzahl:
5
Exklusive, im Bau befindliche Neubauvilla in der Region Denia (Pedreguer) zu verkaufen.
Entdecken Sie diese elegante Luxusvilla auf einem beeindruckenden, flachen Grundstück von bis zu 14.900 m2 mit der Option, auch die drei angrenzenden Baugrundstücke zu kaufen, um ein Grundstück von bis zu 49.000 m2 zu schaffen. Das Grundstück ist vollständig eingezäunt und verfügt über einen wunderschön gepflegten Clementinengarten.…
Die Villa erstreckt sich über zwei Etagen und wurde nach den höchsten modernen Standards gebaut, wobei der Schwerpunkt auf Nachhaltigkeit liegt. So sind beispielsweise alle Fenster, Türen und Schiebetüren mit elektrischen, isolierten Rollläden mit Somfy-Motoren ausgestattet, die über eine Fernbedienung gesteuert werden können. Mit einer 30 kWh Solaranlage und einem Lithium-Batteriespeicher von 60 kWh ist diese fantastische Villa völlig autark. Die Villa wurde außerdem nach den höchsten Isolierungsstandards gebaut, so dass Sie im Inneren immer eine angenehme Temperatur haben. Die gesamte Verglasung innen und außen besteht aus Sicherheitsglas der Marke Guardian Sun. Beide Etagen verfügen außerdem über ein energieeffizientes Fußbodenheizungs- und Kühlsystem mit einer modernen Wärmepumpe der Marke Mitsubishi. Auch Ventilatoren und Klimaanlagen wurden für zusätzlichen Komfort installiert.
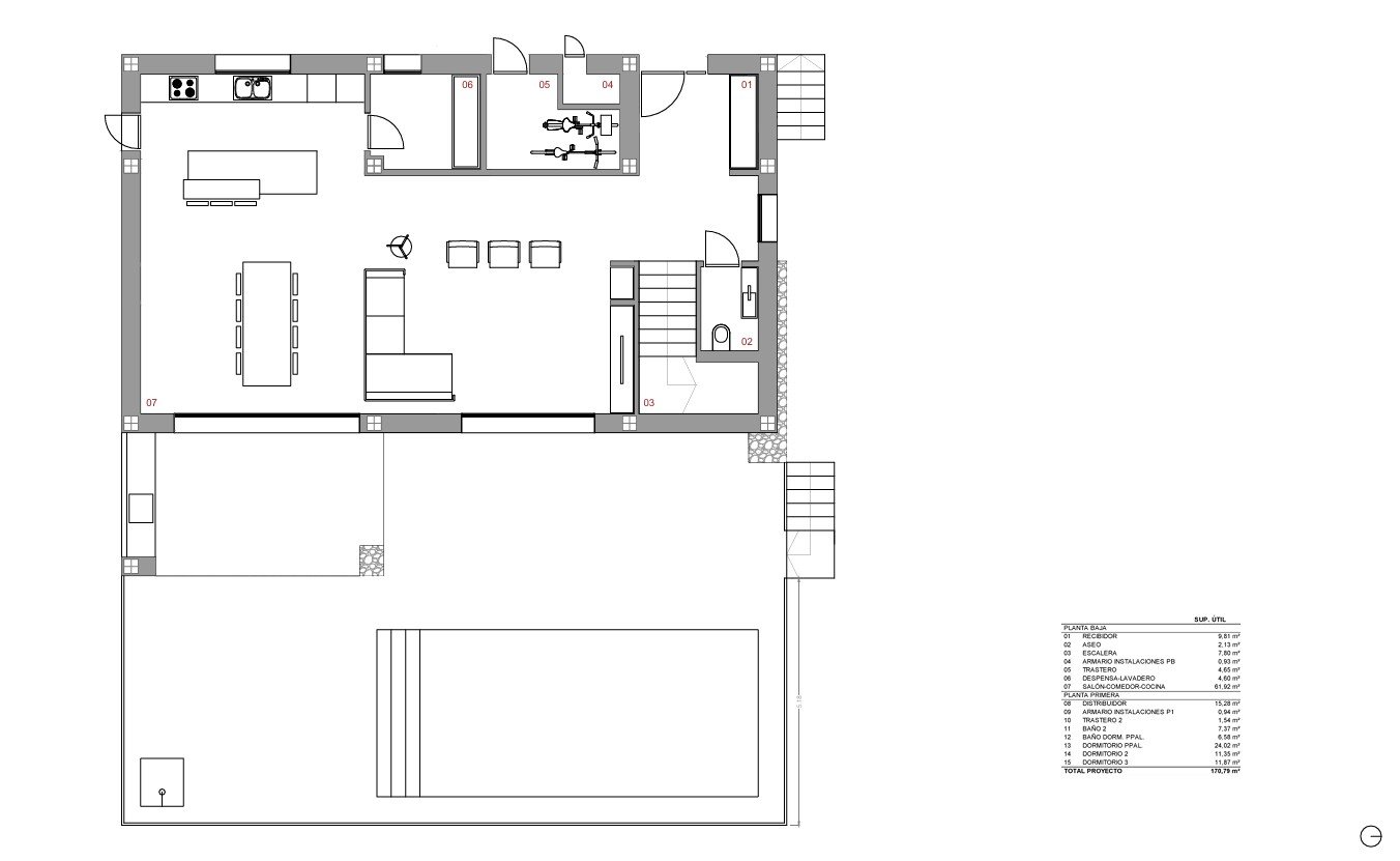
Durch eine überdachte Veranda betreten Sie eine erste geräumige Eingangshalle, von hier aus gelangen Sie in eine zweite großzügige Halle mit einem Gäste-WC, Einbauschränken und einem gekühlten Weinkeller. Im Erdgeschoss finden Sie außerdem drei geräumige Doppelschlafzimmer, jedes mit eigenem luxuriösem Bad. Alle Schlafzimmer verfügen über geräumige Einbauschränke und Ventilatoren.
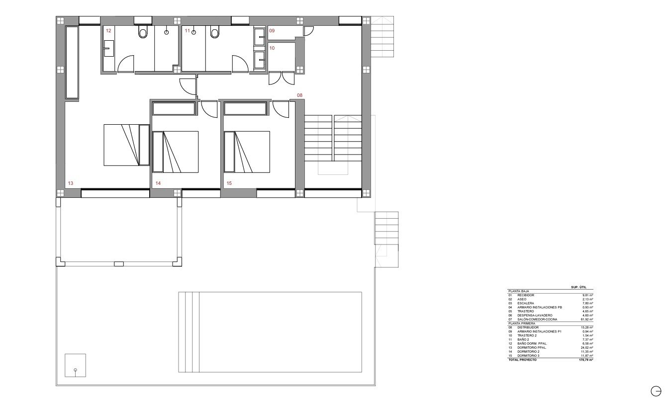
Das Obergeschoss besteht aus einem geräumigen Esszimmer mit viel natürlichem Licht dank der großen Fenster auf beiden Seiten. Außerdem gibt es ein gemütliches Wohnzimmer mit einer Kaffeebar und einem nach Osten ausgerichteten Balkon, ideal für das morgendliche Frühstück in der Sonne. Angrenzend befindet sich eine beeindruckende halboffene Küche mit der Möglichkeit, sie durch große Türen mit Sicherheitsglas vom Essbereich abzutrennen. Beim Betreten dieser luxuriösen Küche fällt Ihnen und Ihren Besuchern sofort eine beeindruckende Dunstabzugshaube der exklusiven Marke PANDO ins Auge. Darüber hinaus ist die Küche mit allen notwendigen hochwertigen Geräten der Marke Siemens ausgestattet, einem Geschirrspüler, einem Doppelkühlschrank, einem geräumigen Gefrierschrank, einem Kombi-Backofen und einem Induktionskochfeld. Auf der anderen Seite des Esszimmers befindet sich ein sehr geräumiges Wohnzimmer mit Fenstern auf beiden Seiten, von denen aus Sie einen wunderschönen Blick auf den Montgó im Nordosten und einen weiten Blick auf die Obstgärten und Berge von Pedreguer im Südwesten genießen können. Am Ende des Wohnzimmers befindet sich ein Büroraum mit einem doppelten Eingang.
An der Südseite der Villa befindet sich eine überdachte Terrasse von 140 m2 mit einer herrlichen Außenküche und einer Bar. Von hier aus haben Sie einen atemberaubenden Blick auf den wunderschön angelegten Garten mit Palmen, Olivenbäumen, verschiedenen Obstbäumen, einer zukünftigen Rasenfläche und einem beeindruckenden 18,5 x 9 m großen balinesischen Swimmingpool mit Sitzgrube, Strandzugang, Tauchbereich und angrenzender Sonnenterrasse. Ein Bad im Freien sorgt für zusätzlichen Komfort im Sommer.
Außerdem verfügt die Villa über eine 9,5 x 9,5 m große, freistehende Garage mit einer Waschküche und einem Technikraum und der Möglichkeit, im Obergeschoss eine Wohnung einzurichten. Auch beim Bau der Garage wurde auf Qualität und Komfort geachtet. Auch hier wurden isolierte Fensterrahmen aus Aluminium eingebaut, und alle Türen sind mit Sicherheitsschlössern, Sicherheitsglas und ferngesteuerten Rollläden ausgestattet. Das Haus ist außerdem mit den richtigen Drei- und Fünfpunktschlössern optimal gesichert und mit Rollläden voll abschließbar. Alle Schiebetüren auf der Rückseite des Erdgeschosses haben Stahltüren für zusätzliche Sicherheit. Außerdem wurde eine optimale Infrarotkamera-Überwachung mit einer Aufzeichnungskapazität von 4 tb installiert, die Sie auf Ihrem Smartphone ansehen können. Auch die Innentemperatur kann über Ihr Smartphone gesteuert werden.
Die Villa liegt in einer ländlichen Gegend, nur 5 Gehminuten vom Zentrum von Pedreguer entfernt, wo Sie alle wichtigen Einrichtungen finden, darunter zwei Grundschulen, eine weiterführende Schule, einen großen Supermarkt Mas y Mas und einen niederländischen Supermarkt. In nur 5 Autominuten erreichen Sie ein großes Einkaufszentrum und die Auffahrt zur AP7 Richtung Alicante und Valencia. Die weitläufigen Sandstrände und das charmante Zentrum von Denia sind in nur 10 Minuten zu erreichen.
Fordern Sie jetzt Ihre Besichtigung an und lassen Sie sich von dieser einzigartigen Villa überraschen!
Haustyp: Villa
Etagenanzahl: 2
Küche: Einbauküche
Bad: Dusche, Fenster
Anzahl Schlafzimmer: 3
Anzahl Badezimmer: 3
Balkon: 1
Terrasse: 1
Gäste-WC: ja
Garten: ja
Pool: ja
Klimaanlage: ja
Umgebung: Einkaufsmöglichkeit, ruhige Gegend, Strandnähe
Anzahl der Parkflächen: 1 x Garage
Ausblick: Berge
Letzte Modernisierung/ Sanierung: 2024
Qualität der Ausstattung: Luxus
Baujahr: 2024
Bauphase: Haus im Bau
Bodenbelag: Fliesen
Zustand: Erstbezug
I. d. R. fällt für unsere spanischen Objekte KEINE Provision für den KÄUFER an.
Die von uns gemachten Informationen beruhen auf Angaben des Verkäufers bzw. der Verkäuferin. Für die Richtigkeit und Vollständigkeit der Angaben kann keine Gewähr bzw. Haftung übernommen werden. Ein Zwischenverkauf und Irrtümer sind vorbehalten.
Wir weisen auf unsere Allgemeinen Geschäftsbedingungen hin. Durch weitere Inanspruchnahme unserer Leistungen erklären Sie die Kenntnis und Ihr Einverständnis.
Das könnte Ihnen auch gefallen
































































































