Calpe:
8245CAL Modernes Villenprojekt mit Lizenz zum Verkauf in Calpe.
Objekt-Nr.: FVH-8245CAL












































Preis:
1.690.000 €
Wohnfläche ca.:
489 m²
Grundstück ca.:
770 m²
Zimmeranzahl:
5
Modernes Villenprojekt in einer der exklusivsten Gegenden von Calpe. Diese atemberaubende moderne Design-Villa bietet ein unvergleichliches Wohnerlebnis, bei dem Luxus und Komfort perfekt mit einer privilegierten natürlichen Umgebung kombiniert werden. Von ihrer erhöhten Lage aus wird der Blick auf das Mittelmeer und den majestätischen Peñón de Ifach zu einem täglichen Spektakel, das jeden Winkel des Grundstücks mit einem unendlichen blauen Horizont umrahmt.…
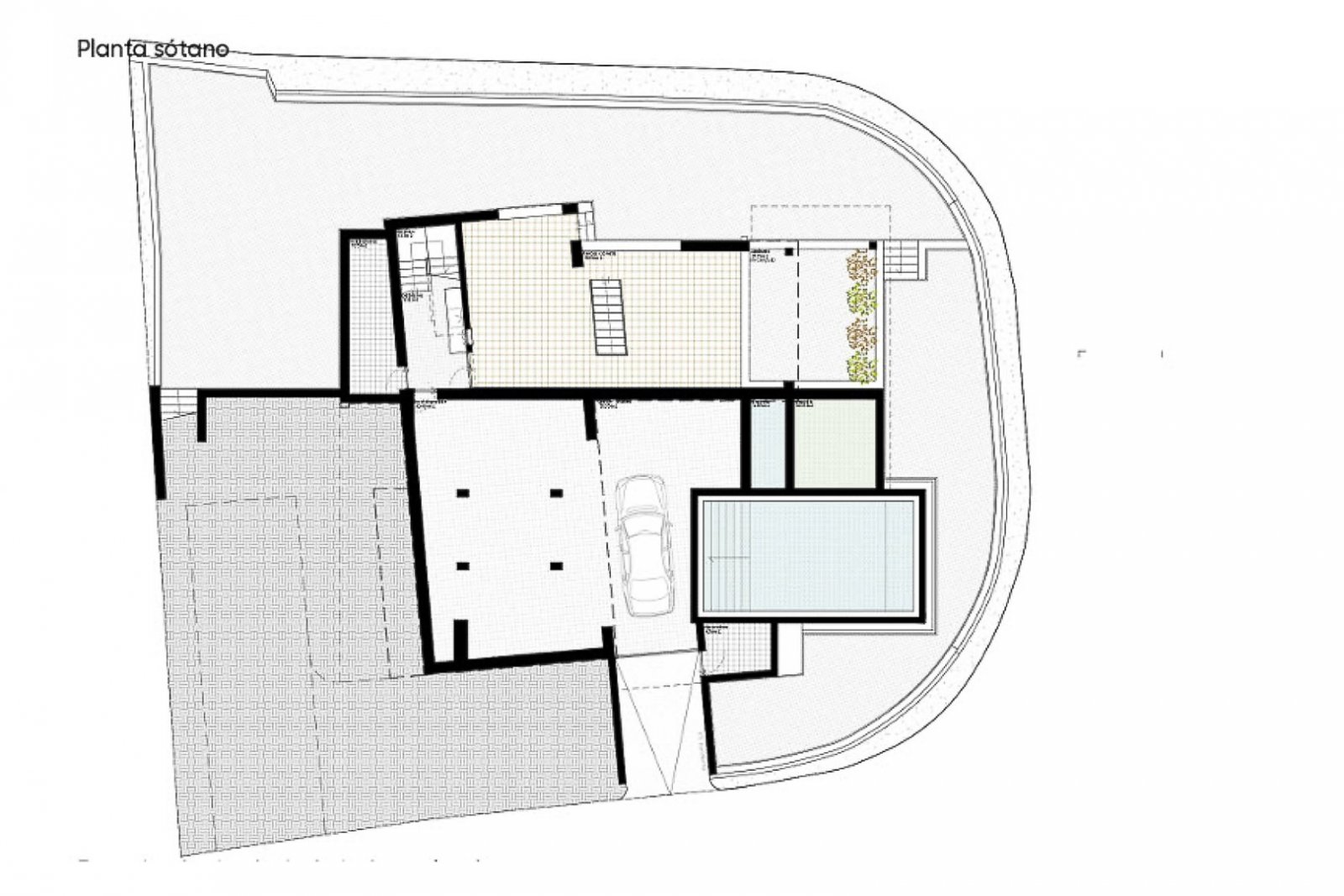
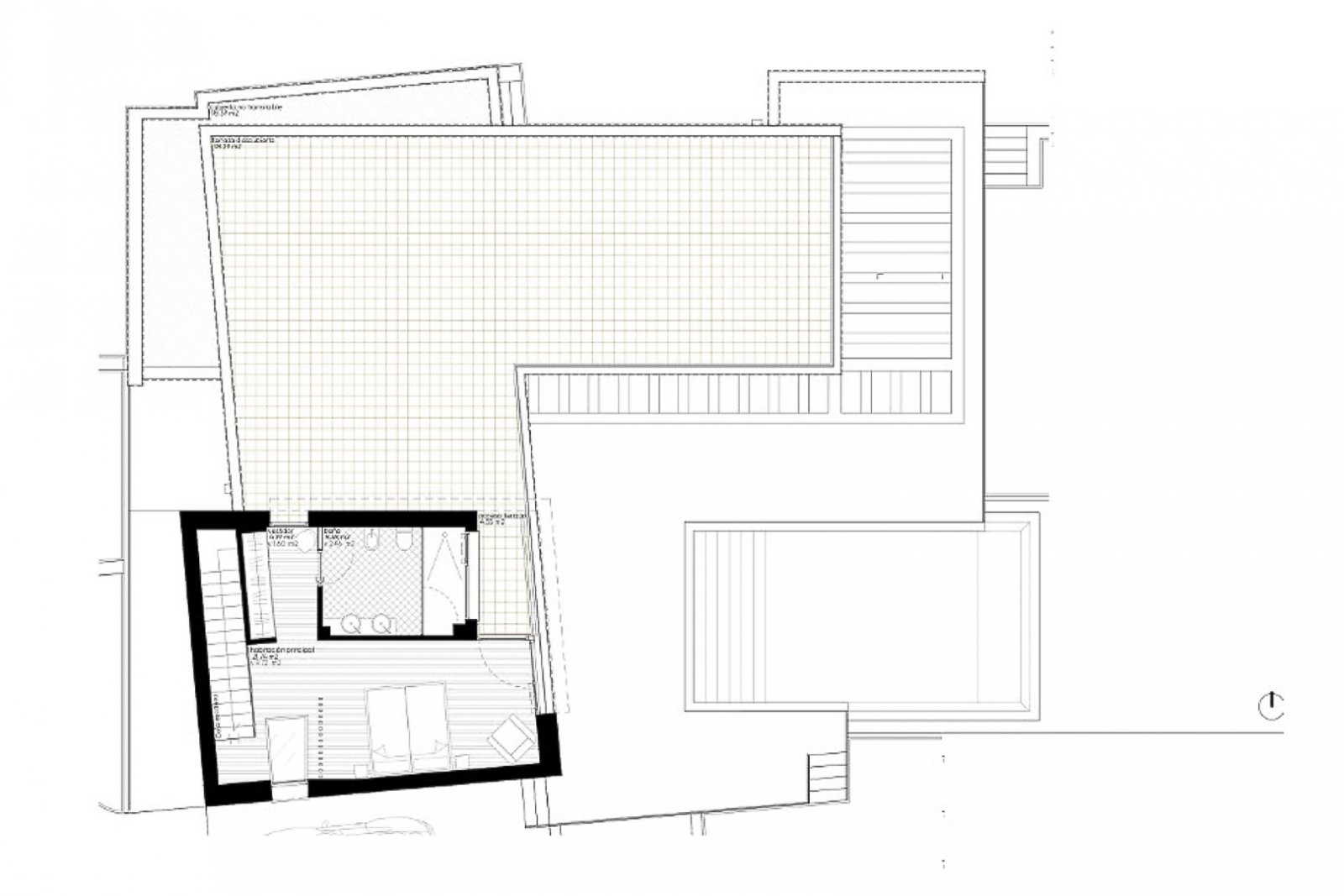
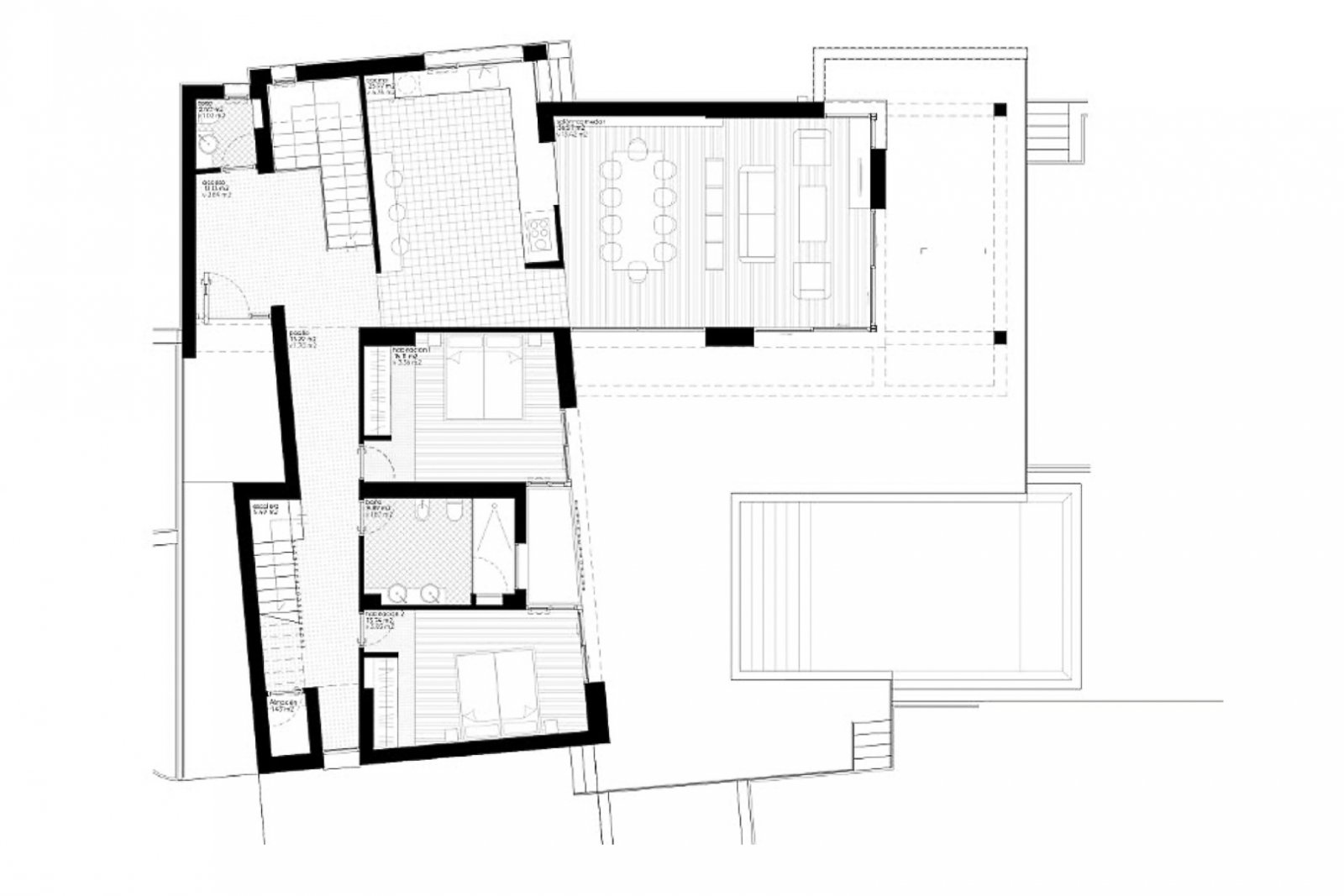
Mit einer bebauten Fläche von 489 m² auf einem Grundstück von 770 m² wurde diese Immobilie mit einer zeitgenössischen Architektur konzipiert, die den Einfall von natürlichem Licht und die Verbindung mit dem Außenbereich maximiert. Die offenen und gut verteilten Räume schaffen eine Atmosphäre von Großzügigkeit und Raffinesse. Das Haus verteilt sich auf mehrere Ebenen, die durch einen eleganten internen Aufzug verbunden sind und Komfort und Zugänglichkeit in jedem Raum bieten.
Das Herzstück des Hauses ist ein geräumiges Wohn-Esszimmer mit avantgardistischem Design, das mit einer modernen, voll ausgestatteten offenen Küche verbunden ist. Dieser Raum geht harmonisch in die Außenterrassen über, auf denen sich der spektakuläre Infinity-Pool befindet. Von hier aus hat man ein unvergleichliches Gefühl der Kontinuität zwischen dem Wasser und dem Meer, was eine Atmosphäre der absoluten Entspannung schafft.
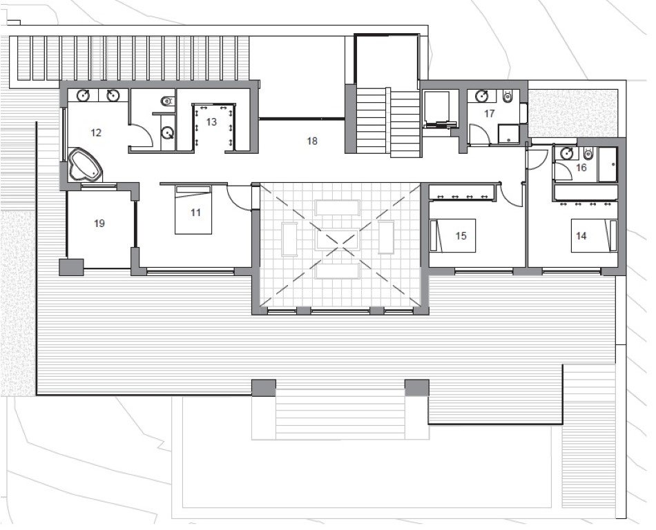
Es gibt vier Schlafzimmer, jedes mit eigenem Bad, die ein Maximum an Komfort und Privatsphäre bieten. Die hochwertige Verarbeitung, die raffinierten Linien und die Verwendung edler Materialien verstärken das Gefühl der Exklusivität in jedem Zimmer. Darüber hinaus verfügt die Immobilie über ein Gäste-WC und eine separate Waschküche, die Funktionalität garantieren, ohne auf Design zu verzichten.
Die Ausstattung der Immobilie ist auf dem Höhepunkt ihrer Eleganz. Die Fußbodenheizung und die Klimaanlage sorgen zu jeder Jahreszeit für ein perfektes Klima, während das Hausautomatisierungssystem es Ihnen ermöglicht, verschiedene Aspekte des Hauses mit vollem Komfort zu steuern, einschließlich Beleuchtung, elektrische Jalousien und Sicherheitssysteme.
Der Außenbereich der Villa ist eine private Oase. Die großzügigen Terrassen bieten mehrere Entspannungs- und Freizeitbereiche, von einem Grillplatz, der ideal für Versammlungen im Freien ist, bis hin zu einer gemütlichen Chill-out-Ecke, um die mediterranen Abende zu genießen. Der Garten, der sorgfältig mit einheimischen Pflanzen angelegt wurde, verleiht einen Hauch von Frische und Privatsphäre und harmoniert perfekt mit der Architektur des Hauses.
Nur 800 Meter von den Stränden von Calpe entfernt, können Sie in dieser Villa die Ruhe einer Wohngegend genießen, ohne auf die Nähe zu allen Dienstleistungen zu verzichten. Supermärkte, Restaurants und Geschäfte sind nur wenige Minuten entfernt und erleichtern das tägliche Leben, ohne dass man lange Wege zurücklegen muss.
Diese Immobilie ist mehr als nur ein Haus, sie steht für einen exklusiven Lebensstil an der Costa Blanca, wo Design, Technologie und Natur zu einem einzigartigen Wohnsitz verschmelzen. Eine außergewöhnliche Gelegenheit für diejenigen, die die perfekte Kombination aus Eleganz und Komfort in einer unschlagbaren Lage suchen.
- Solarium
Haustyp: Villa
Etagenanzahl: 3
Anzahl Schlafzimmer: 4
Anzahl Badezimmer: 5
Terrasse: 1
Pool: ja
Alarmanlage: ja
Baujahr: 2024
Das könnte Ihnen auch gefallen
Calpe




















































































