Jávea:
Projekt für eine freistehende Villa in traditionellem Stil in Jávea
Objekt-Nr.: CRES23


































Preis:
1.000.000 €
Wohnfläche ca.:
180 m²
Grundstück ca.:
1.005 m²
Zimmeranzahl:
4
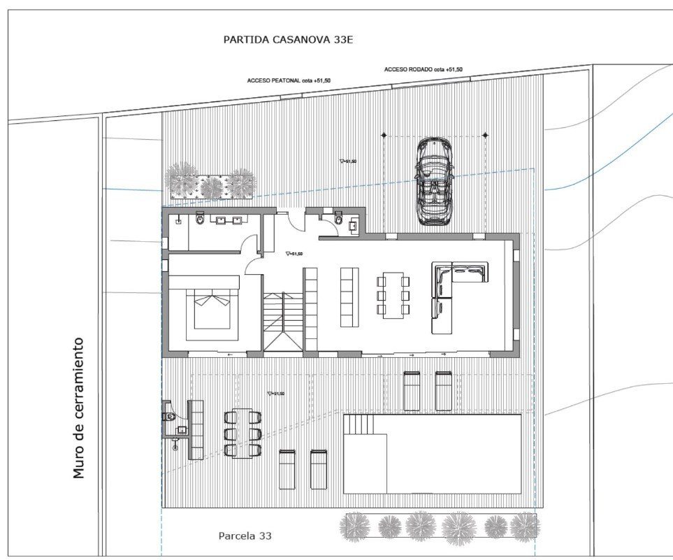
Projekt für eine freistehende Villa im traditionellen Stil in der Urbanisation La Cala d von Jávea.
Diese Immobilie wird aus 180m² Wohnfläche auf zwei Etagen, 142m² Terrassen, 99m² Parkplatz und 36m² Swimmingpool auf einem Grundstück von 1005m² bestehen.
Die Immobilie verfügt über 3 Schlafzimmer, 2 Bäder, 1 Gäste-Toilette, Wohn-/Esszimmer mit offener Küche und Hauswirtschaftsraum.
Die Aufteilung des Hauses ist ideal, im Erdgeschoss wird es einen offenen Raum von 67m² für den Wohn-Essbereich und für die Küche geben, die komplett möbliert sein wird mit Insel, Spüle und Abzugshaube. Von diesem Bereich aus hat man durch 2 Schiebetüren Zugang zur überdachten Terrasse von 26m².
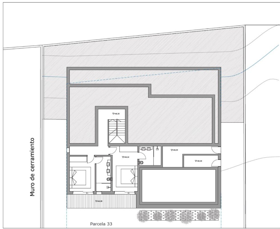
Auf der gleichen Etage befinden sich ein Schlafzimmer mit Einbauschrank, ein eigenes Bad mit Dusche, eine Toilette und eine Waschküche. Im Obergeschoss befinden sich 2 Doppelschlafzimmer mit Einbauschränken und direktem Zugang zur Terrasse, sowie ein Badezimmer mit Dusche.
Darüber hinaus ist die gesamte Immobilie mit einer Abluftklimaanlage und einer Fußbodenheizung ausgestattet.
Im Außenbereich befinden sich ein 9x4m² großer Swimmingpool und ein Grillplatz.
Das gesamte Grundstück wird komplett eingezäunt sein und ist durch ein Metalltor für Autos oder durch ein Fußgängertor zugänglich.
Das Haus wird auch einen privaten Parkplatz innerhalb des Grundstücks für 2 Fahrzeuge haben.
Haustyp: Villa
Etagenanzahl: 2
Küche: Einbauküche, offen
Bad: Dusche, Fenster
Anzahl Schlafzimmer: 3
Anzahl Badezimmer: 2
Balkon: 1
Terrasse: 1
Gäste-WC: ja
Garten: ja
Pool: ja
Klimaanlage: ja
Als Ferienhaus geeignet: ja
Umgebung: Einkaufsmöglichkeit, ruhige Gegend, Strandnähe, Wohngegend
Anzahl der Parkflächen: 2 x Außenstellplatz
Bodenbelag: Fliesen
Zustand: Haus in Planung (projektiert)
I. d. R. fällt für unsere spanischen Objekte KEINE Provision für den KÄUFER an.
Die von uns gemachten Informationen beruhen auf Angaben des Verkäufers bzw. der Verkäuferin. Für die Richtigkeit und Vollständigkeit der Angaben kann keine Gewähr bzw. Haftung übernommen werden. Ein Zwischenverkauf und Irrtümer sind vorbehalten.
Wir weisen auf unsere Allgemeinen Geschäftsbedingungen hin. Durch weitere Inanspruchnahme unserer Leistungen erklären Sie die Kenntnis und Ihr Einverständnis.
Das könnte Ihnen auch gefallen








































































