Moraira:
8248MOR Moderne Neubauvilla mit Panoramablick auf das Meer und großer Terrasse, zum Verkauf in Moraira.
Objekt-Nr.: FVH-8248MOR
































































Preis:
2.250.000 €
Wohnfläche ca.:
310 m²
Grundstück ca.:
817 m²
Zimmeranzahl:
4
In einer ruhigen und exklusiven Wohngegend gelegen, kombiniert diese neu gebaute Villa Luxus, modernes Design und eine perfekte Südausrichtung, um das Beste aus dem natürlichen Licht und dem Panoramablick zu machen. Von seiner privilegierten Lage aus bietet das Anwesen einen spektakulären 360-Grad-Panoramablick, der sich von Jávea und Teulada bis zur wunderschönen Bucht von Moraira erstreckt.
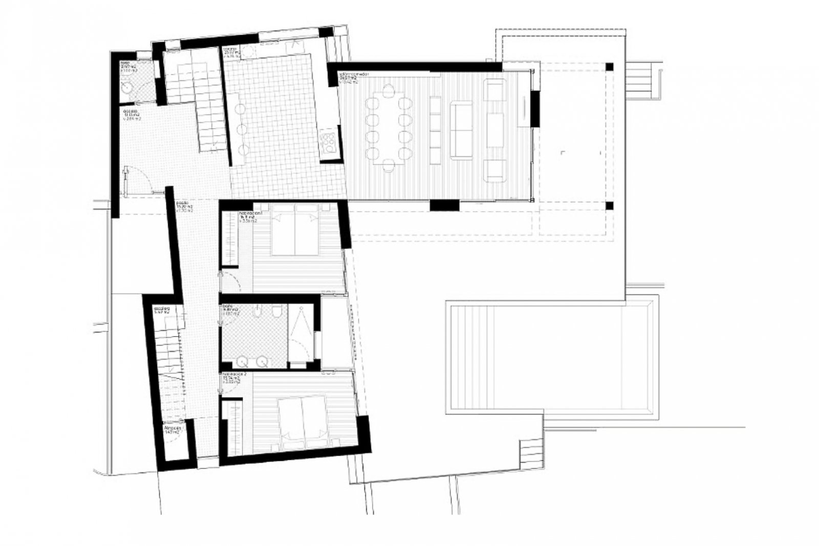
Beim Betreten der Immobilie finden wir ein geräumiges und elegantes, offenes Wohnzimmer, das mit einer modernen, voll ausgestatteten Küche verschmilzt. Große Fenster lassen viel natürliches Licht herein und verbinden den Innenraum harmonisch mit der Terrasse und dem privaten Swimmingpool, wodurch ein idealer Ort geschaffen wird, um das mediterrane Klima das ganze Jahr über zu genießen. Auf dieser Etage befinden sich zwei Doppelschlafzimmer mit Einbauschränken und ein Familienbad sowie ein Gäste-WC.…
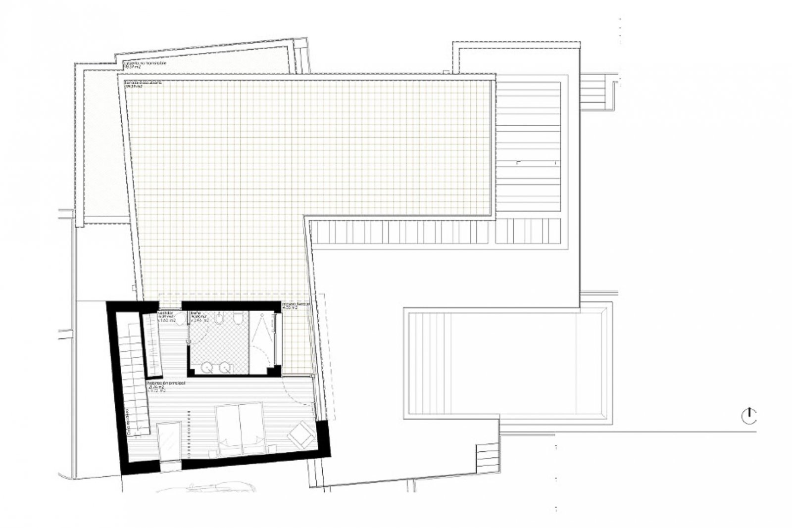
Die erste Etage ist ganz der Master-Suite gewidmet: ein geräumiges Schlafzimmer mit Ankleideraum, en-suite Badezimmer und Zugang zu einer privaten Terrasse, von der aus Sie einen unvergleichlichen Blick auf die Küste und die natürliche Umgebung des Anwesens genießen können.
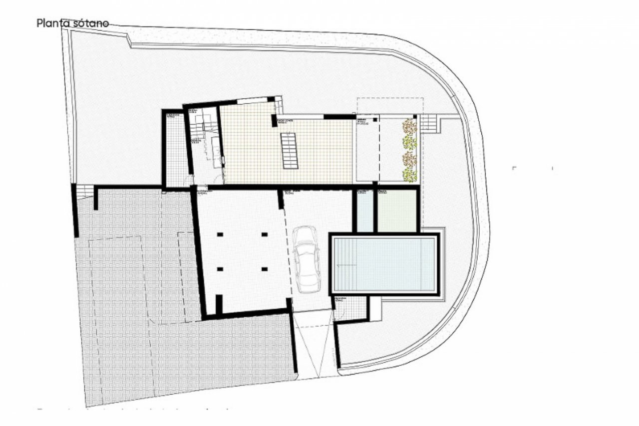
Das Untergeschoss der Villa bietet dank seiner Geräumigkeit und seines natürlichen Lichts unendlich viele Möglichkeiten. Dieser Raum kann an die Bedürfnisse des Eigentümers angepasst werden, sei es als Fitnessraum, Kinoraum, Weinkeller oder Unterhaltungsbereich. Darüber hinaus verfügt die Immobilie über eine Doppelgarage mit direktem Zugang zum Grundstück.
Der Außenbereich wurde so gestaltet, dass er nur minimale Pflege benötigt. Ein schöner mediterraner Garten umgibt die Villa und fügt sich perfekt in die Umgebung ein. Der Swimmingpool und der Terrassenbereich laden zum Entspannen und Genießen unvergesslicher Momente im Freien ein.
Mit hochwertigen Materialien und modernster Wärmedämmung (SATE) gebaut, garantiert diese Villa Energieeffizienz und außergewöhnlichen Komfort zu jeder Jahreszeit. Die Lage ist unschlagbar, nur wenige Gehminuten von Supermärkten und den charmanten Städten Moraira und Teulada entfernt, wo Sie Restaurants, Geschäfte und alle notwendigen Dienstleistungen finden.
Ein exklusives Anwesen, das Privatsphäre, Design und unvergleichliche Ausblicke vereint, ideal für alle, die ein Luxusdomizil an der Costa Blanca suchen.
Möchten Sie eine Besichtigung vereinbaren? Zögern Sie nicht, uns zu kontaktieren.
- Electricity
- Solarium
Haustyp: Villa
Etagenanzahl: 3
Anzahl Schlafzimmer: 3
Anzahl Badezimmer: 2
Terrasse: 1
Pool: ja
Anzahl der Parkflächen: 1 x Garage
Baujahr: 2024
Das könnte Ihnen auch gefallen
Moraira















































































































































