Javea:
C3XY4492JAV Beeindruckendes Neubauprojekt zum Verkauf in La Corona, Jávea
Objekt-Nr.: FVH-C3XY4492JAV




















































Preis:
2.000.000 €
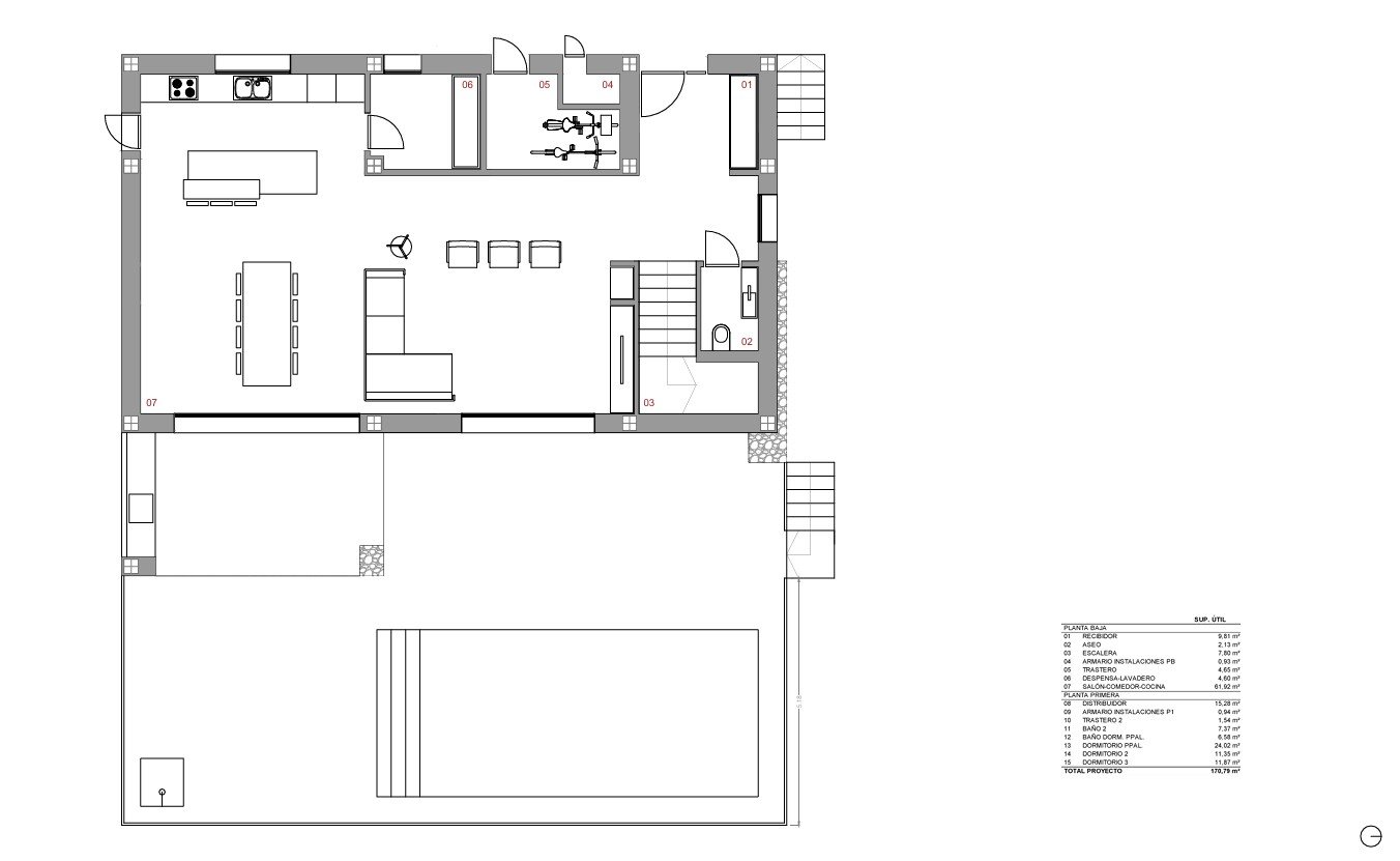
Wohnfläche ca.:
297 m²
Grundstück ca.:
1.600 m²
Zimmeranzahl:
5
Diese beeindruckende Villa befindet sich in der prestigeträchtigen Urbanisation La Corona und bietet die perfekte Kombination aus Luxus, Privatsphäre und einer hervorragenden Lage. Nur einen kurzen Spaziergang vom Yachthafen und dem charmanten Zentrum von Jávea entfernt, ist dies der ideale Ort für diejenigen, die nach einem exklusiven Lebensstil im Herzen der Costa Blanca suchen.
Die Villa verfügt über 4 großzügige Schlafzimmer, jedes mit eigenem Bad, die den Bewohnern und Gästen ultimativen Komfort und Privatsphäre bieten. Das geräumige Wohnzimmer bietet eine einladende Atmosphäre mit einem Essbereich und einer offenen Küche mit Kücheninsel. Angrenzend an die Küche befindet sich ein praktischer Hauswirtschaftsraum. Ein Gäste-WC sorgt für zusätzlichen Komfort für Besucher.…
Im Außenbereich gibt es einen Swimmingpool, der von einem üppigen Garten und einer Sonnenterrasse umgeben ist, die zum Entspannen und Genießen der sonnigen Mittelmeertage einlädt. Außerdem bietet die geräumige überdachte Terrasse viele Möglichkeiten für das Leben im Freien, egal zu welcher Jahreszeit. Ein überdachter Parkplatz für mehrere Autos ist ebenfalls vorhanden.
Was diese Villa noch attraktiver macht, ist die Tatsache, dass es sich um ein individuelles Bauprojekt handelt. Die Baugenehmigung wurde noch nicht beantragt, was Ihnen die Möglichkeit gibt, das Design und die Ausstattung ganz nach Ihren Wünschen zu gestalten.
Diese Villa ist die perfekte Gelegenheit für diejenigen, die ein einzigartiges und maßgeschneidertes Haus in einer der begehrtesten Lagen der Costa Blanca suchen.
Haustyp: Villa
Etagenanzahl: 1
Anzahl Schlafzimmer: 4
Anzahl Badezimmer: 4
Pool: ja
Klimaanlage: ja
Das könnte Ihnen auch gefallen
Javea











































