Teulada:
4516TEU Modernes Finca-Projekt mit beantragter Lizenz auf großem Grundstück in Teulada-Moraira
Objekt-Nr.: FVH-4516TEU
































Preis:
2.985.000 €
Wohnfläche ca.:
457 m²
Grundstück ca.:
10.920 m²
Zimmeranzahl:
5
Diese moderne Villa im Finca-Stil wird auf einem Grundstück von 10.920 m2 im Hinterland von Teulada-Moraira nur 4 km von der Küste entfernt gebaut.
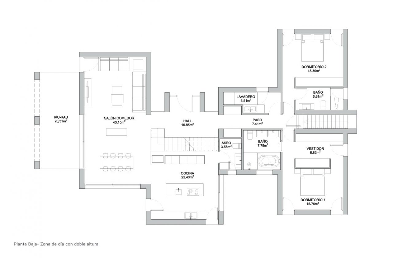
Die Villa ist über zwei Etagen + Garage im Untergeschoss verteilt. Im Erdgeschoss betritt man eine geräumige Halle, die den Wohnbereich von den Schlafräumen trennt. Auf der Südseite des Hauses befindet sich ein geräumiges Wohn-Esszimmer mit angrenzender moderner Küche mit Insel. Neben der Küche befindet sich das Gäste-WC. Die Schlafzimmer befinden sich auf der Nordseite der Villa. Im Erdgeschoss befindet sich das Hauptschlafzimmer mit einem geräumigen Badezimmer mit Badewanne, Dusche und Doppelwaschbecken und ein zweites Doppelschlafzimmer mit einem Badezimmer en suite. Im Flur gibt es eine weitere Waschküche und eine Treppe zum Obergeschoss und zum Keller. Das Obergeschoss besteht aus zwei Doppelschlafzimmern, jedes mit eigenem Bad und einem geräumigen Büro. Im Untergeschoss befinden sich eine Doppelgarage und ein Badezimmer.…
Vom Wohnzimmer aus gelangt man durch Schiebefenster auf das „riu rau“, eine große überdachte Terrasse mit Blick auf den Garten und den Pool. Am Pool befindet sich ein überdachter Essbereich mit einer Küche, ideal um den ganzen Sommer am Pool zu verbringen. Die Villa ist umgeben von einem mediterranen Garten mit automatischer Bewässerung und mehreren Terrassen. Es gibt eine Auffahrt mit Parkplätzen für mehrere Autos. Eine Vorinstallation für eine Poolheizung wird installiert und eine Vorinstallation für eine Alarmanlage. Als Klimaanlage wird das System AEROTHERMIA zum Heizen und Kühlen sowie eine Fußbodenheizung im gesamten Haus mit AIRZONE-System installiert.
Die Lizenz für das Projekt ist beantragt und die Finca kann in einem Jahr gebaut werden. Das Grundstück befindet sich im schönen Hinterland von Teulada-Moraira, nur wenige Kilometer von der schönen Küste entfernt.
- Doppelverglasung
Haustyp: Villa
Etagenanzahl: 2
Anzahl Schlafzimmer: 4
Anzahl Badezimmer: 4
Pool: ja
Klimaanlage: ja
Anzahl der Parkflächen: 1 x Garage
Das könnte Ihnen auch gefallen
Teulada





























































































