Benissa:
4517BEN Luxuriöse Neubauvilla mit Meerblick zum Verkauf in Raco de Galeno, Benissa
Objekt-Nr.: FVH-4517BEN






















Preis:
2.995.000 €
Wohnfläche ca.:
458 m²
Grundstück ca.:
1.500 m²
Zimmeranzahl:
5
Diese neue Villa wird auf einem geräumigen 1500 m2 großen Grundstück in der luxuriösen Urbanisation Raco de Galeno, 2 km von der schönen Küste von Benissa entfernt, gebaut.
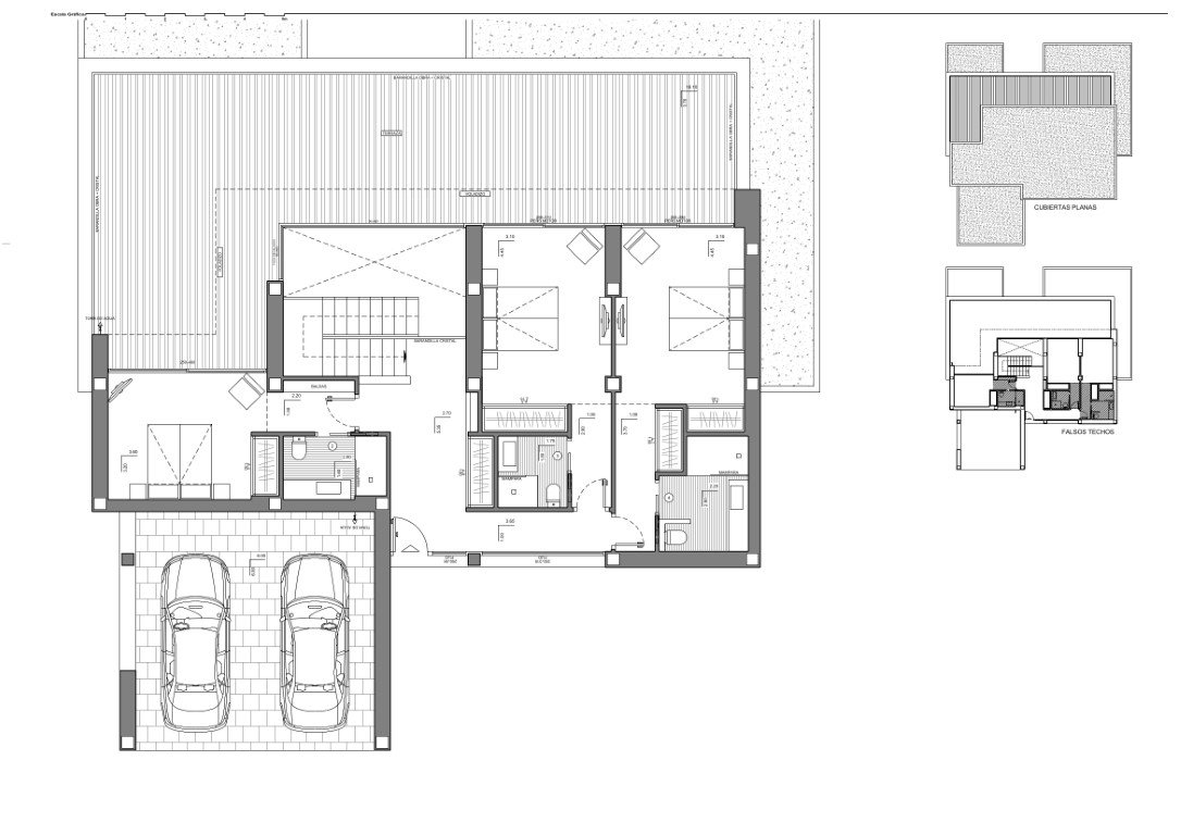
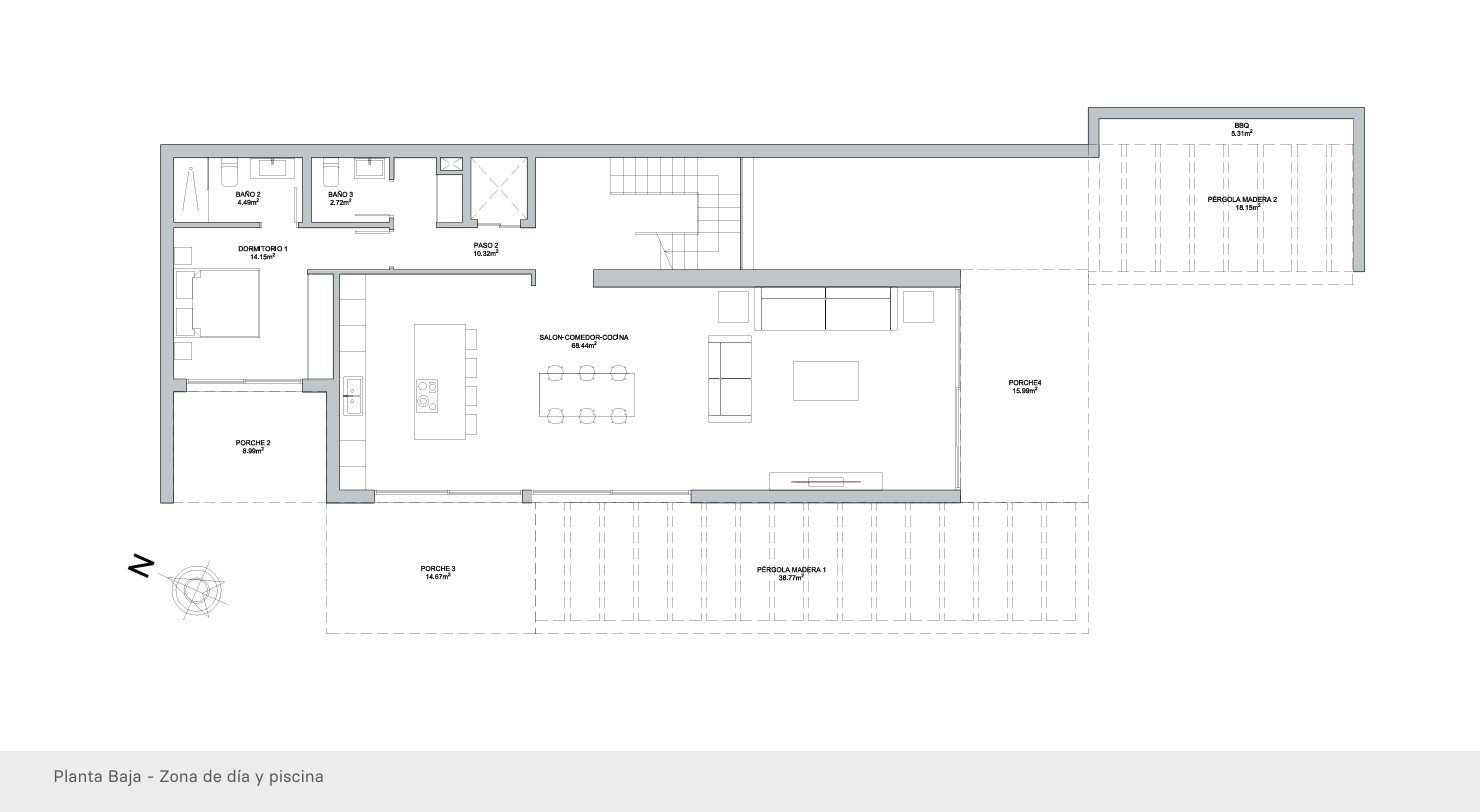
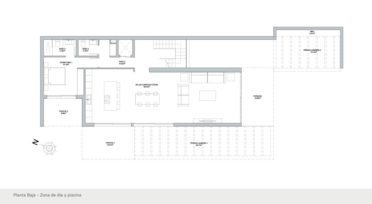
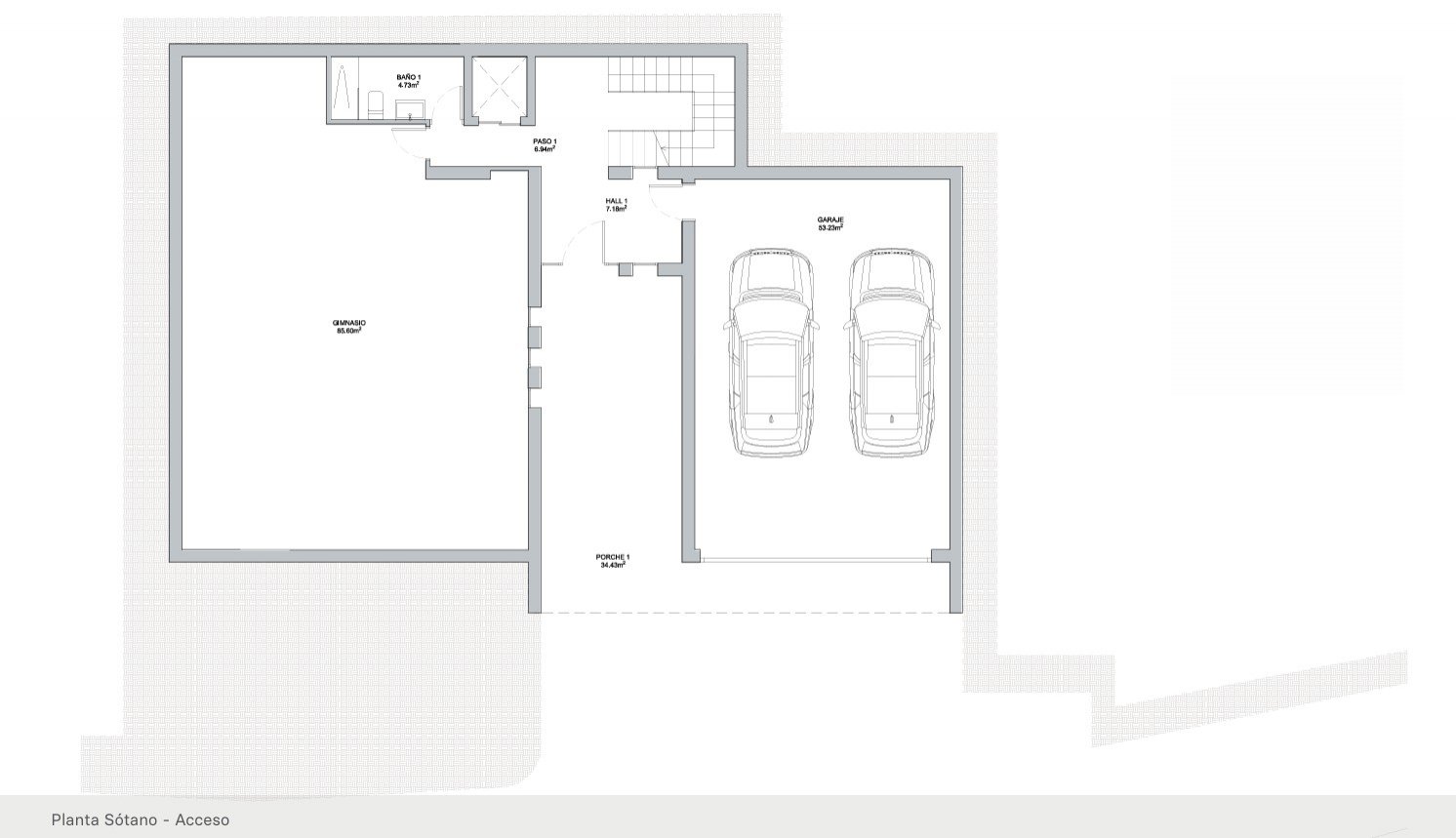
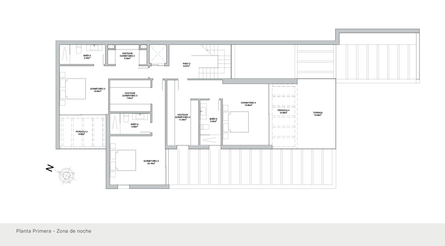
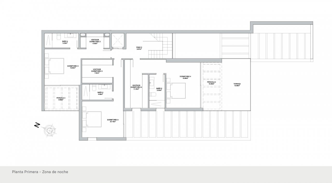
Die Villa hat eine Gesamtfläche von 459 m2, die sich auf zwei Etagen und ein Untergeschoss mit einer Doppelgarage verteilt. Im Erdgeschoss befinden sich ein geräumiges Wohn-Esszimmer mit moderner, offener Küche, ein Schlafzimmer mit eigenem Bad und privater Terrasse sowie ein Gäste-WC. Im Obergeschoss befinden sich drei weitere luxuriöse Schlafzimmer, jedes mit eigenem Bad und Ankleidezimmer. Ein Schlafzimmer hat durch Schiebefenster Zugang zu einer privaten Terrasse und die beiden anderen Schlafzimmer teilen sich eine sehr große Terrasse. Im Untergeschoss befinden sich eine Garage mit Stellplatz für zwei Autos, eine Eingangshalle und ein Gäste-WC. Im Außenbereich befindet sich ein Swimmingpool, der von mehreren überdachten und nicht überdachten Terrassen umgeben ist. Die Villa verfügt über eine großzügige Auffahrt mit Zugang zur Garage. Eine Vorinstallation für eine Poolheizung und eine Vorinstallation für eine Alarmanlage werden installiert. Als Klimaanlage wird das System AEROTHERMIA zum Heizen und Kühlen sowie eine Fußbodenheizung im gesamten Haus mit AIRZONE-System installiert.
Das Projekt verfügt bereits über eine Genehmigung und kann innerhalb eines Jahres gebaut werden.
- Doppelverglasung
Haustyp: Villa
Anzahl Schlafzimmer: 4
Anzahl Badezimmer: 4
Pool: ja
Anzahl der Parkflächen: 1 x Garage
Das könnte Ihnen auch gefallen
Benissa























































