Benissa:
C4XY4527BEN Grundstück/Renovierungsprojekt mit Panoramablick auf das Meer zum Verkauf in Racó del Galeno, Benissa
Objekt-Nr.: FVH-C4XY4527BEN


































































Grundstück ca.:
1.423 m²
Preis:
745.000 €
Einzigartiges Grundstück mit Meerblick in Racó del Galeno
Dieses großzügige 1.423 m² große Grundstück befindet sich in der exklusiven und modernen Urbanisation Racó del Galeno. Es bietet einen atemberaubenden Panoramablick über das Mittelmeer, vom Cap dOr in Moraira bis über den ikonischen Peñón de Ifach in Calpe hinaus. Dank der Südost-Ausrichtung genießen Sie hier optimale Lichtverhältnisse und atemberaubende Sonnenaufgänge.
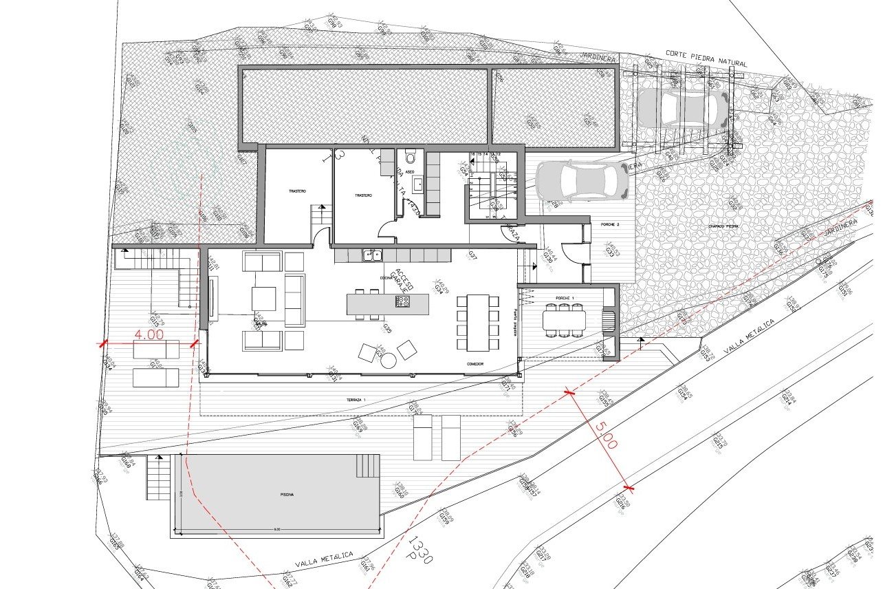
Auf dem Grundstück befindet sich derzeit eine traditionelle Villa mit einer bebauten Fläche von 117 m². Für dieses Grundstück gibt es drei interessante Entwicklungsmöglichkeiten:
1.…
Renovierung - Sie können die bestehende Immobilie auffrischen und schon bald Ihren eigenen Platz in bester Lage genießen.
2. Integrale Renovierung & Erweiterung - Es liegt bereits ein Basis- und Ausführungsprojekt vor, mit dem Sie die Immobilie komplett in eine moderne Villa im Ibiza-Stil mit mediterranem Charme verwandeln können. Die Renderings und Pläne veranschaulichen diese Option.
3. Neubau - Sie können sich dafür entscheiden, das derzeitige Anwesen abzureißen und eine völlig neue, luxuriöse Villa ganz nach Ihren Wünschen und Ihrem Stil zu errichten.
Die Lage ist ideal: nur 5 Autominuten von der malerischen Küste von Benissa und 10 Minuten vom lebhaften Zentrum von Calpe mit seinen umfangreichen Einrichtungen, Stränden und Restaurants entfernt, haben Sie hier alles in Reichweite.
Weitere Informationen oder eine Besichtigung nach Vereinbarung.
Nutzungsart: Wohnen
Das könnte Ihnen auch gefallen
Benissa
