Benissa:
8280BEN Moderne Villa mit teilweisem Meerblick zum Verkauf in Benissa.
Objekt-Nr.: FVH-8280BEN




















































































Preis:
1.370.000 €
Wohnfläche ca.:
377 m²
Grundstück ca.:
828 m²
Zimmeranzahl:
5
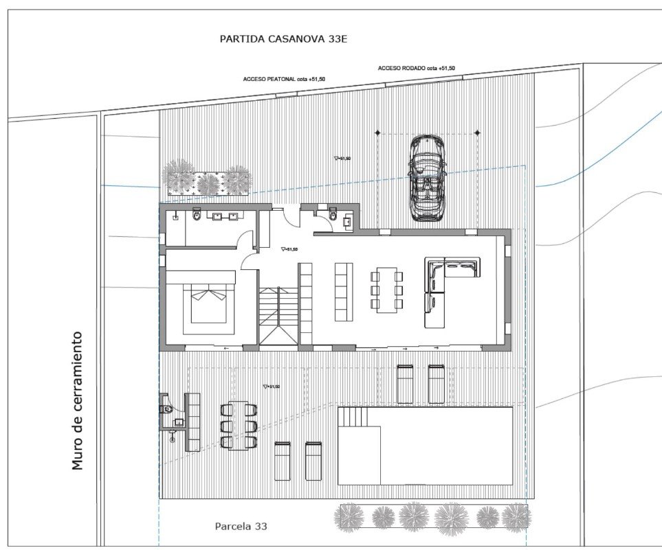
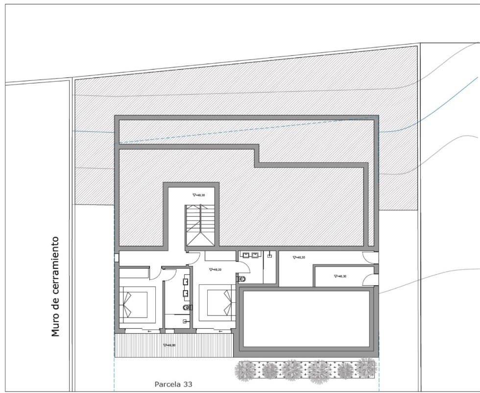
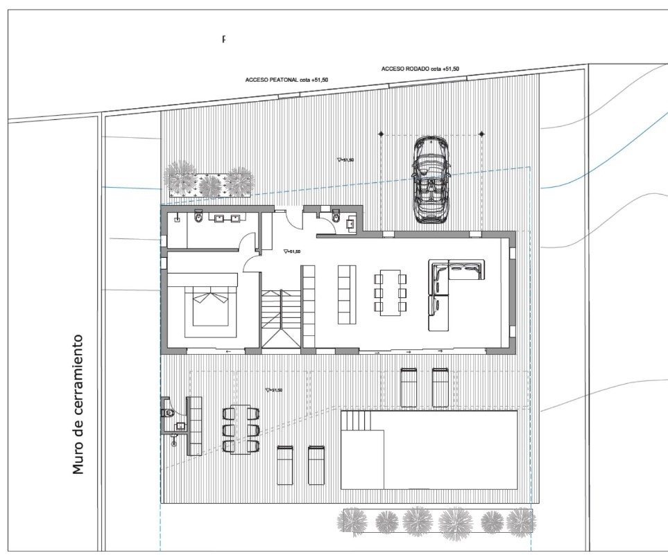
Exklusive, neu gebaute Villa in modernem Design, gelegen in einer der begehrtesten Wohngegenden zwischen Calpe und Moraira, nur 1,5 km vom Strand La Fustera entfernt und in der Nähe des Yachtclubs Les Basetes. Das Anwesen erstreckt sich über zwei Etagen mit geräumigen, funktionalen Räumen und hochwertiger Ausstattung. Es verfügt über 4 Schlafzimmer (zwei en suite), 3 Badezimmer, eine Gästetoilette, ein großes Wohn-Esszimmer mit einer voll ausgestatteten offenen Küche, eine Waschküche und einen spektakulären Spa-/Freizeitbereich mit Vorinstallation für einen Whirlpool, eine Bar, ein Kino und mehr. Der Außenbereich verfügt über einen beheizten Pool mit RGB-LED-Beleuchtung und automatischer Abdeckung, geräumige Terrassen und einen pflegeleichten Garten. Zur Premium-Ausstattung gehören Fußbodenheizung, Klimaanlage mit Raumreglern, thermisch getrennte Aluminiumrahmen, Low-E-Glas, Photovoltaikanlagen, ein vorinstalliertes Alarmsystem, LED-Beleuchtung, gefütterte Kleiderschränke, motorisierte Jalousien und mehr. Eine unschlagbare Lage, in der Nähe von Annehmlichkeiten, bezaubernden Buchten und nur wenige Minuten von Calpe, Moraira, Golfplätzen und Wassersportmöglichkeiten entfernt. Eine Villa, die entworfen wurde, um den mediterranen Lebensstil in Luxus und Komfort zu genießen.
- Solarium
Haustyp: Villa
Etagenanzahl: 2
Anzahl Schlafzimmer: 4
Anzahl Badezimmer: 3
Terrasse: 1
Pool: ja
Keller: Abstellraum
Klimaanlage: ja
Alarmanlage: ja
Anzahl der Parkflächen: 1 x Garage
Baujahr: 2025
Das könnte Ihnen auch gefallen
Benissa









































































