Alcalali:
4520ALC Schöne mediterrane Villa im Bau in Alcalali
Objekt-Nr.: FVH-4520ALC






























Preis:
945.000 €
Wohnfläche ca.:
303 m²
Grundstück ca.:
600 m²
Zimmeranzahl:
5
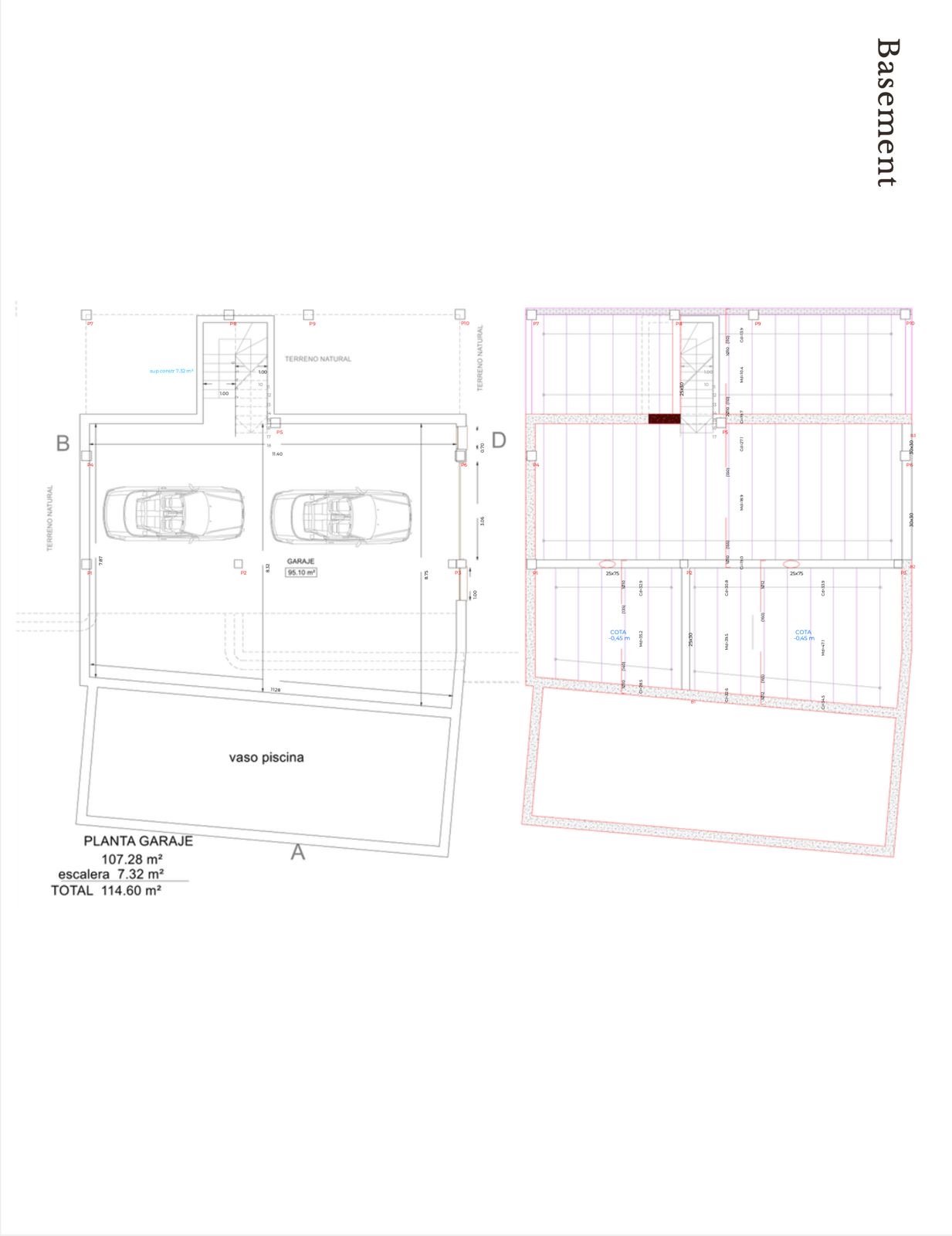
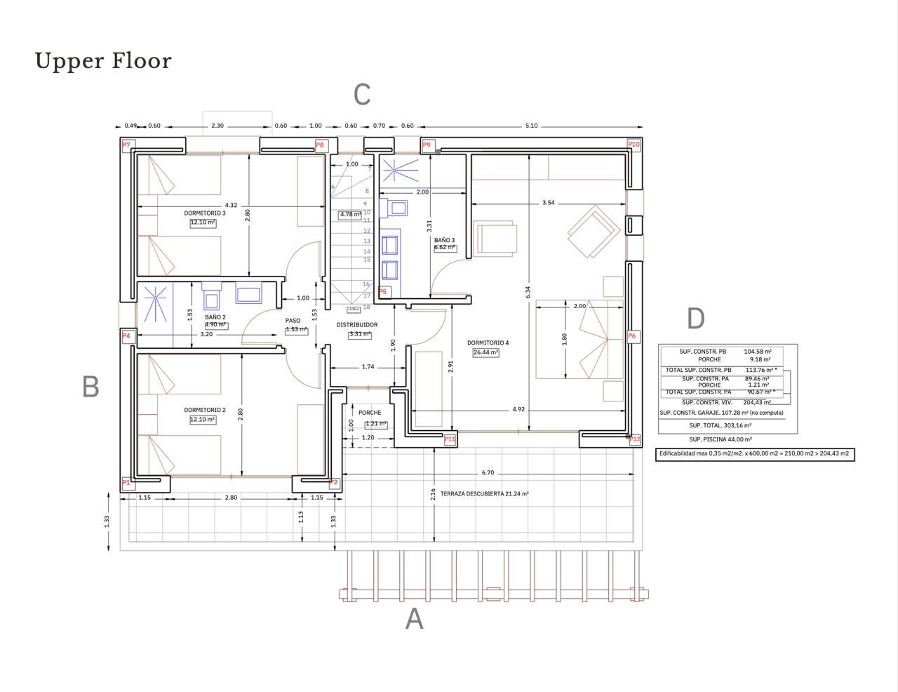
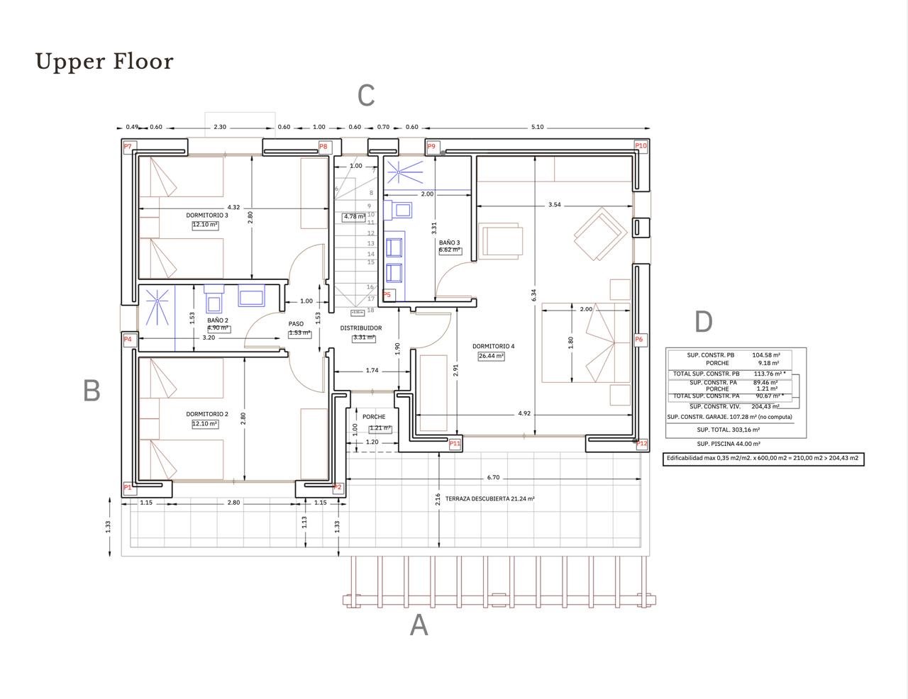
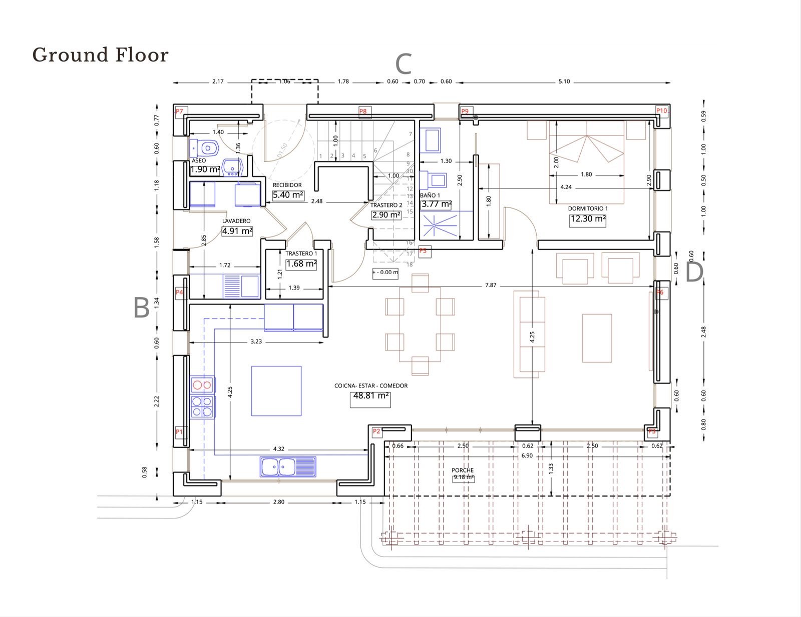
Diese schöne mediterrane Villa ist auf einem Grundstück von 600 m2 gebaut, nur wenige Gehminuten von dem attraktiven Dorf Alcalalí. Die Villa ist über zwei Etagen verteilt und hat eine weitere sehr geräumige Garage im Untergeschoss. Das Erdgeschoss besteht aus einem geräumigen Wohn-Esszimmer mit offener Küche, einem Doppelschlafzimmer mit Bad en suite, einem Gäste-WC, einer Waschküche und zwei Abstellräumen. Das Obergeschoss besteht aus einem sehr geräumigen Hauptschlafzimmer mit eigenem Bad und zwei Doppelschlafzimmern, die sich ein Bad teilen. Zwei der drei Schlafzimmer haben Zugang zu einer großen Terrasse. Im Außenbereich befindet sich eine Terrasse mit einem 4 x 11 m großen Swimmingpool, der von einem schönen mediterranen Garten umgeben ist. Im Untergeschoss befindet sich eine Garage mit Platz für mehrere Autos. Die Villa ist klimatisiert und optional kann eine Fußbodenheizung installiert werden.…
Da sich die Villa noch im Bau befindet, besteht die Möglichkeit, sie nach eigenen Wünschen zu gestalten.
Alcalalí ist ein kleines und ruhiges Dorf im Jalontal. Dieses schöne grüne Tal ist bekannt für seine Weinberge, Oliven-, Zitrus- und Mandelbäume und ist von beeindruckenden Bergketten umgeben. Die Lage ist sehr zentral; innerhalb von 25 Minuten erreichen Sie sowohl die Strände von Calpe im Süden als auch Els Poblets im Norden. Außerdem sind die Küstenstädte Denia, der beliebte Ferienort Jávea und das touristische Fischerdorf Moraira nur eine halbe Stunde mit dem Auto entfernt. Ergreifen Sie diese Gelegenheit und verwirklichen Sie Ihren Traum vom Luxusleben im Herzen der Costa Blanca!
Haustyp: Villa
Etagenanzahl: 2
Anzahl Schlafzimmer: 4
Anzahl Badezimmer: 3
Pool: ja
Klimaanlage: ja
Anzahl der Parkflächen: 1 x Garage
Baujahr: 2025
Das könnte Ihnen auch gefallen
Alcalali

























































































