Calpe:
4553CAL Moderne Erdgeschossvilla im Wohngebiet Pla Roig, Calpe
Objekt-Nr.: FVH-4553CAL












Preis:
1.190.000 €
Wohnfläche ca.:
225 m²
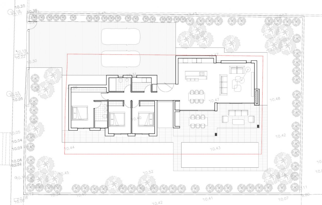
Grundstück ca.:
742 m²
Zimmeranzahl:
4
Diese Villa befindet sich auf einem 742 m2 großen, flachen Grundstück in der ruhigen Urbanisation Pla Roig und bietet die perfekte Balance zwischen Privatsphäre und der Nähe zu allen Annehmlichkeiten. Die Umgebung ist dank des flachen Geländes und der günstigen Lage eine der beliebtesten Wohngegenden sowohl bei internationalen Einwohnern als auch bei
Einheimischen: Supermärkte,
Restaurants, der Strand und das charmante Zentrum von Calpe sind zu Fuß erreichbar.
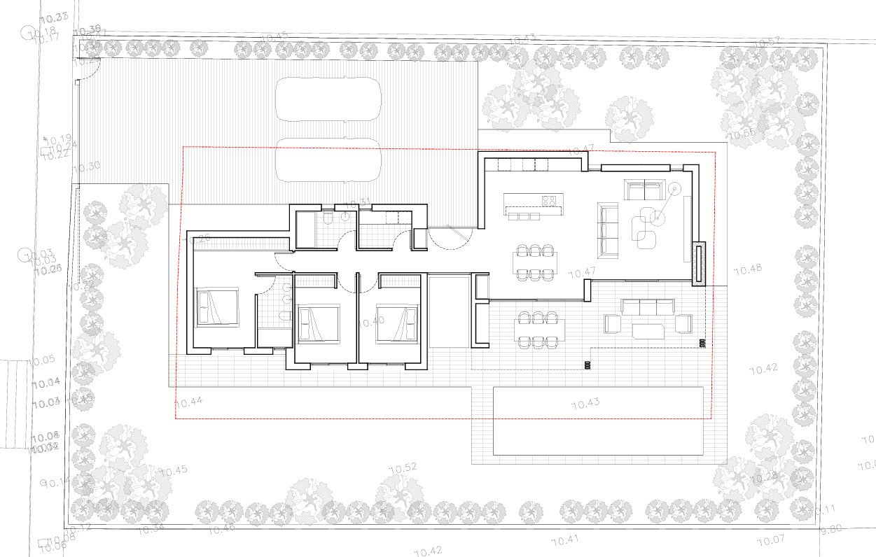
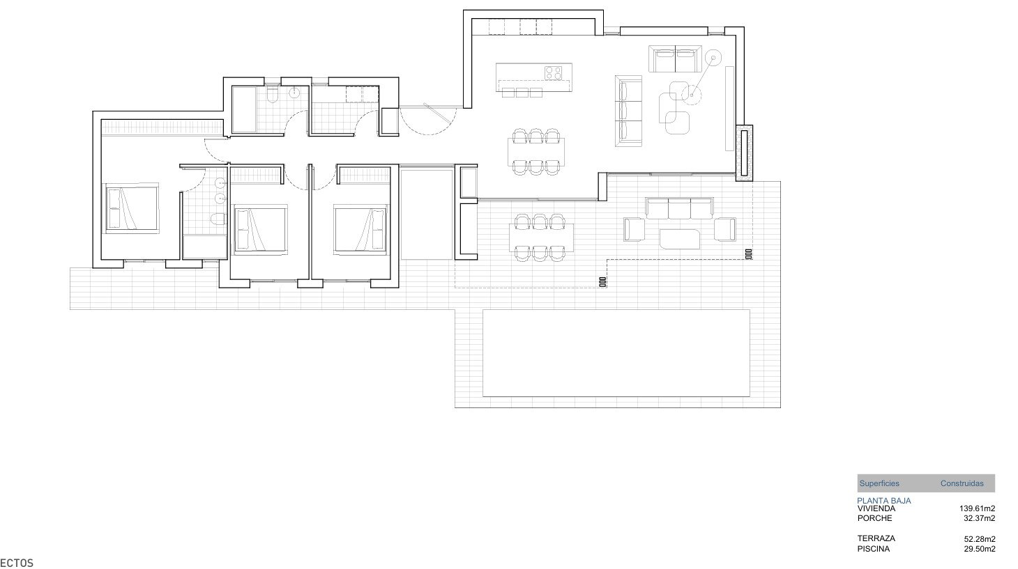
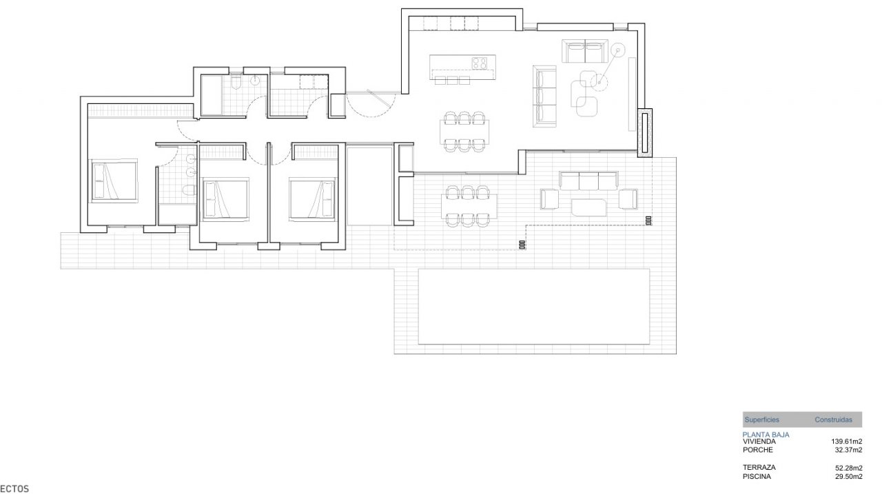
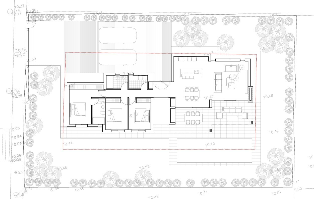
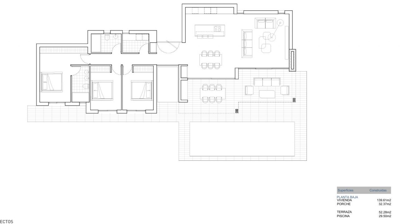
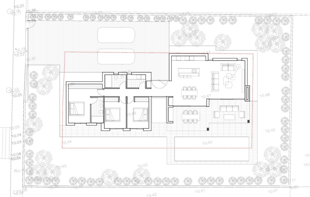
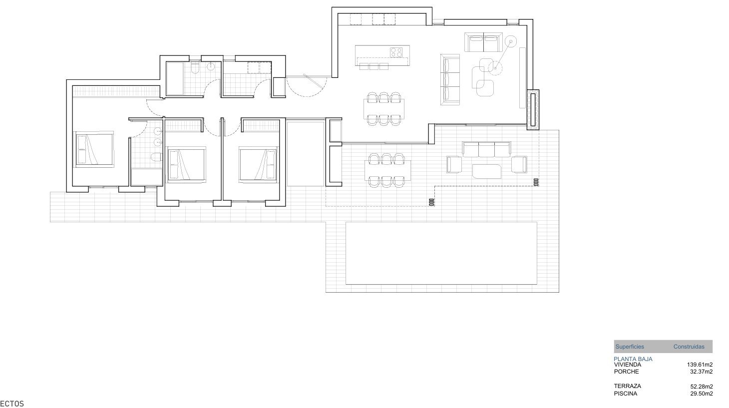
Diese ebenerdige Villa wurde für komfortables, bequemes Wohnen und einen nahtlosen Übergang zwischen Innen- und Außenbereich konzipiert. Mit einer Gesamtwohnfläche von 139,61 m2 verfügt das Haus über ein geräumiges Wohn-Esszimmer mit offener Küche, drei Doppelschlafzimmer und zwei Badezimmer (eines davon en-suite im Hauptschlafzimmer). Die großen Fenster und der direkte Zugang zur Terrasse sorgen für viel Tageslicht.
Der Außenbereich ist ideal, um das ganze Jahr über das mediterrane Klima zu genießen. Er umfasst eine überdachte
Veranda von 32,37 m2, eine offene Terrasse von 52,28 m2 und einen privaten Pool von 29,50 m2. Die Villa ist von einem pflegeleichten Garten umgeben und bietet Parkmöglichkeiten auf dem Grundstück.
Dieses Projekt bietet eine einzigartige Gelegenheit, eine moderne Villa in einer der schönsten Gegenden von Calpe zu genießen.
- Doppelverglasung
Haustyp: Villa
Etagenanzahl: 1
Anzahl Schlafzimmer: 3
Anzahl Badezimmer: 2
Pool: ja
Das könnte Ihnen auch gefallen
Calpe



































































































































































