Calpe:
4570CAL Moderne Neubauvilla 500 m vom Strand entfernt, zu verkaufen in Calpe
Objekt-Nr.: FVH-4570CAL
























































Preis:
1.099.000 €
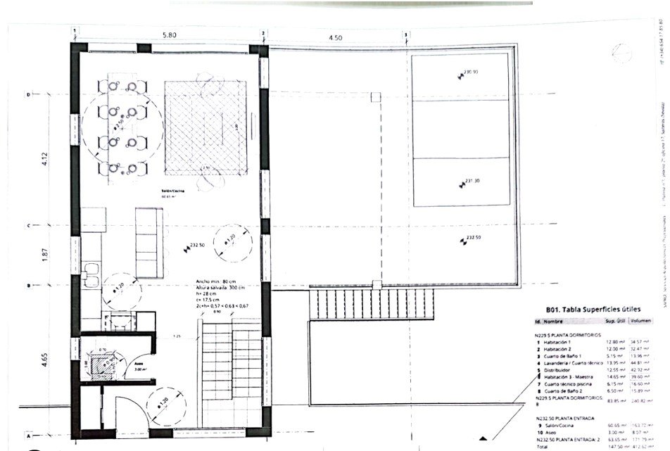
Wohnfläche ca.:
273 m²
Grundstück ca.:
1.179 m²
Zimmeranzahl:
4
Luxuriöse Neubauvilla 500 m vom Strand in Calpe entfernt.
Diese geräumige, moderne Villa wird auf einem flachen Grundstück in der ruhigen Urbanisation Partida La Merced in Gehweite zum Strand und zum Zentrum von Calpe gebaut und soll Ende 2025 fertiggestellt werden (vorbehaltlich).
Die Villa erstreckt sich über zwei Etagen. Das Erdgeschoss besteht aus einem geräumigen Wohn-Esszimmer mit angrenzender offener Küche, die komplett mit Bosch-Geräten und einer Kochinsel ausgestattet ist. Neben dem Wohnzimmer befindet sich ein Doppelzimmer mit eigenem Bad. Für zusätzlichen Komfort sorgt eine Gästetoilette. Das Obergeschoss besteht aus zwei geräumigen Schlafzimmern, beide mit eigenem Bad und einer privaten Terrasse. Das Hauptschlafzimmer verfügt außerdem über einen geräumigen Ankleideraum.
Darüber hinaus verfügt die Villa über eine Garage im Untergeschoss mit direktem Zugang zum Wohnzimmer.…
Die Villa ist mit einer kanalisierten Klimaanlage, Fußbodenheizung und Warmwasser über ein aerothermisches System ausgestattet und hat die Energieeffizienzklasse A.
Im Außenbereich gibt es eine Terrasse mit einem 4 x 10 m großen Swimmingpool. Um die Villa herum wird ein schöner mediterraner Garten mit Zypressen angelegt, um Privatsphäre zu schaffen. Darüber hinaus verfügt die Villa über einen großen flachen Garten auf der Südseite und einen großen flachen Garten auf der Nordseite, ideal für Familien mit Kindern.
Die Villa bietet von allen Zimmern aus einen schönen Blick auf den Peñon de Ifach und ist ein idealer Standort für diejenigen, die gerne ruhig wohnen und alle Einrichtungen zu Fuß erreichen möchten.
Weitere Informationen auf Anfrage.
- Doppelverglasung
Haustyp: Villa
Etagenanzahl: 2
Anzahl Schlafzimmer: 3
Anzahl Badezimmer: 3
Pool: ja
Anzahl der Parkflächen: 1 x Garage
Baujahr: 2025
Das könnte Ihnen auch gefallen
Calpe







































































































