Javea:
C4XY4572JAV Neubauwohnungen im Bau zum Verkauf in Jávea
Objekt-Nr.: FVH-C4XY4572JAV


































Preis:
428.000 €
Wohnfläche ca.:
125 m²
Zimmeranzahl:
4
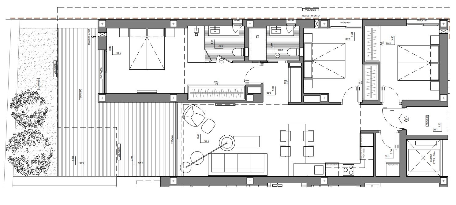
Apartmentkomplex im Bau in Jávea
Dieses kleine Projekt mit nur 9 Apartments wird derzeit in einer Top-Lage für diejenigen gebaut, die gerne in Gehweite zu allen Annehmlichkeiten wohnen möchten. Das Gebäude liegt am Rande des historischen Zentrums von Jávea, nur 1 km vom Strand und dem Hafen entfernt.
Es sind noch 6 Wohnungen verfügbar: drei Wohnungen mit privatem Garten und drei Wohnungen im ersten Stock.
Alle Wohnungen verfügen über eine Eingangshalle, ein geräumiges Wohn-Esszimmer mit offener Küche und Kochinsel, eine Waschküche, drei Doppelschlafzimmer und zwei Badezimmer.
Die Wohnungen im ersten Stock haben zusätzlich drei bis vier Terrassen.
Die Anlage verfügt über einen Gemeinschaftspool mit Liegefläche.
Optional kann ein Parkplatz in der Tiefgarage für 12.000 € und ein Abstellraum für 5.000 € erworben werden.
Die Fertigstellung ist für Sommer 2026 vorgesehen (unter Vorbehalt).
Seien Sie schnell, denn die Verfügbarkeit ist begrenzt und die Preise sind Richtwerte und können sich ändern. Weitere Informationen auf Anfrage.
- Doppelverglasung
Wohnungstyp: Apartment
Etagenanzahl: 1
Anzahl Schlafzimmer: 3
Anzahl Badezimmer: 2
Pool: ja
Baujahr: 2025
Das könnte Ihnen auch gefallen
Javea








































































