Benissa:
4573BEN Luxusvilla im Bau zu verkaufen in Benissa Costa
Objekt-Nr.: FVH-4573BEN
































Preis:
1.890.000 €
Grundstück ca.:
1.021 m²
Zimmeranzahl:
4
In der ruhigen Gegend von San Jaime in Benissa befindet sich dieses wunderschöne Projekt: eine Kombination aus Luxus und atemberaubendem Meerblick.
Diese Immobilie liegt in einer ruhigen Sackgasse, sodass die Bewohner ihre Privatsphäre inmitten einer idyllischen Umgebung genießen können. Die charismatische Umgebung bietet nicht nur eine schöne Aussicht, sondern auch die Nähe zu wichtigen Einrichtungen und Freizeitmöglichkeiten. Der renommierte Golfplatz San Jaime ist nur einen Steinwurf entfernt, perfekt für Liebhaber dieses Sports, während der bekannte Supermarkt Pepe La Sal Sie mit dem Nötigsten für den täglichen Bedarf versorgt, sodass der Komfort des Alltags nie weit entfernt ist.
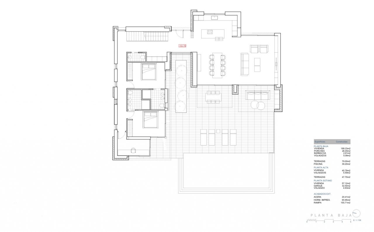
Die Villa besteht aus drei sorgfältig gestalteten Etagen, wobei jede Etage Funktionalität und ästhetische Anziehungskraft harmonisch miteinander verbindet:…
Eingangsbereich: Beim Betreten werden Sie von einem Bereich mit Garage, Waschküche und Technikraum empfangen. Dieser Raum wurde sorgfältig gestaltet und sorgt dafür, dass praktische Aspekte des Wohnens nahtlos integriert sind, ohne den Stil zu beeinträchtigen.
Hauptetage: Wenn Sie weiter zum Hauptwohnbereich gehen, sind Sie von Eleganz und Komfort umgeben. Das offene Wohnzimmer, das Esszimmer und die Küche strahlen eine einladende Atmosphäre aus, ideal für Familienfeiern oder zum Empfang von Gästen. Auf dieser Etage befinden sich zwei geräumige Schlafzimmer mit eigenem Bad.
Außenbereiche: Im Außenbereich laden die Terrasse und der Pool zur Entspannung und Erholung in Ihrer eigenen Oase ein. Die Außenbereiche sind so gestaltet, dass sie eine nahtlose Integration zwischen Innen- und Außenbereich schaffen, mit Bereichen zum Essen, Entspannen und Genießen des milden spanischen Klimas.
Obergeschoss: Das Obergeschoss ist für das erhabene Hauptschlafzimmer reserviert, das über ein eigenes Badezimmer und Zugang zu einer großzügigen Außenterrasse verfügt. Diese private Oase lädt Sie ein, zahlreiche Sonnenauf- und -untergänge zu genießen und bietet Ihnen täglich ein Spektakel der Schönheit der Natur vom Komfort Ihres eigenen Zuhauses aus.
Dieses einzigartige Anwesen verbindet eine moderne Architekturphilosophie mit dem zeitlosen Charme der Umgebung und bietet ein unvergleichliches Wohnerlebnis in San Jaime, Benissa. Dieses Anwesen bietet Ruhe, Luxus und Komfort und ist nicht nur ein Haus, sondern ein Zuhause, in dem jedes Detail ein Statement für Qualität und Raffinesse ist.
- Doppelverglasung
Haustyp: Villa
Etagenanzahl: 3
Anzahl Schlafzimmer: 3
Anzahl Badezimmer: 4
Pool: ja
Anzahl der Parkflächen: 1 x Garage
Baujahr: 2025
Das könnte Ihnen auch gefallen
Benissa






































































