Benitachell:
4585BELL Moderne Villa im Bau in Raco de Nadal, Benitachell
Objekt-Nr.: FVH-4585BELL






























Preis:
895.000 €
Wohnfläche ca.:
206 m²
Grundstück ca.:
689 m²
Zimmeranzahl:
4
Moderne Neubauvilla im Bau zu verkaufen in Racó de Nadal, Benitachell
Diese moderne Villa befindet sich in der ruhigen und modernen Wohngegend Racó de Nadal, nur 2 km vom Zentrum von Benitachell und etwa 6 km von den lebhaften Küstenorten Jávea und Moraira entfernt.
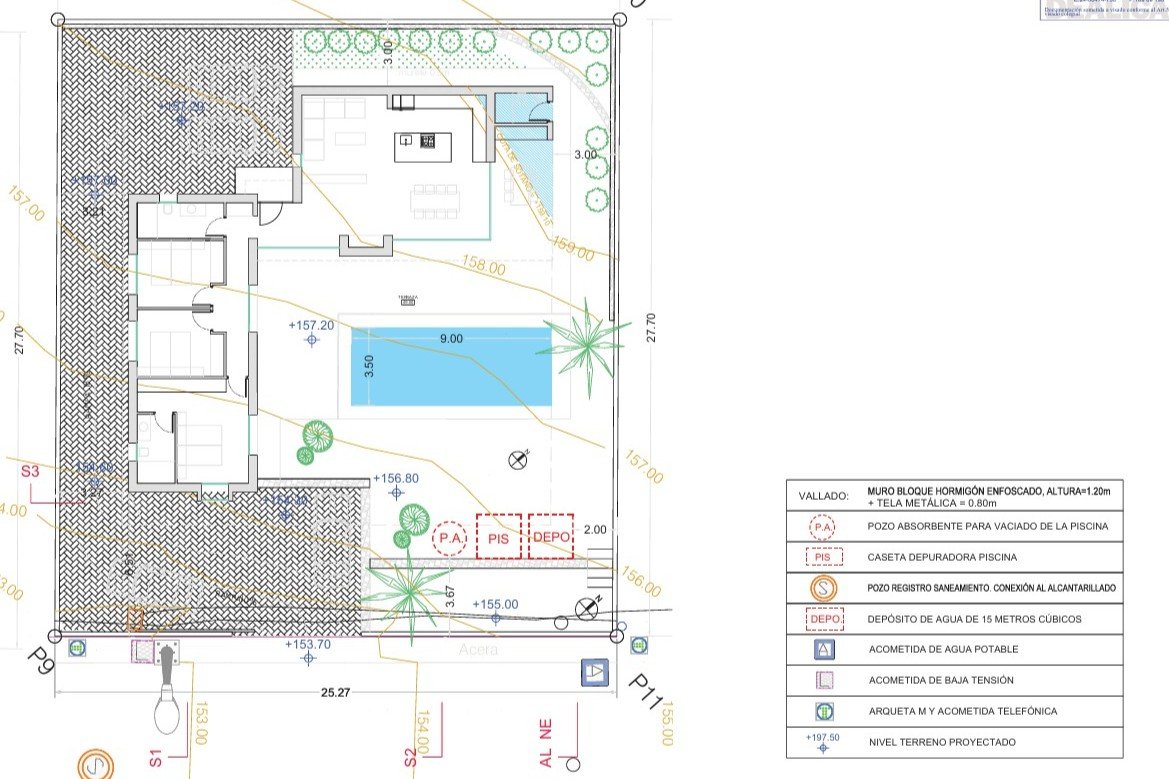
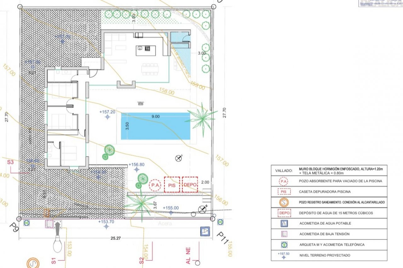
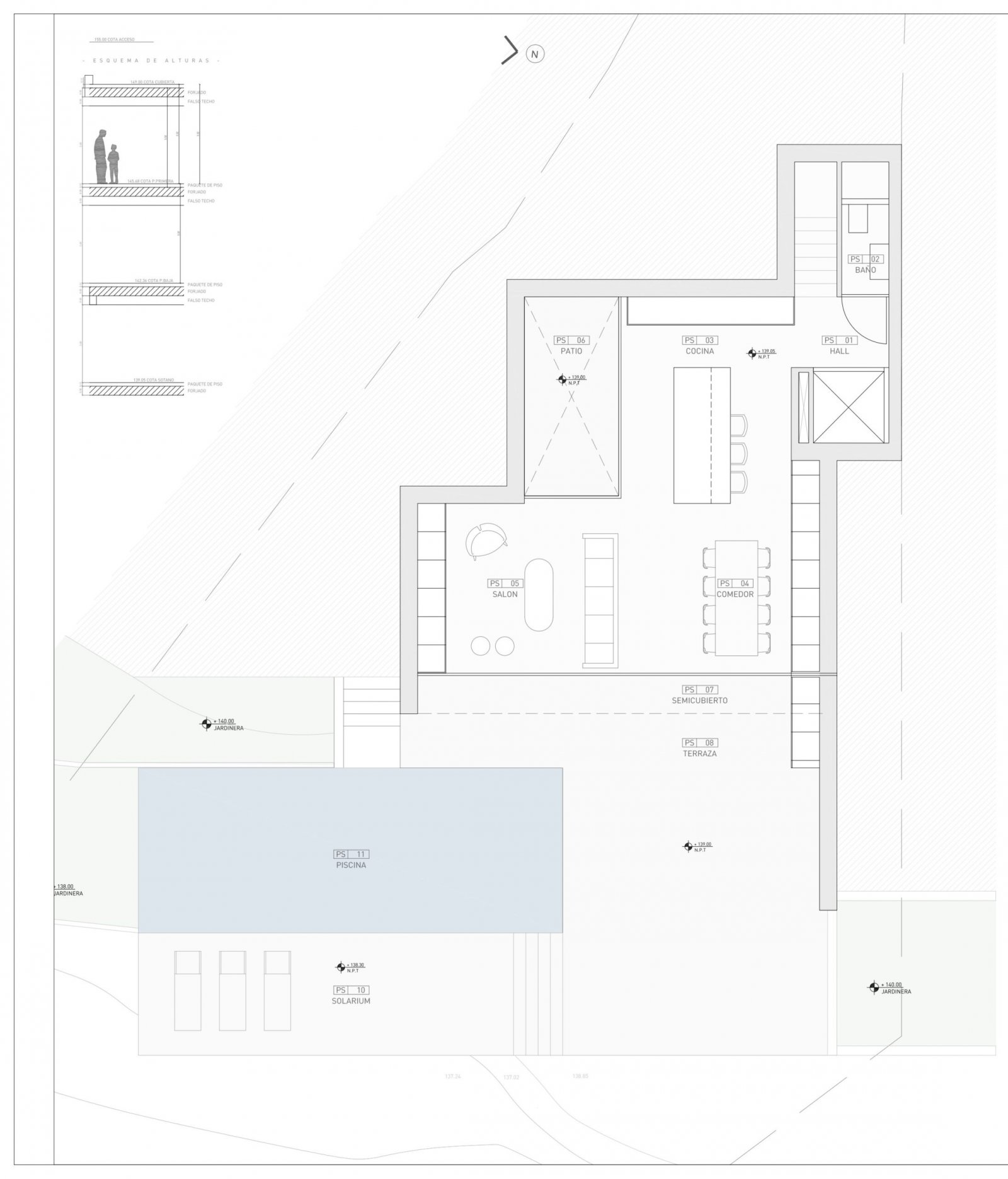
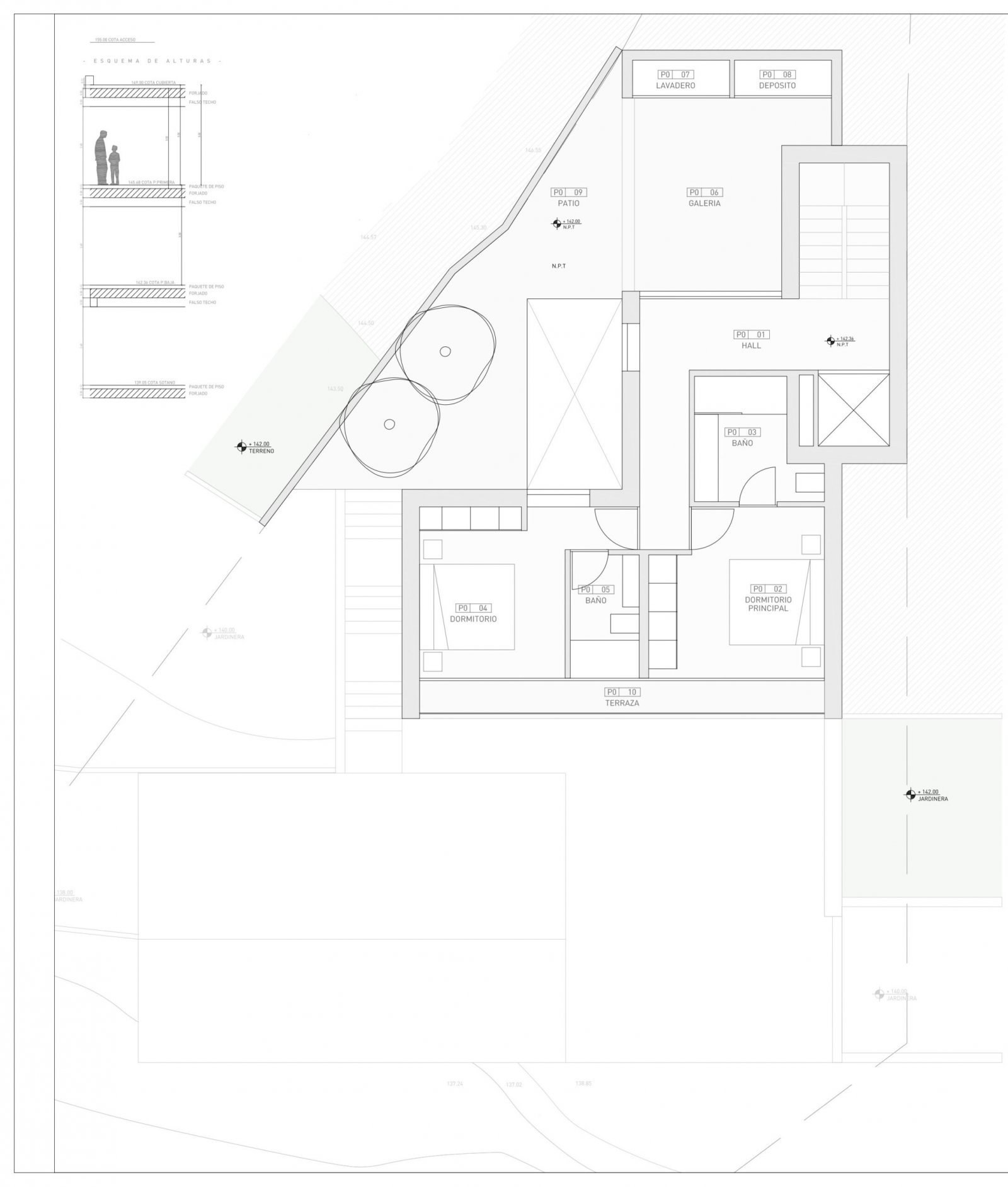
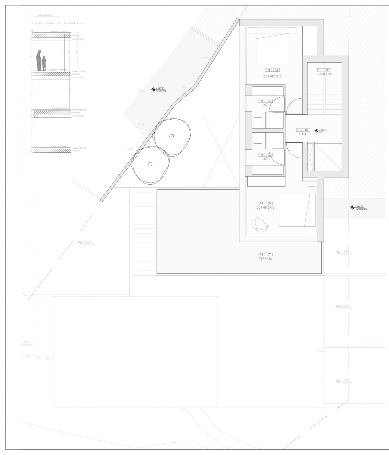
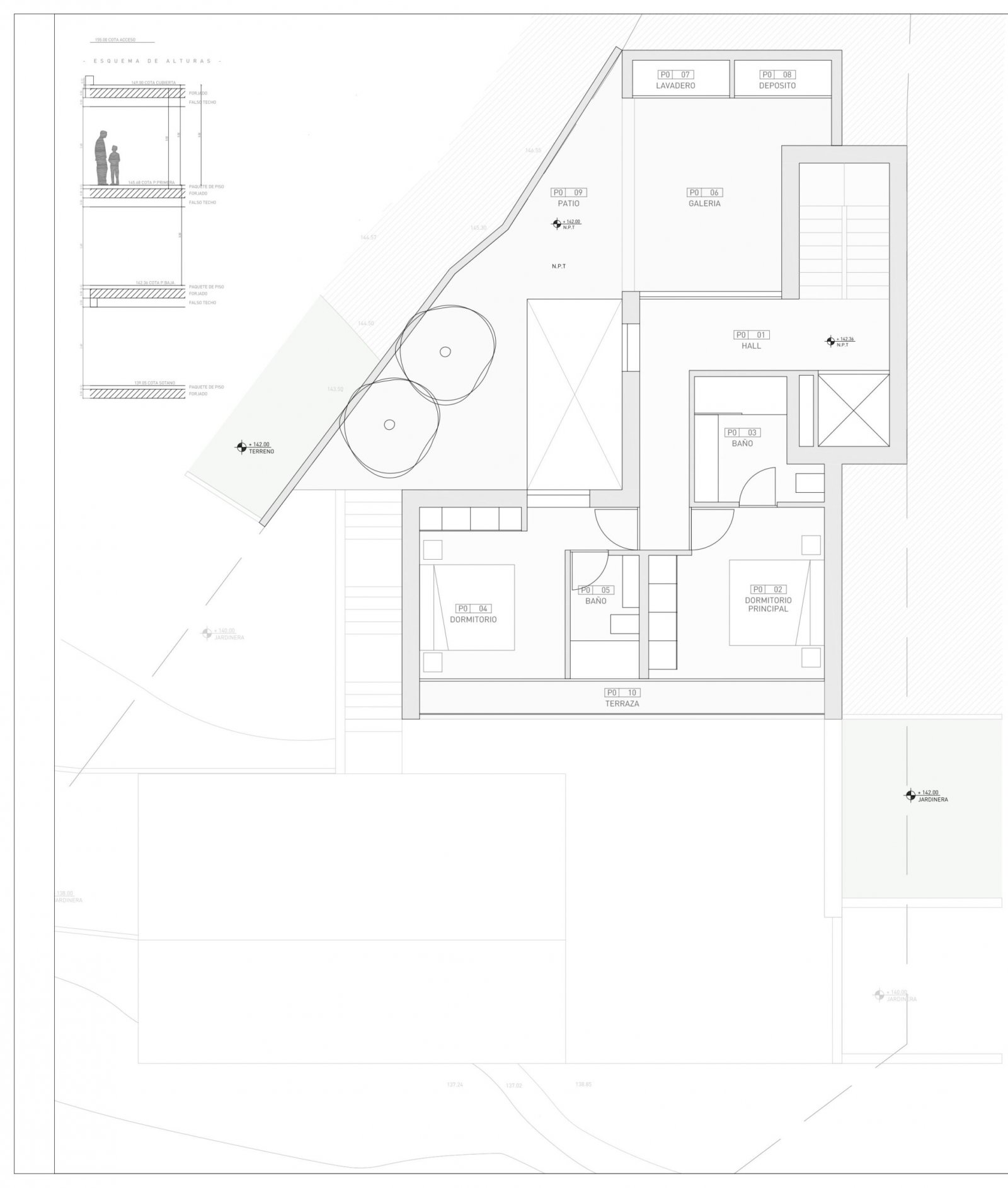
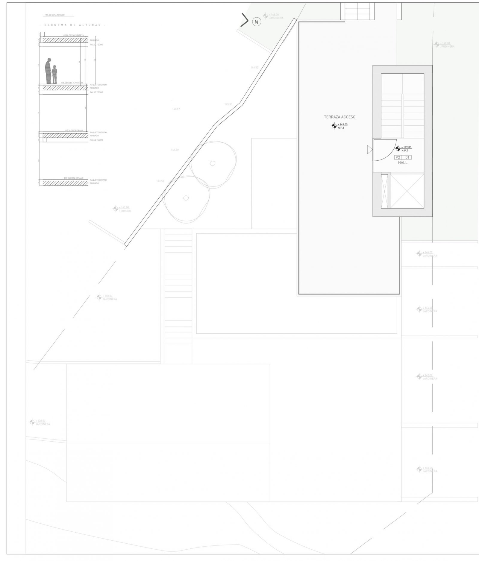
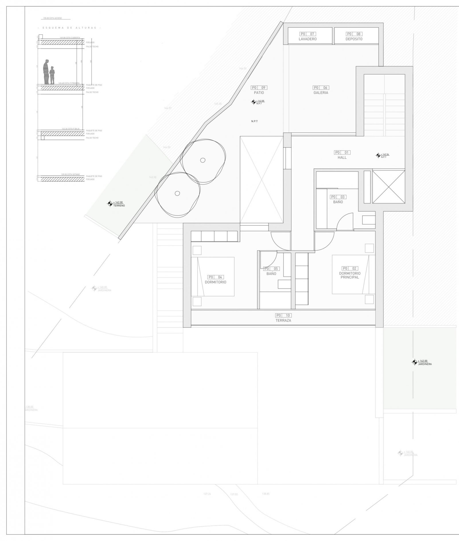
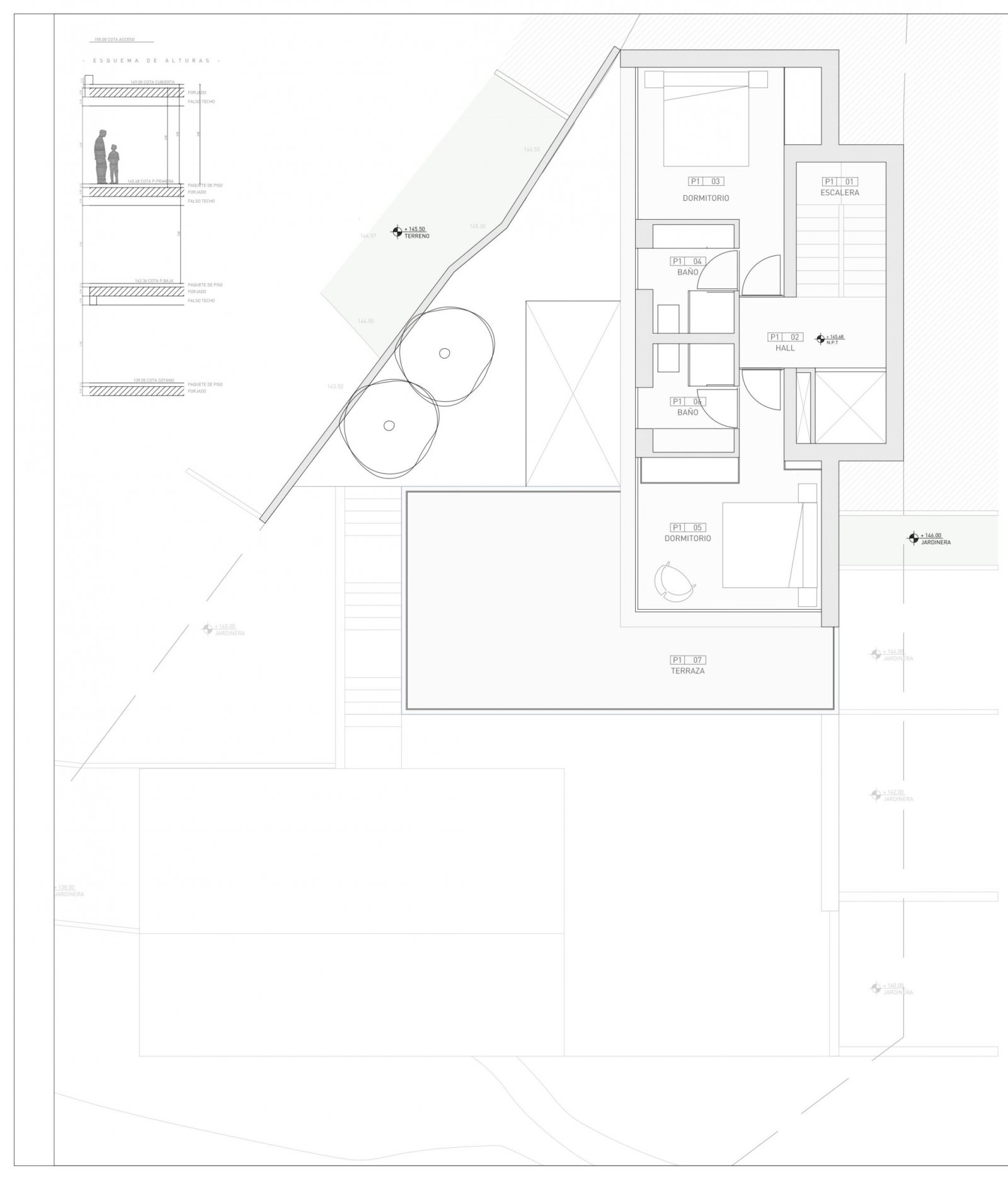
Die Villa ist nach Süden ausgerichtet und erstreckt sich über eine Etage, zusätzlich gibt es ein Halbkellergeschoss, in dem sich eine geräumige Garage mit Platz für zwei Autos befindet. Für zusätzlichen Komfort gibt es auch Parkplätze in der Nähe des Wohnbereichs.
Im Inneren bietet das Haus einen hellen und offenen Wohnbereich mit Sitz- und Essbereich und einer offenen Küche mit Kochinsel. Darüber hinaus gibt es ein Hauptschlafzimmer mit eigenem Bad und zwei Doppelschlafzimmer, die sich ein zweites Badezimmer teilen. Für optimalen Wohnkomfort ist die Villa mit Fußbodenheizung und kanalisierter Klimaanlage sowie Einbauschränken, elektrischen Rollläden und Sonnenkollektoren zur Warmwasserbereitung ausgestattet.…
Im Außenbereich finden Sie eine überdachte Terrasse mit Grill, einen 3,5 x 9 Meter großen Pool mit Sonnenterrasse und ein Außenbadezimmer. Das Haus ist von einem pflegeleichten mediterranen Garten umgeben.
Die Urbanisation Racó de Nadal ist bekannt für ihre moderne Infrastruktur, unterirdische Versorgungsleitungen und den herrlichen Blick auf die Berge und die umliegende Natur. Die Umgebung ist ruhig und wohnlich, mit freistehenden Villen und Doppelhaushälften. Alle Annehmlichkeiten von Benitachell, Jávea und Moraira sind in wenigen Minuten erreichbar.
- Doppelverglasung
Haustyp: Villa
Etagenanzahl: 1
Anzahl Schlafzimmer: 3
Anzahl Badezimmer: 3
Pool: ja
Anzahl der Parkflächen: 1 x Garage
Baujahr: 2025
Das könnte Ihnen auch gefallen
Benitachell






















































































