Alcalali:
4313ALC Moderne Villa im Bau zum Verkauf in Alcalali
Objekt-Nr.: FVH-4313ALC
































Preis:
640.000 €
Wohnfläche ca.:
133 m²
Grundstück ca.:
300 m²
Zimmeranzahl:
4
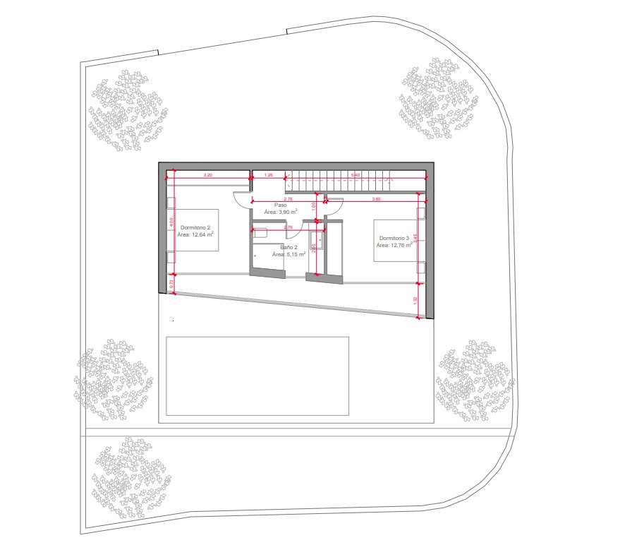
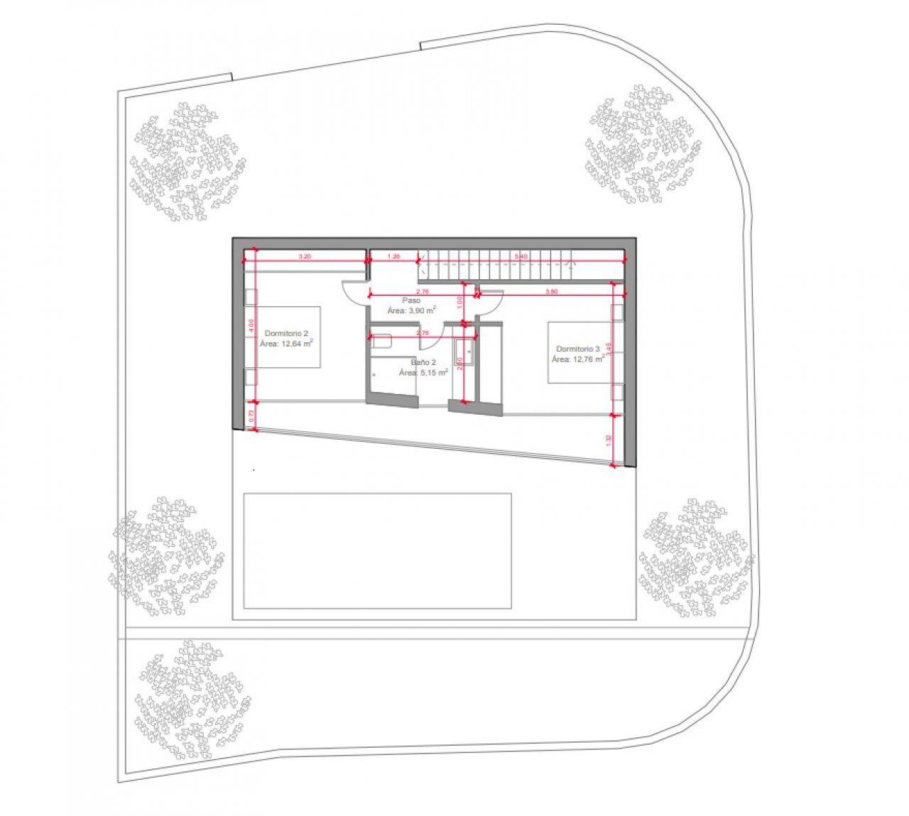
Diese Villa wird auf einem Grundstück im ruhigen Viertel La Solana Gardens gebaut, nur wenige Gehminuten vom malerischen Dorf Alcalali entfernt. Alcalali ist ein kleines, authentisches Dorf im sonnigen Tal Valle de Pop, umgeben von majestätischen Bergketten und dennoch in Küstennähe. Die Villa erstreckt sich über drei Etagen. Das Erdgeschoss besteht aus einem Wohn-Esszimmer mit offener Küche, einem Doppelzimmer und einem Badezimmer. Das Obergeschoss besteht aus zwei Doppelschlafzimmern mit einem gemeinsamen Badezimmer. Im Untergeschoss befindet sich eine 80 m² große Garage. Im Preis inbegriffen sind auch ein Swimmingpool und eine 30 m² große Terrasse. Alcalalí liegt sehr zentral, nur 20 Minuten von den Stränden von Denia und Calpe entfernt. Die charmanten Küstendörfer Javea und Moraira sind ebenfalls nur eine halbe Stunde entfernt. Andere Dörfer im Tal, wie Jalón, Parcent und Lliber, sind nur 5 Minuten entfernt. Alcalalí ist ideal zum Wandern und Radfahren zwischen Olivenbäumen, Orangenbäumen, Mandelbäumen und Weinbergen. Darüber hinaus gibt es mehrere schöne Wanderwege in den umliegenden Gebirgszügen.
Haustyp: Villa
Etagenanzahl: 2
Anzahl Schlafzimmer: 3
Anzahl Badezimmer: 2
Pool: ja
Baujahr: 2024
Das könnte Ihnen auch gefallen










































































































