Alcalali:
4599ALC Villenprojekt im ibizenkischen Stil mit Lizenz zum Verkauf in Alcalalí,
Objekt-Nr.: FVH-4599ALC




























Preis:
765.000 €
Wohnfläche ca.:
419 m²
Grundstück ca.:
1.021 m²
Zimmeranzahl:
4
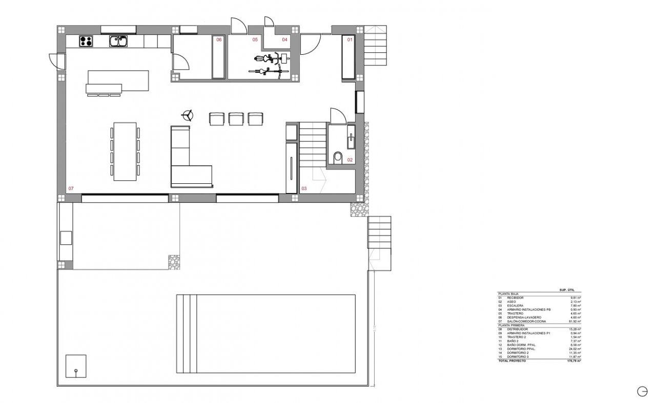
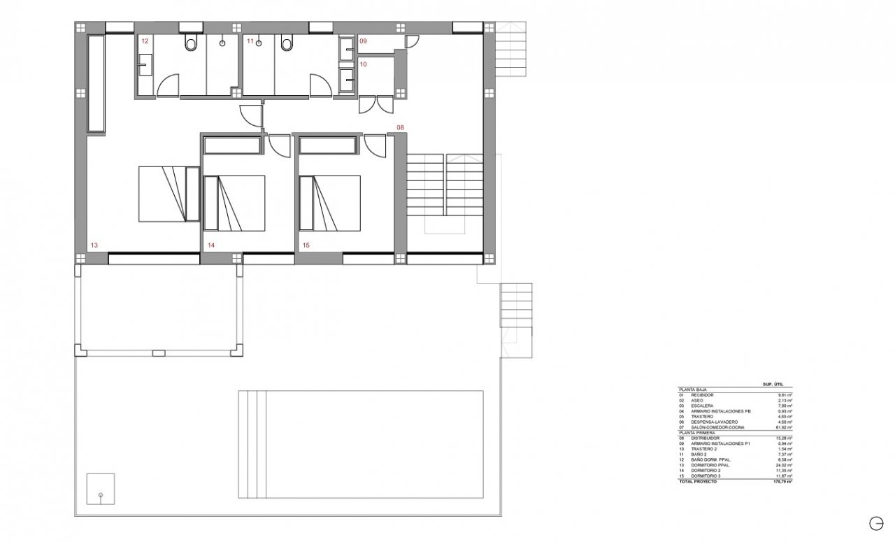
Dieses Neubauprojekt mit erteilter Baugenehmigung befindet sich im idyllischen Dorf Alcalalí. Mit einer geplanten bebauten Fläche von 211 m2 auf einem großzügigen Grundstück von 1.021 m2 bietet dieses Projekt die Möglichkeit, eine wunderschöne Villa im Ibiza-Stil in der ruhigen, natürlichen Umgebung des Jalón-Tals zu bauen.
Das Projekt sieht eine Villa vor, die über zwei Etagen realisiert werden soll. Im Erdgeschoss ist ein geräumiges Wohn-Esszimmer mit einer offenen Küche mit Kochinsel geplant, ergänzt durch eine Speisekammer, einen Abstellraum und eine Gästetoilette. Das Obergeschoss ist mit drei komfortablen Schlafzimmern und zwei stilvoll gestalteten Badezimmern ausgestattet, die Funktionalität und Ästhetik vereinen, darunter ein Badezimmer en suite. Die Aufteilung des Projekts wurde sorgfältig ausgearbeitet, um eine optimale Raumnutzung zu gewährleisten und einen natürlichen Fluss zwischen den verschiedenen Wohnbereichen zu schaffen.…
Darüber hinaus wurde der private Garten so gestaltet, dass Sie die frische Luft und die Natur in völliger Privatsphäre genießen können, ebenso wie zwei Terrassen, auf denen Sie das ganze Jahr über das mediterrane Klima genießen können.
Außerdem gibt es einen 8 x 4 Meter großen Swimmingpool, ideal zur Erfrischung in den heißen Sommermonaten. Die Außenbereiche werden sowohl aus einer offenen Terrasse als auch aus einer überdachten Terrasse bestehen, sodass Sie immer zwischen Sonne und Schatten wählen können. Das Grundstück wird vollständig umzäunt sein, was für Sicherheit und Seelenfrieden sorgt, während die gute Anbindung an nahegelegene Hauptverkehrsstraßen eine reibungslose Erreichbarkeit lokaler Einrichtungen und Sehenswürdigkeiten garantiert.
Die Villa wird mit einer Klimaanlage zum Heizen und Kühlen über Luftkanäle ausgestattet sein, wodurch in jedem Raum unabhängig von der Jahreszeit ein angenehmes Raumklima geschaffen wird. Doppelverglasung, automatische Rollläden in den Schlafzimmern und die vorgesehenen Parkmöglichkeiten und Stauräume tragen zu zusätzlichem Wohnkomfort bei.
Dieses Projekt steht nicht nur für die Realisierung eines Wohnhauses, sondern für einen Lebensstil, in dem Ruhe, Komfort und moderner Luxus im charmanten Alcalalí zusammenkommen. Mit seiner zeitgemäßen Architektur und durchdachten Ausstattung lädt dieses Projekt dazu ein, jeden Tag ein außergewöhnliches Wohnumfeld zu genießen, in dem die Zeit still zu stehen scheint.
- Doppelverglasung
Haustyp: Villa
Etagenanzahl: 2
Anzahl Schlafzimmer: 3
Anzahl Badezimmer: 2
Pool: ja
Das könnte Ihnen auch gefallen
8150PED Villa zum Verkauf in Pedreguer
Alcalali















































































































































