Moraira:
7105MOR | Villa im Ibiza-Stil mit Panoramablick in Moraira zu verkaufen
Objekt-Nr.: FVH-7105MOR
































Preis:
2.795.000 €
Wohnfläche ca.:
292 m²
Zimmeranzahl:
5
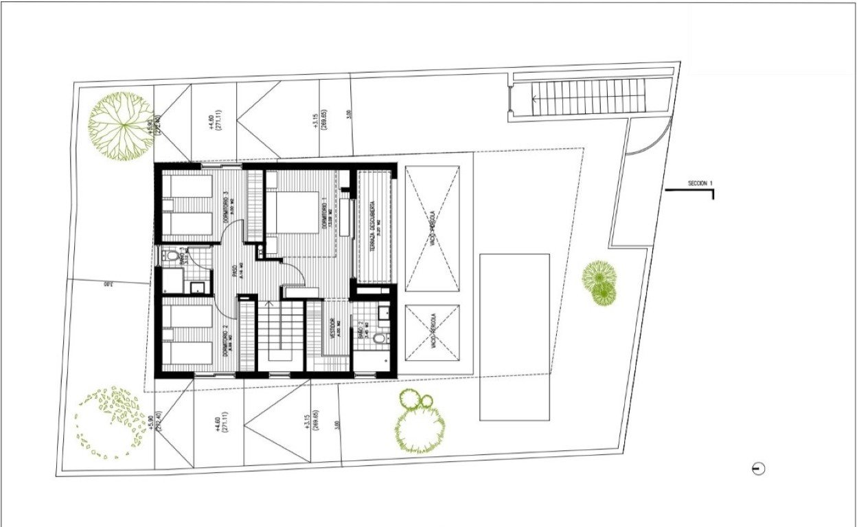
Dieses Ibiza-Stil Villenprojekt befindet sich in einer privilegierten Lage in Moraira und bietet einen Panoramablick sowie einen gehobenen mediterranen Lebensstil in einer der begehrtesten Gegenden der Costa Blanca.
Die Immobilie wird als Off-Plan-Projekt angeboten und umfasst die vollständige Renovierung einer bestehenden Villa. Das Design verbindet moderne Architektur mit dem zeitlosen Charakter von Häusern im Ibiza-Stil und schafft eine harmonische Balance zwischen modernem Komfort und natürlicher Eleganz.
Die Villa wird über vier Schlafzimmer verfügen, alle mit eigenem Bad en suite, sowie über ein Gäste-WC. Die Raumaufteilung wurde sorgfältig gestaltet, um sowohl Privatsphäre als auch Großzügigkeit zu gewährleisten, mit offenen Wohnbereichen, die nahtlos mit dem Außenbereich verbunden sind.
Große bodentiefe Fenster maximieren das natürliche Licht und rahmen den Panoramablick ein, wodurch ein helles und einladendes Raumgefühl im gesamten Haus entsteht.
Die Villa wird mit einer Klimaanlage über Luftkanäle sowie hochwertigen Technal-Fenstern ausgestattet, was Komfort, Effizienz und einen hohen Ausstattungsstandard gewährleistet.
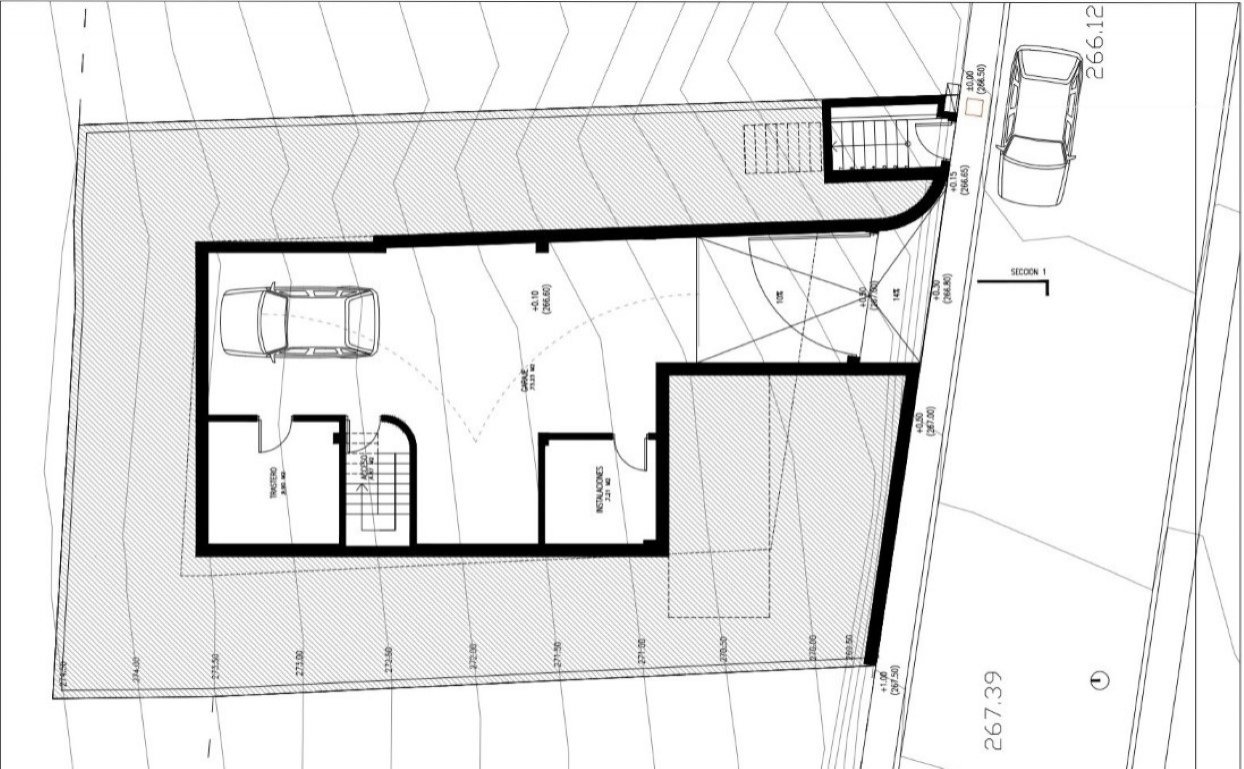
Im Außenbereich bietet die Immobilie mehrere Bereiche zum Genießen des mediterranen Klimas sowie private Außenstellplätze.
Mit einer geschätzten Fertigstellungszeit von etwa 12 Monaten stellt dieses Projekt eine hervorragende Gelegenheit dar, eine vollständig renovierte Luxusvilla in bester Lage in Moraira zu erwerben.
Haustyp: Villa
Etagenanzahl: 2
Anzahl Schlafzimmer: 4
Anzahl Badezimmer: 5
Terrasse: 1
Pool: ja
Baujahr: 2027
Das könnte Ihnen auch gefallen
Moraira























































