Javea:
6294JAV Moderne Neubauvilla zum Verkauf mit Meerblick in Javea
Objekt-Nr.: FVH-6294JAV




























Preis:
2.900.000 €
Wohnfläche ca.:
319 m²
Grundstück ca.:
1.003 m²
Zimmeranzahl:
5
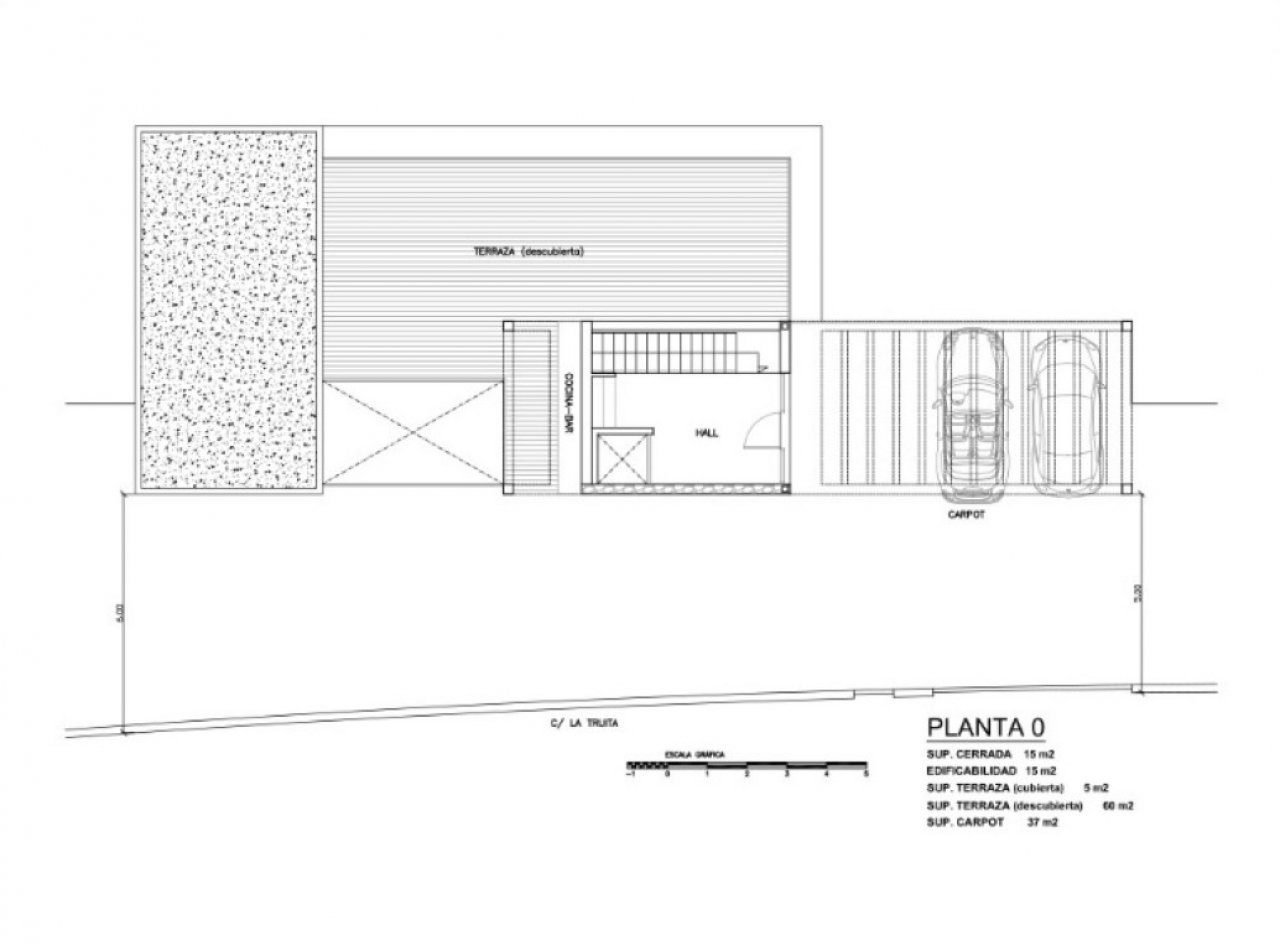
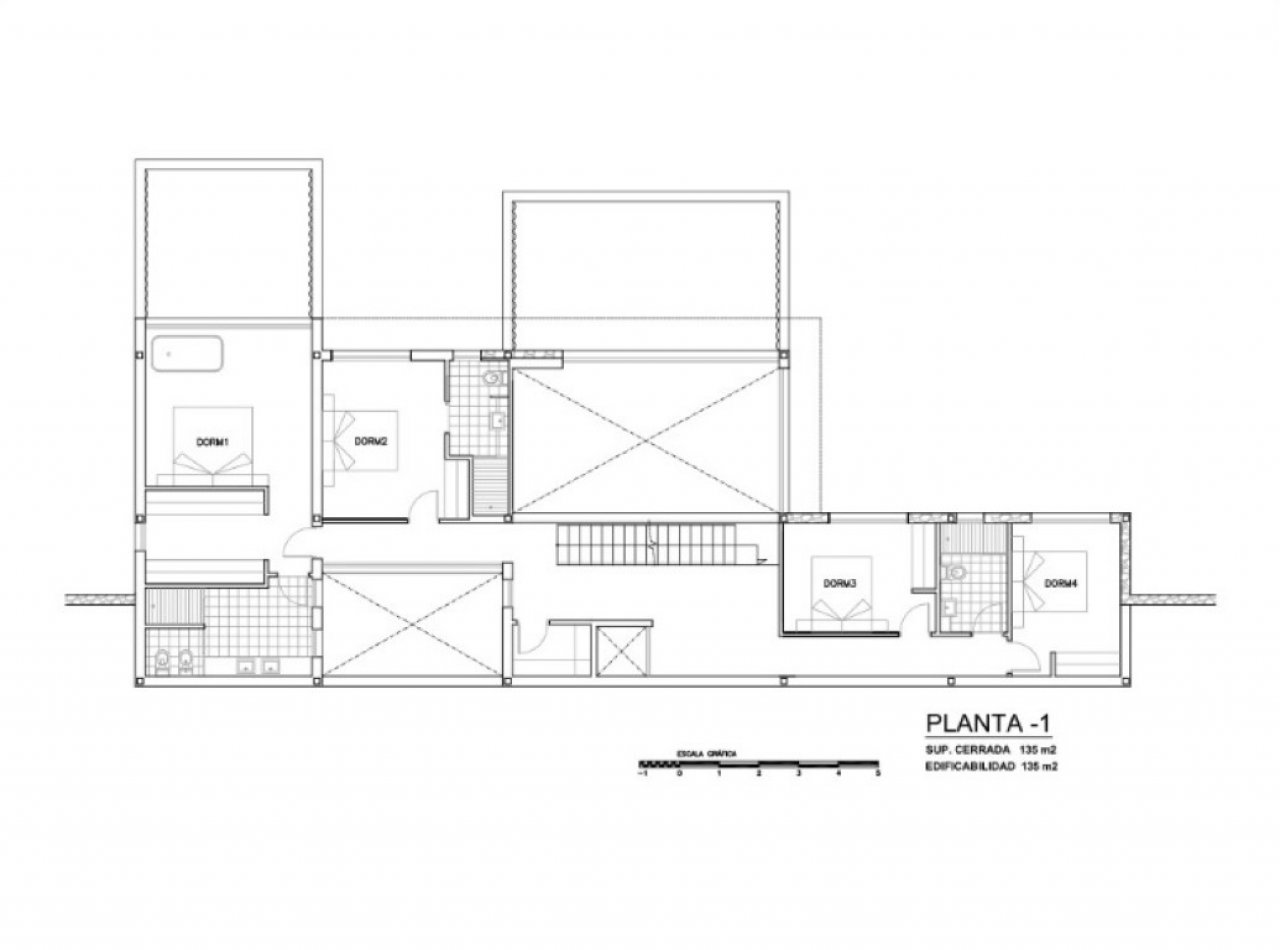
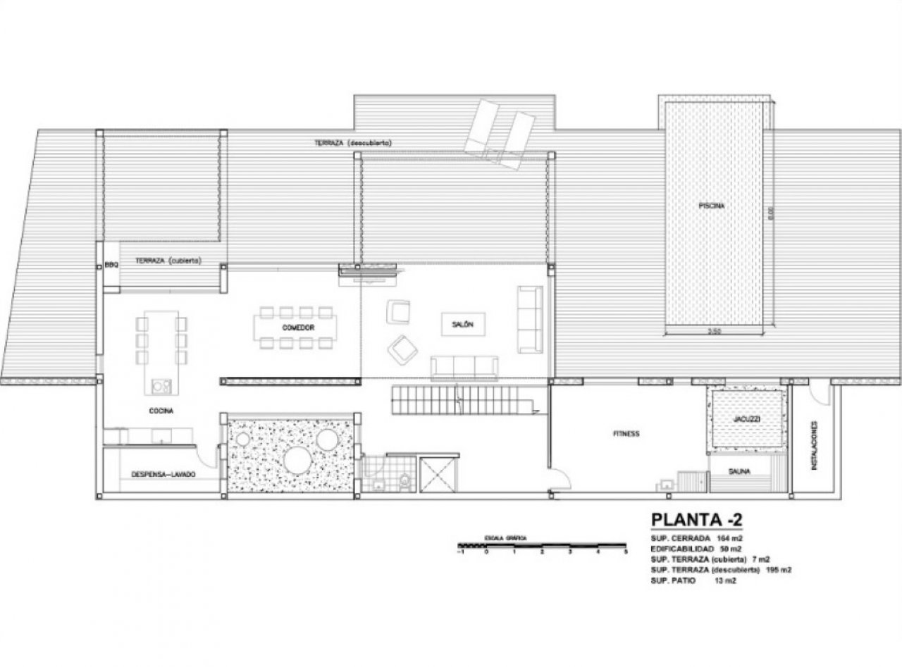
Diese sehr geräumige, moderne Villa befindet sich in einer der einzigartigsten Lagen von Javea. Die Villa erstreckt sich über 3 Etagen. Auf der obersten Etage befinden sich 3 Doppelschlafzimmer, 2 Badezimmer und das Hauptschlafzimmer mit Badezimmer en suite. Eine Etage tiefer befindet sich der allgemeine Wohnbereich mit einer großzügigen Lounge mit Essbereich, einer voll ausgestatteten modernen offenen Küche, einer Waschküche und einer Gästetoilette. Es gibt auch einen Fitnessraum mit Sauna und Whirlpool. Auf Wunsch kann hier ein fünftes Doppelschlafzimmer mit Bad en suite eingerichtet werden. Im Unterbau der Villa besteht die Möglichkeit, hier einen Ruheraum einzurichten, komplett mit Fitnessraum, Suna, Jacuzzi und Heimkino. Neben der großzügigen, teils überdachten Terrasse mit Swimmingpool gibt es einen pflegeleichten Garten mit verschiedenen Sitzgelegenheiten, von denen aus Sie die schöne Aussicht auf das Meer genießen können.
- Doppelverglasung
Haustyp: Villa
Etagenanzahl: 3
Anzahl Schlafzimmer: 4
Anzahl Badezimmer: 3
Pool: ja
Baujahr: 2022
Das könnte Ihnen auch gefallen



















































