Calpe:
C3XY4414CAL Moderne Villa mit Meerblick im Bau in Calpe
Objekt-Nr.: FVH-C3XY4414CAL




Preis:
1.400.000 €
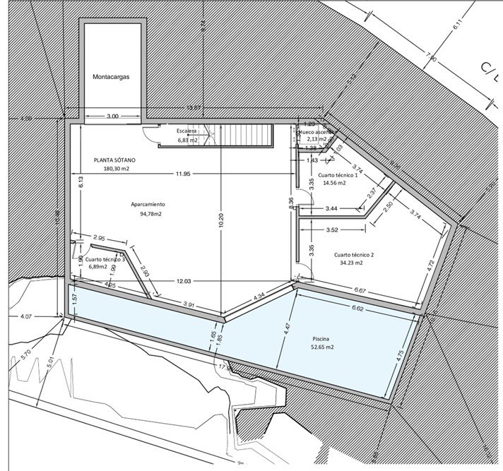
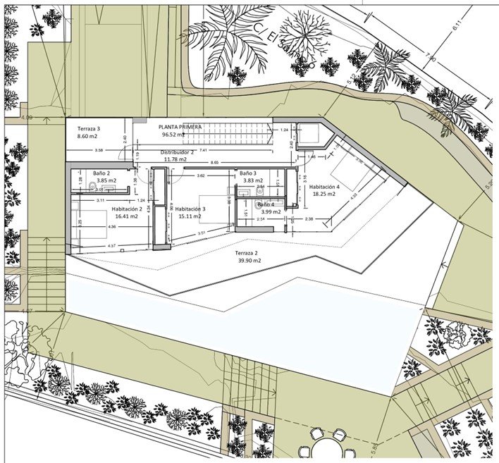
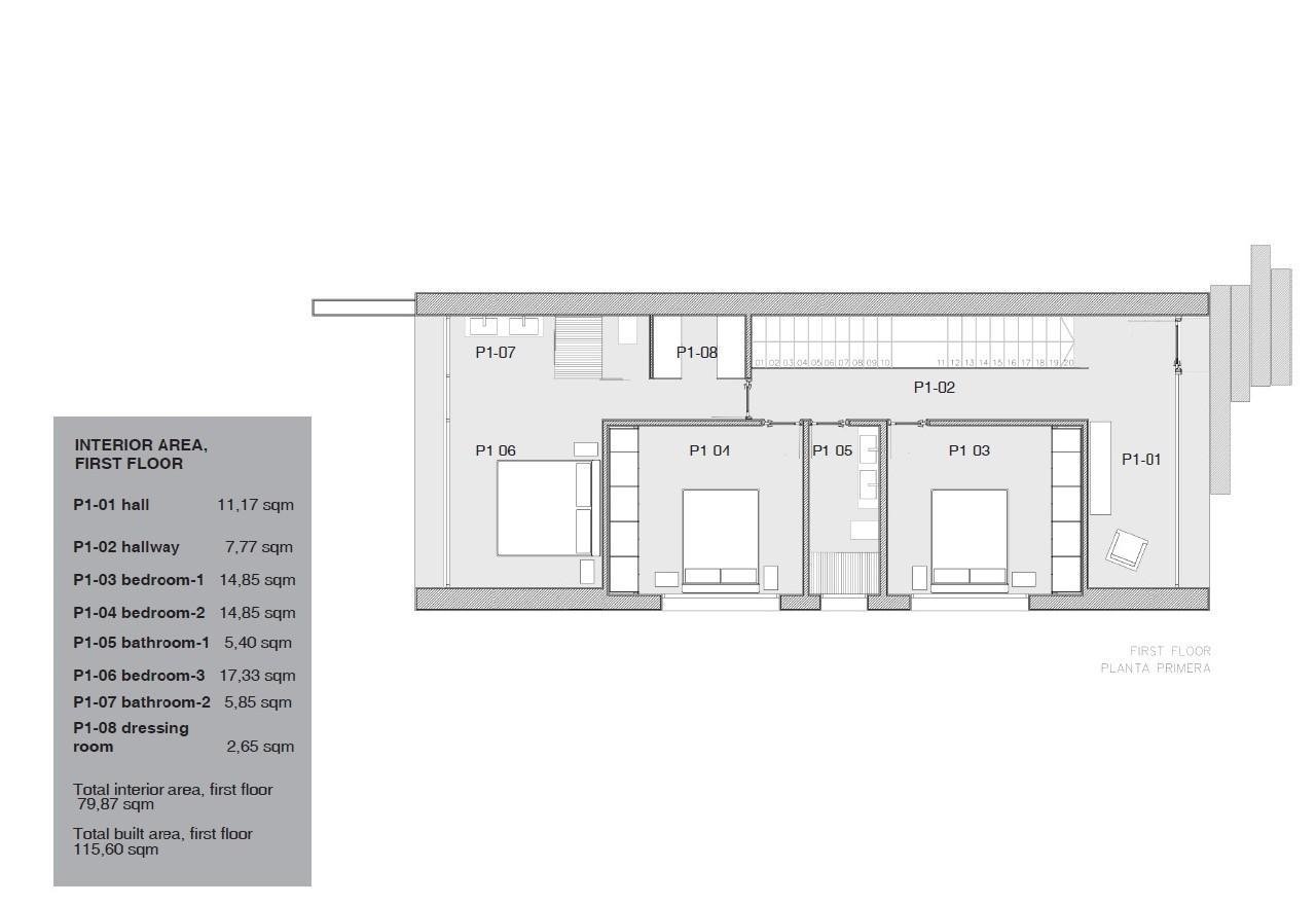
Wohnfläche ca.:
288 m²
Grundstück ca.:
890 m²
Zimmeranzahl:
6
Diese luxuriöse Villa befindet sich in einzigartiger Lage am Fuße des majestätischen Gebirgszuges Sierra de Olta. Auf der Ostseite hat man einen wunderschönen Panoramablick auf das Meer, die Stadt Calpe und den Peñon de Ifach, und auf der Westseite hat man einen beeindruckenden Blick auf die Berge. Die Villa erstreckt sich über zwei Etagen und ist nach Süd-Osten ausgerichtet. Das Erdgeschoss besteht aus einem sehr geräumigen Wohn-Esszimmer mit offener Küche (nur Vorinstallation), einer Waschküche, einem Gäste-WC und einem Büroraum. Im Obergeschoss befinden sich zwei Doppelschlafzimmer, beide mit eigenem Bad und eigener Terrasse, sowie zwei Doppelschlafzimmer mit gemeinsamem Bad. Die gesamte Villa verfügt über eine Klimaanlage (warm/kalt) und in den Badezimmern ist eine Fußbodenheizung installiert. Es gibt auch eine Vorinstallation für einen Aufzug.…
Im Außenbereich gibt es eine große, teilweise überdachte Terrasse mit einem 4 x 10 m großen Pool, eine Vorinstallation für eine Außenküche und ein Außenbad. Die Villa ist von einem mediterranen Standardgarten umgeben und verfügt über ein automatisches Tor, das Zugang zu einem großen Parkplatz für mehrere Autos bietet. Der Strand und das Zentrum von Calpe sind in nur 10 Minuten zu erreichen. Auf der anderen Seite der Straße befindet sich der Eingang zum wunderschönen Naturschutzgebiet Sierra de Olta, wo mehrere Wanderwege durch die Wälder und Berge führen. Dies ist eine einmalige Gelegenheit, eine luxuriöse Villa in einer fantastischen Lage zu kaufen. Weitere Informationen auf Anfrage.
- Doppelverglasung
Haustyp: Villa
Etagenanzahl: 2
Anzahl Schlafzimmer: 5
Anzahl Badezimmer: 5
Pool: ja
Baujahr: 2024
Das könnte Ihnen auch gefallen



















































