Altea:
C3XY4484ALT Schöne traditionelle Villa in Alhama Springs, Altea
Objekt-Nr.: FVH-C3XY4484ALT


















































































































Preis:
1.295.000 €
Wohnfläche ca.:
400 m²
Grundstück ca.:
1.404 m²
Zimmeranzahl:
5
Diese wunderschöne mediterrane Villa befindet sich in einer der prestigeträchtigen Urbanisationen von Altea am Fuße der Südflanke der majestätischen Sierra de Bernia. Die Villa bietet einen atemberaubenden Blick auf die nahe gelegene Bergkette und die weite bergige Landschaft. Zu den Aussichten gehören ikonische Berge wie der Puig Campana und die Sierra Aitana
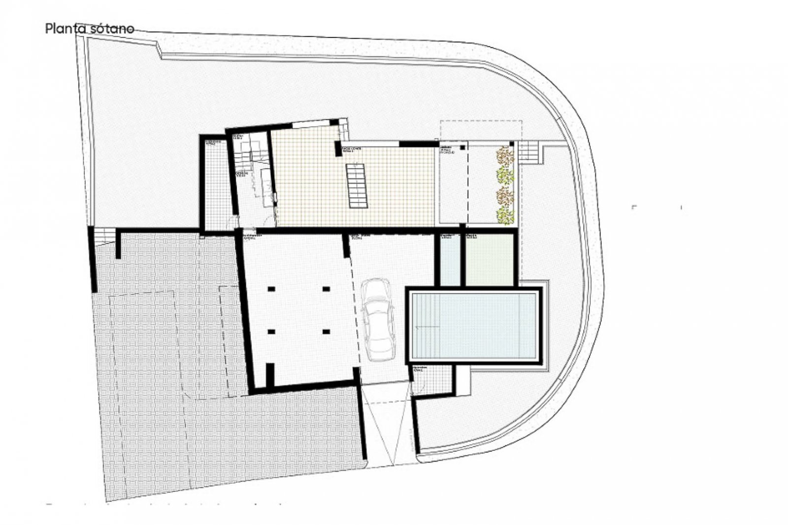
Die Villa wurde im Jahr 2004 erbaut und immer sehr gut gepflegt. Dank einer geschickten Aufteilung befindet sich die gesamte Privatresidenz von 173 m2 auf einer Etage neben dem Pool. Eine Etage tiefer befindet sich ein geräumiges separates Gästehaus von 113 m2 und ein separater Raum, der in ein Studio umgewandelt werden kann. Das Gästehaus ist intern mit dem oberen Stockwerk verbunden, hat aber auch einen eigenen Zugang.…
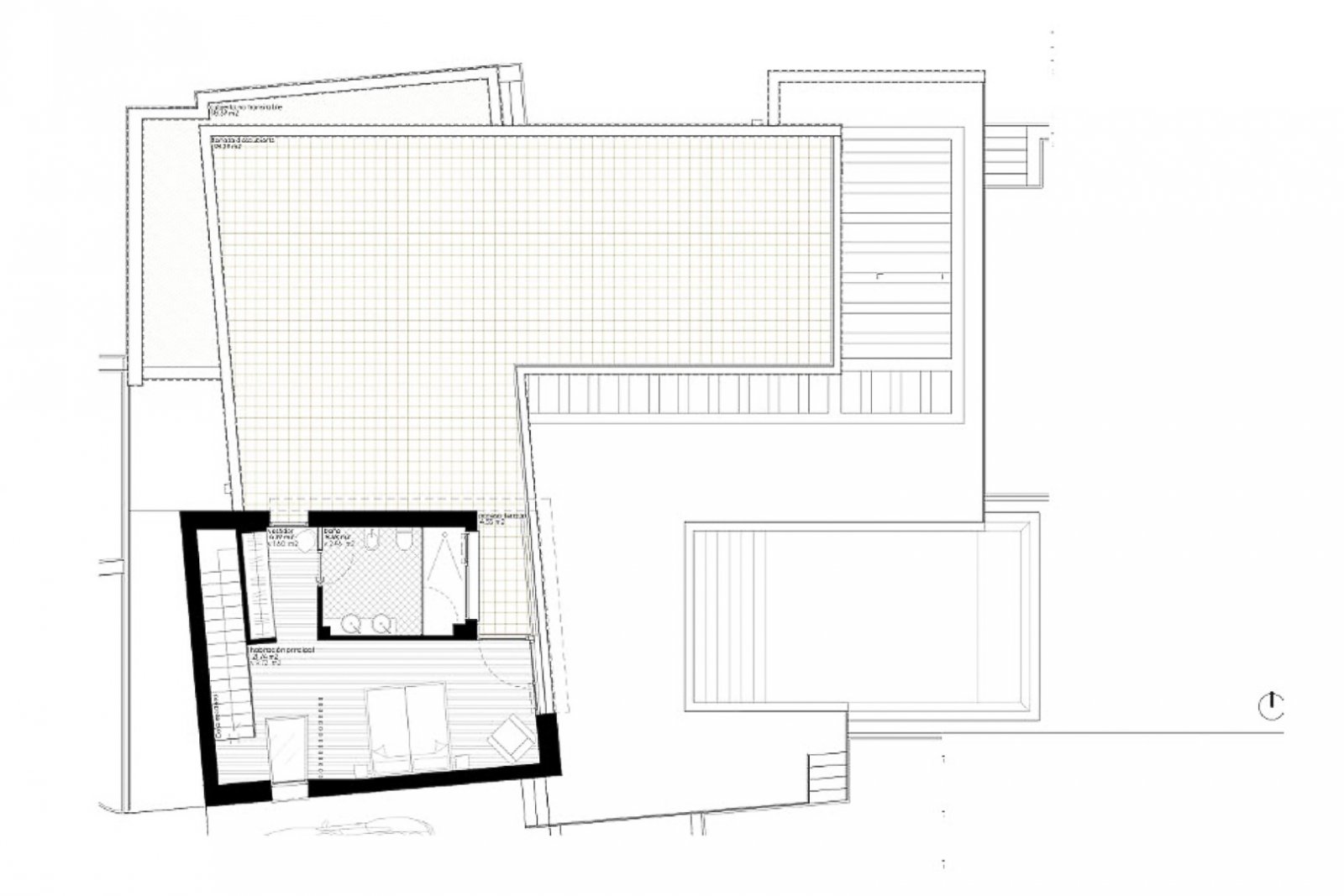
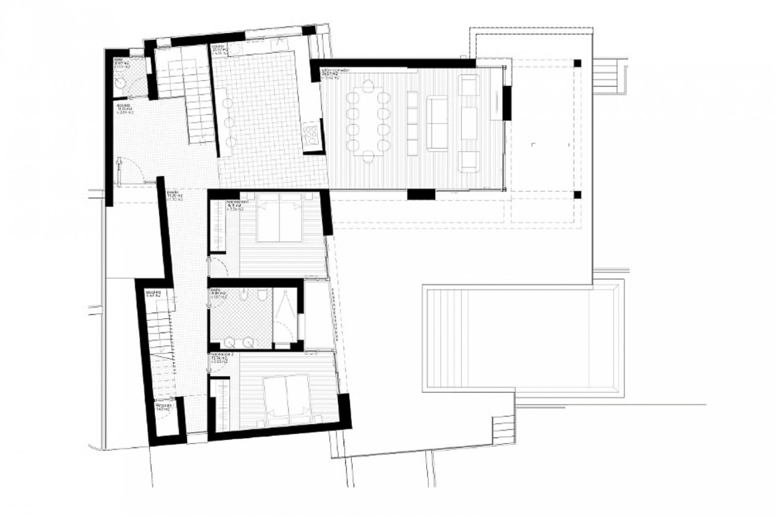
Durch ein automatisches Tor gelangt man auf das Grundstück, wobei sich die Einfahrt sofort in zwei Teile teilt, so dass man die Wahl hat, ob man am Eingang des Haupthauses oder am Eingang des Gästehauses parkt. Wenn Sie am Haupthaus parken, führt eine Treppe zur Eingangstür. Sie betreten eine stilvolle Diele mit einer geräumigen, voll ausgestatteten Küche auf der rechten Seite. Die Diele geht in das Wohn-Esszimmer über, in dem sich auch ein kleines Büro befindet. Durch einen Korridor, in dem sich ein weiteres Badezimmer befindet, erreicht man das Hauptschlafzimmer mit begehbarem Kleiderschrank und eigenem Bad. Von allen Zimmern (außer den Bädern) hat man einen schönen Blick auf die Landschaft. Sowohl vom Wohnzimmer als auch vom Schlafzimmer aus hat man über Schiebefenster direkten Zugang zur Terrasse am Pool. Auf dieser Etage gibt es auch eine überdachte Terrasse, eine Außenküche mit Bar und eine Außendusche. Das Gästehaus besteht aus einer Küche, einer Essecke, von der aus man ebenfalls die schöne Aussicht auf die Sierra de Bernia genießen kann, einem Wohnzimmer, einem Schlafzimmer mit eigenem Bad und zwei Schlafzimmern, die sich ein Bad teilen. Gegenüber dem Gästehaus befindet sich ein großer Raum von ca. 44 m2 mit mehreren Fenstern, der sich ideal in ein zusätzliches Schlafzimmer, einen Fitnessraum oder ein gemütliches Studio verwandeln lässt. Das Gästehaus und das Studio teilen sich eine private Terrasse. Die Villa verfügt über Klimaanlage in allen Räumen, Zentralheizung über Heizkörper, Rollläden und Einbauschränke. Außerdem gibt es eine Kameraüberwachung, die aus mehreren Kameras und einer Alarmanlage besteht. Die Villa ist von einem pflegeleichten Garten umgeben, der mit einer automatischen Bewässerung ausgestattet ist. Außerdem gibt es eine Garage.
Sowohl der Strand als auch das Zentrum von Altea sind nur 10 Autominuten entfernt. Größere Städte wie Calpe oder Benidorm können in 15 Minuten erreicht werden. Der Flughafen von Alicante ist 50 Autominuten entfernt. Der schöne Golfclub von Altea ist von der Villa aus zu Fuß zu erreichen.
Altea ist ein Paradies, das zwischen den Bergen und dem Mittelmeer liegt. Sie brauchen nur einen Spaziergang entlang der mehr als 6 km langen Küste zu machen, um eine Vielzahl von Stränden zu entdecken, wie z.B. LOlla, Solsida, Cap Negret, Albir, Cala del Mascarat und La Roda. Diese Strände sind eher durch Kiesel als durch Sand gekennzeichnet, und einige Buchten sind sogar zwischen großen Klippen versteckt. Und dann ist da noch die charmante Altstadt. Mit ihren engen, gepflasterten Gassen, weißen Häusern voller bunter Blumen und versteckten Winkeln und Aussichtspunkten ist sie ein wunderbarer Ort zum Bummeln.
Zögern Sie nicht länger und entdecken Sie diese fantastische Villa jetzt!
- Doppelverglasung
Haustyp: Villa
Etagenanzahl: 2
Anzahl Schlafzimmer: 4
Anzahl Badezimmer: 4
Pool: ja
Alarmanlage: ja
Baujahr: 2004
Das könnte Ihnen auch gefallen
Altea








































































































