Benissa:
4587BEN Luxuriöse Neubauvilla mit Meerblick zum Verkauf in Benissa
Objekt-Nr.: FVH-4587BEN
































Preis:
2.995.000 €
Wohnfläche ca.:
520 m²
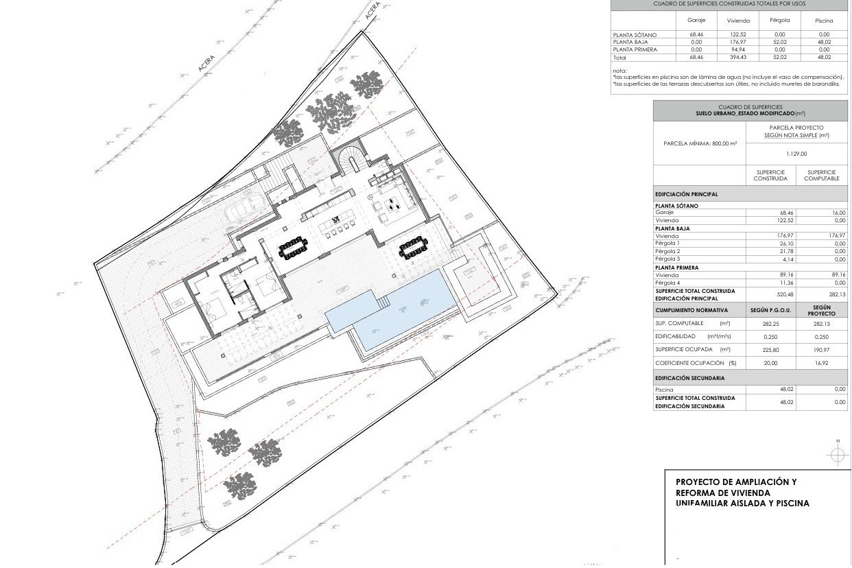
Grundstück ca.:
1.142 m²
Zimmeranzahl:
5
Villa im Ibiza-Stil mit Meerblick in Benissa zu verkaufen
Dieses exklusive Villaprojekt im Ibiza-Stil befindet sich in der modernen Villengegend Racó de Galeno in Benissa und bietet einen atemberaubenden Panoramablick über das Mittelmeer. Die Villa verbindet moderne Eleganz mit mediterranem Charme und wird mit hochwertigen Materialien und Ausstattungen auf höchstem Niveau gebaut.
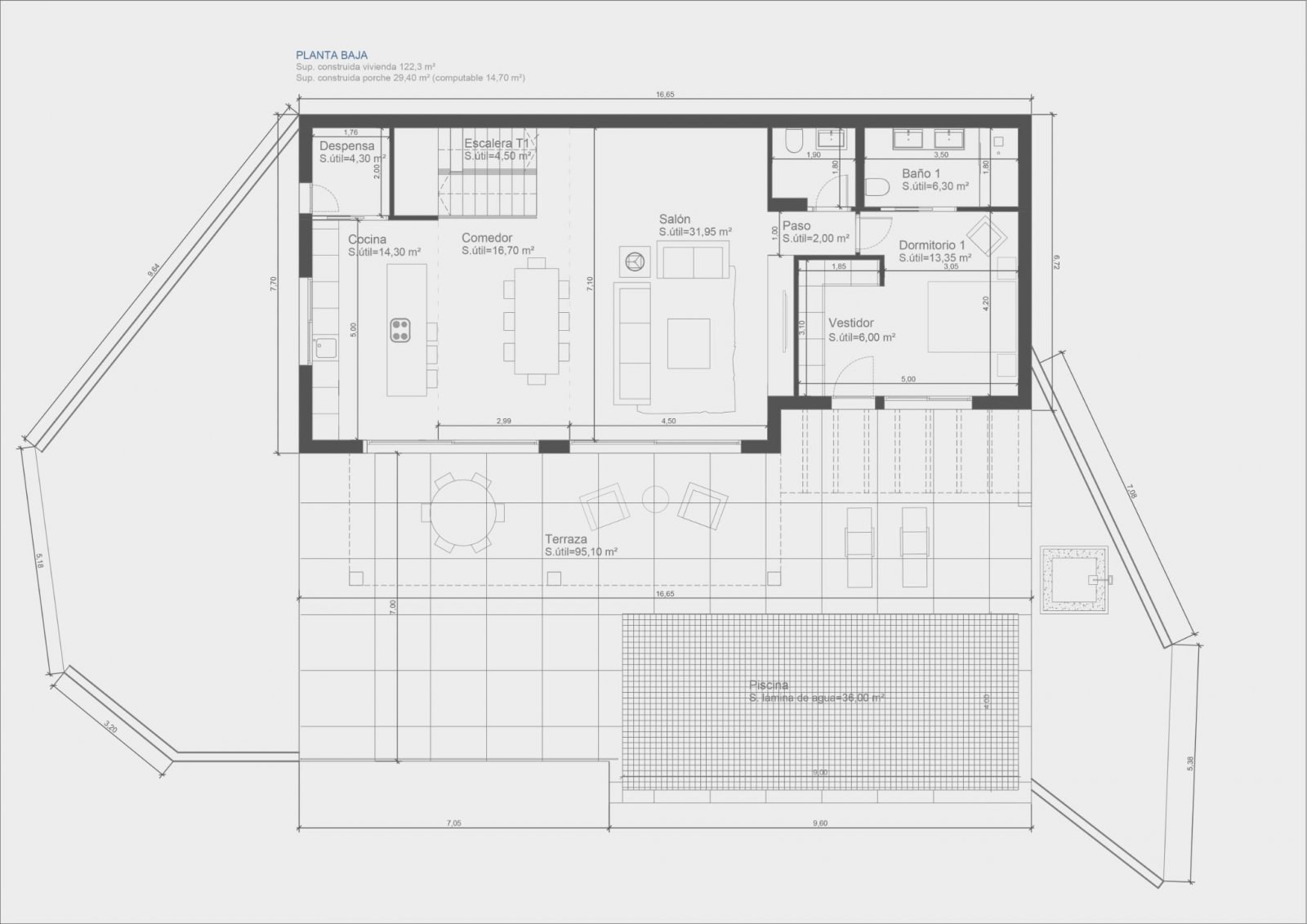
Das Erdgeschoss besteht aus einem geräumigen Wohnzimmer mit offener Küche mit Kochinsel, Essbereich und Salon mit Blick auf den Pool und das Meer.…
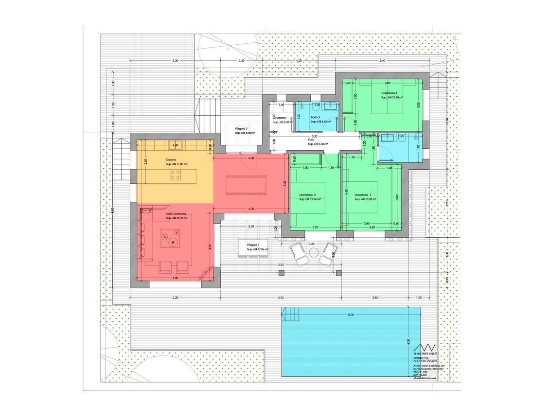
Auf derselben Etage befinden sich zwei Doppelschlafzimmer, jedes mit eigenem Bad, und eine Gästetoilette für zusätzlichen Komfort.
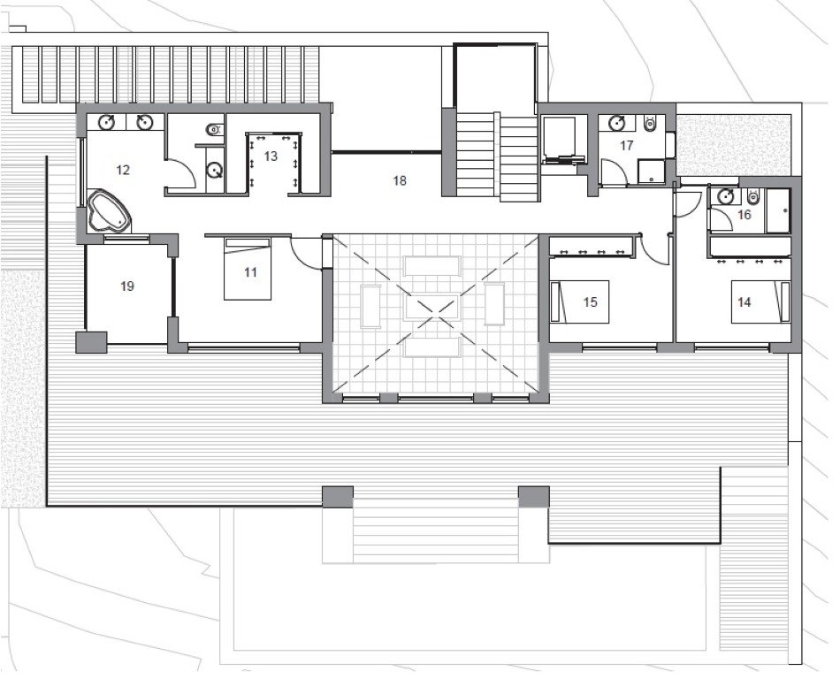
Im Obergeschoss befindet sich die Master-Suite mit Ankleidezimmer und eigenem Bad sowie ein viertes Schlafzimmer mit eigenem Bad. Beide Zimmer bieten Zugang zu einer großzügigen Sonnenterrasse mit Pergola und idealer Südwestausrichtung, auf der Sie bis spät in den Abend hinein die Sonne genießen können.
Das Untergeschoss umfasst eine geräumige Garage, einen Fitnessraum, einen Kinosaal und ein zusätzliches Badezimmer. Vom Wohnzimmer aus führt ein großes Schiebefenster auf die sonnige Terrasse mit Infinity-Pool, mehreren Pergolen und einer einladenden Lounge-Ecke, umgeben von einem mediterranen Garten.
Für den Bau dieser Villa werden ausschließlich Materialien von höchster Qualität verwendet. Die Innen- und Außenwände erhalten einen eleganten Putz im Ibiza-Stil mit integrierten Sockelleisten für ein nahtloses Erscheinungsbild. Die Fenster und Schiebetüren sind von der Marke TECHNAL, Modell SOLEAL, mit versenkten Profilen und elektrischen Rollläden in allen Schlafzimmern. Im Innenbereich sorgen Fußbodenheizung und kanalisierte Klimaanlage für optimalen Komfort das ganze Jahr über.
Die Küche wird im charakteristischen Ibiza-Stil mit natürlichen Farbtönen und hochwertiger Ausstattung einschließlich Einbaugeräten gestaltet. Die Badezimmer sind mit Mörtel, Mikrozement oder Fliesen verkleidet und mit ROCA-Sanitäranlagen und FIMA SPILLO-Armaturen in elegantem Mattschwarz ausgestattet. Der Infinity-Pool ist mit Mosaikfliesen vom Typ Bassetes ausgekleidet und verfügt über eine Vorinstallation für eine Heizung.
Der Außenbereich spiegelt die gleiche Raffinesse wider: Naturstein-Gartenmauern kombiniert mit weiß verputzten Fassaden, Holzpergolen mit Polycarbonatdach und Terrassen mit Böden, die zum Interieur passen.
Die Lage ist ideal: Das Zentrum von Calpe ist weniger als zehn Autominuten entfernt, ebenso wie die idyllische Küste von Benissa mit ihren kristallklaren Buchten.
Diese Villa bietet eine perfekte Balance zwischen Stil, Komfort und Lage.
- Doppelverglasung
Haustyp: Villa
Etagenanzahl: 3
Anzahl Schlafzimmer: 4
Anzahl Badezimmer: 4
Pool: ja
Anzahl der Parkflächen: 1 x Garage
Das könnte Ihnen auch gefallen
Benissa


































































