Javea:
4594JAV Luxuriöse Neubauvilla zum Verkauf in La Guardia, Jávea
Objekt-Nr.: FVH-4594CAL


















































































































Preis:
1.749.000 €
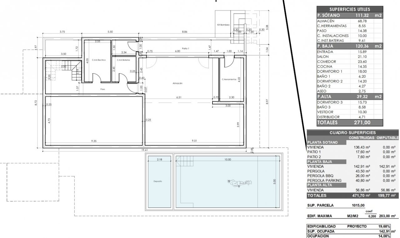
Wohnfläche ca.:
471 m²
Grundstück ca.:
1.015 m²
Zimmeranzahl:
4
Luxuriöse, nachhaltige Villa zu verkaufen in La Guardia Park, Jávea
Diese moderne und großzügige Neubauvilla befindet sich auf einem flachen Grundstück in der exklusiven Urbanisation La Guardia Park.
Die Immobilie wurde nach den Prinzipien von Styro Stone erbaut: Der Betonkern ist sowohl innen als auch außen isoliert, was eine außergewöhnliche Luftdichtheit gewährleistet. Dadurch bleiben die Temperaturen in allen Räumen nahezu identisch und das doppelte Belüftungssystem sorgt für optimalen Wohnkomfort. Darüber hinaus ist die Villa mit einem Aerothermie-System für Heizung und Kühlung über Fußbodenheizung sowie für Warmwasser ausgestattet. Ein Solarsystem mit 18 Paneelen und 20 kW Energiespeicher sorgt für nahezu null Energieverbrauch und trägt zur Energieeffizienzklasse A++ bei.…
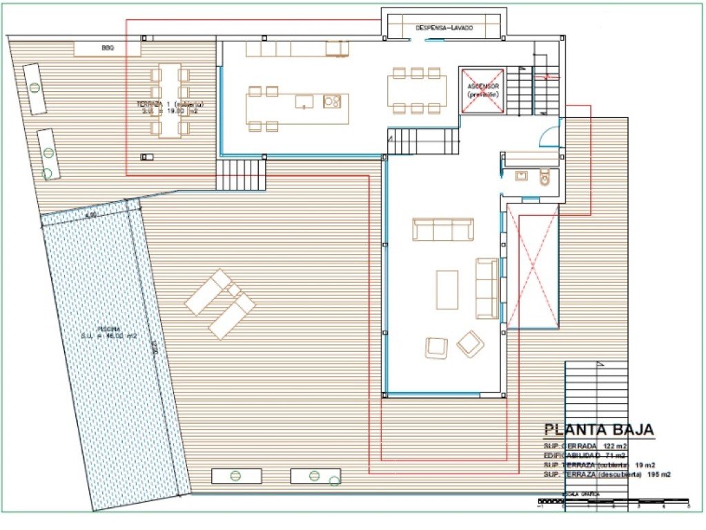
Die Villa verteilt sich auf drei Etagen. Sie betreten das Haus im Erdgeschoss über eine großzügige, helle Eingangshalle, in der sich auch das Gäste-WC befindet. Weiter entlang des Flurs liegen zwei Doppelschlafzimmer, jeweils mit eigenem Badezimmer. Der Flur führt in das weitläufige Wohn-Esszimmer mit moderner offener Küche und Kochinsel, komplett ausgestattet mit Bosch-Geräten. Die Treppe, die dank der großen Fensterfronten in natürlichem Licht erstrahlt, führt Sie in die obere Etage. Hier befindet sich das Hauptschlafzimmer mit einem luxuriösen ensuite Badezimmer mit Dusche, Badewanne und Doppelwaschbecken sowie einer großen privaten Terrasse.
Zudem verfügt die Villa über ein 180 m2 großes Untergeschoss, einen vielseitigen Raum mit unbegrenzten Möglichkeiten: Heimkino, Bar, Fitnessraum, Besprechungsraum, zusätzliches Gästezimmer, Spielzimmer oder sogar ein komplettes Gästeapartment mit Küche und Bad — alles bereit zur individuellen Gestaltung.
Im Außenbereich befindet sich ein wunderschöner 13 × 5 Meter großer Salzwasserpool im Bali-Stil, mit Liegebereich und Vorinstallation für eine Heizungsanlage. Die umlaufende 212 m2 große Terrasse ist mit zwei Pergolen aus Iroko-Holz ausgestattet, und dank der Südausrichtung genießen Sie hier ganzjährig Sonne.
Der Garten wurde vom Landschaftsarchitekten Jan van Eijle entworfen, Gewinner des ersten Umweltpreises für nachhaltige Unternehmen der Gemeinde Jávea. Er schuf einen üppigen mediterranen Garten mit jahrhundertealten Olivenbäumen, verschiedenen Obstbäumen, einer Vielzahl an Kräutern für Kochliebhaber und einer großzügigen Grünfläche mit Naturgras — mit absoluter Privatsphäre als oberste Priorität.
Diese Villa ist ideal für alle, die eine nachhaltige Immobilie mit hohem Wohnkomfort und geringen monatlichen Kosten suchen. Eine hervorragende Investition in die Zukunft.
La Guardia Park liegt nur einen Steinwurf entfernt von einigen der schönsten Strände Jáveas, wie Playa del Portitxol und Playa de la Granadella, sowie in der Nähe der wichtigsten Freizeit- und Ausgehbereiche. Verschiedene Restaurants und Sporteinrichtungen sind ebenfalls zu Fuß erreichbar. Der Sandstrand von Jávea ist in weniger als 15 Minuten erreichbar.
Qualitätsbroschüre auf Anfrage.
Haustyp: Villa
Etagenanzahl: 3
Anzahl Schlafzimmer: 3
Anzahl Badezimmer: 3
Pool: ja
Das könnte Ihnen auch gefallen
Javea





















































